Type
Bien immobilierTarif
280 000 €Chambres
4Salles de bain
0Vente Pavillon 7 pièces
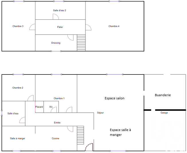
Iad France - Mélanie Jolivet vous propose : Saint-Prest - Gare pour Paris et collège à pied - Découvrez ce pavillon familial dans un secteur résidentiel. Vous apprécierez la possibilité d'une vie de plain-pied grâce à un séjour traversant et son poêle à granules de 2024, une cuisine aménagée et équipée ouverte sur une seconde salle à manger, deux chambres orientées sur le jardin, une salle d'eau, un wc séparé, ainsi qu'une buanderie chauffée de près de 9 m² attenante au garage (porte motorisée) et donnant accès au jardin. À l'étage, le palier dessert deux belles chambres, une salle d'eau moderne avec WC, et un dressing indépendant. Côté extérieur, vous profiterez d'un jardin agréable entièrement clos et sans vis-à-vis avec une cour de stationnement dallée pour vos véhicules, une belle terrasse, et un atelier indépendant d'environ 17 m² qui ravira les bricoleurs. Grâce à son chauffage électrique à inertie et son poêle à granules récents, ses huisseries double vitrage, et l'isolation des combles, vous bénéficierez d'une étiquette énergétique performante. Ne manquez pas l'opportunité de poser vos valises dans ce pavillon confortable et sans travaux ! Honoraires d'agence à la charge de l'acquéreur. Prix honoraires inclus : 280000 euros. Prix hors honoraires : 270000 euros. Honoraires TTC à la charge de l'acquéreur (3,70% du prix du bien hors honoraires) : 10000 euros. Information d'affichage énergétique sur ce bien : classe ENERGIE C indice 138 et classe CLIMAT A indice 4. Les informations sur les risques auxquels ce bien est exposé, y compris l'obligation légale de débroussaillement, sont disponibles sur le site Géorisques : http://www.georisques.gouv.fr. La présente annonce immobilière a été rédigée sous la responsabilité éditoriale de Mme Mélanie Jolivet mandataire indépendant en immobilier (sans détention de fonds), agent commercial de la SAS I@D France immatriculé au RSAC de Chartres sous le numéro 914117734, titulaire de la carte de démarchage immobilier pour le compte de la société I@D France SAS.
À proximité
Recherche des commodités à proximité...
Détails de l'annonce
Localisation
Ville
Saint-Prest
Pays
FR
Diagnostics / Énergie
Diagnostic DPE
117
Diagnostic GES
4
Surfaces / Pièces / Composition
Nombre d’étages
Chauffage et diagnostics
Diagnostic de performance énergétique (DPE)
a
b
c
d
e
f
g
Indice d'émission de gaz à effet de serre (GES)
a
b
c
d
e
f
g
