Type
Bien immobilierTarif
395 000 €Chambres
5Salles de bain
0Vente Maison/villa 6 pièces
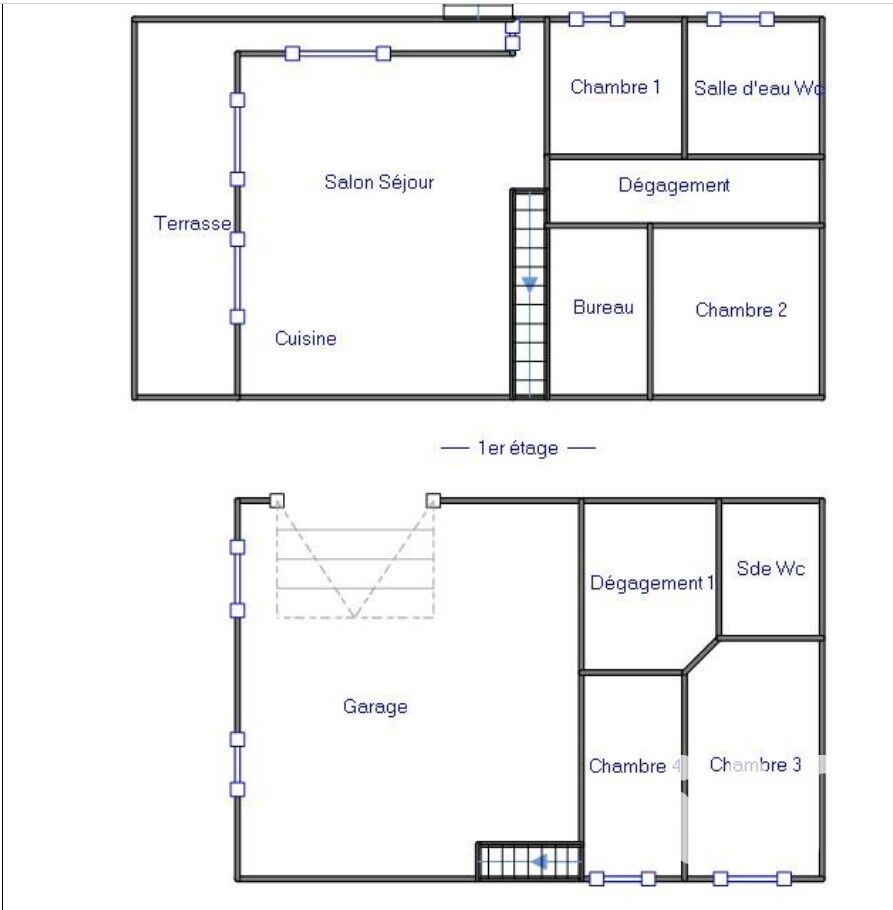
Iad France - Ouidad Devaux vous propose : MAISON FAMILIALE - LES RAMASSIERS / CABIROL - VOLUMES GENEREUX - 5 CHAMBRES - GRAND GARAGE 70 m² - PROXIMITE COMMERCES ECOLES ET LA FUTURE STATION METRO DESCRIPTION GENERALE Située à Colomiers, dans le secteur recherché des Ramassiers / Cabirol, découvrez cette maison de 1975 offrant une surface habitable généreuse de 170 m² sur une parcelle de 539 m². Ce bien se distingue par ses volumes exceptionnels et son agencement fonctionnel, idéal pour une vie de famille ou pour concilier vie personnelle et professionnelle. AGENCEMENT INTERIEUR L'accès au premier étage s'effectue par une entrée spacieuse qui s'ouvre sur une pièce de vie lumineuse de 60 m². Cet espace de réception intègre une cuisine ouverte moderne, l'ensemble bénéficiant d'un accès direct à une terrasse conviviale. Le coin nuit de ce niveau dessert trois chambres confortables, une salle d'eau équipée d'une grande vasque ainsi que d'un WC. Un escalier intérieur permet d'accéder au rez-de-jardin (sous-sol aménagé). Ce niveau propose un second espace nuit composé de deux chambres supplémentaires et d'une salle d'eau privative avec WC, offrant ainsi une parfaite autonomie pour des adolescents, des invités ou un espace de télétravail. EXTERIEURS Une spacieuse terrasse de 35 m² surplombant le jardin arboré entièrement clôturé et fermé, garantissant sécurité et intimité. Le bien dispose d'un atout rare sur le secteur : un garage de 70 m². Cet espace, équipé de portes électriques, permet de stationner deux véhicules tout en conservant une surface importante pour le stockage ou le bricolage. EQUIPEMENTS Climatisation réversible et radiateurs électriques, menuiseries double vitrage, VMC et fibre optique. Cette maison allie le charme des volumes des années 70 au confort moderne, le tout dans un environnement calme et résidentiel. N'hésitez pas à me contacter pour une visite ! Honoraires d'agence à la charge du vendeur. Information d'affichage énergétique sur ce bien : classe ENERGIE C indice 164 et classe CLIMAT A indice 5. Les informations sur les risques auxquels ce bien est exposé, y compris l'obligation légale de débroussaillement, sont disponibles sur le site Géorisques : http://www.georisques.gouv.fr. La présente annonce immobilière a été rédigée sous la responsabilité éditoriale de Mme Ouidad Devaux mandataire indépendant en immobilier (sans détention de fonds), agent commercial de la SAS I@D France immatriculé au RSAC de Montauban sous le numéro 833493356, titulaire de la carte de démarchage immobilier pour le compte de la société I@D France SAS.
Ce mois
Cette annonce est récente
À proximité
Recherche des commodités à proximité...
Détails de l'annonce
Localisation
Ville
Colomiers
Pays
FR
Diagnostics / Énergie
Diagnostic DPE
164
Diagnostic GES
5
Surfaces / Pièces / Composition
Nombre d’étages
2
Chauffage et diagnostics
Diagnostic de performance énergétique (DPE)
a
b
c
d
e
f
g
Indice d'émission de gaz à effet de serre (GES)
a
b
c
d
e
f
g
