Trouver...

Language: FR

Devise: EUR

Vente Maison traditionnelle 9 pièces

Publié le 6 March 2026
Type
Bien immobilier
Tarif
335 000 €
Chambres
6
Salles de bain
0

Vente Maison traditionnelle 9 pièces

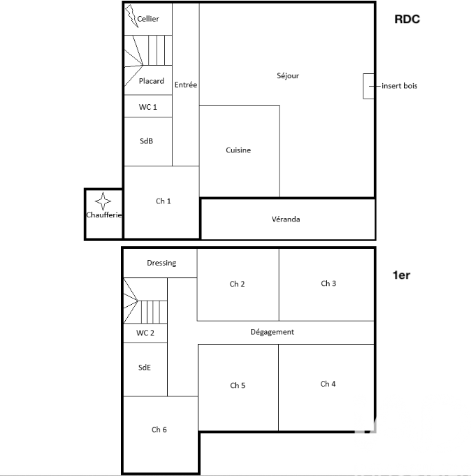
Iad France - Sandrine Grau vous propose : Maison Traditionnelle à rafraichir située à 4 km du centre de Mios. Construite en 1974, cette demeure spacieuse de 189 m² environ habitable répartie sur 2 niveaux offre un potentiel incroyable pour réaliser vos projets de vie. Au rez-de-chaussée, vous trouverez un séjour lumineux de plus de 50 m² environ, une grande cuisine, un bureau, une chambre, une salle de bain, un wc et une véranda offrant une vue sur le jardin. L'étage vous offre 6 chambres une salle d'eau et un wc. Côté extérieur, profitez d'un jardin exposé sud-ouest pour des moments de détente en plein air. Contactez-moi (Je privilégie l'inter-cabinet) Honoraires d'agence à la charge du vendeur. Information d'affichage énergétique sur ce bien : classe ENERGIE D indice 197 et classe CLIMAT D indice 30. Les informations sur les risques auxquels ce bien est exposé, y compris l'obligation légale de débroussaillement, sont disponibles sur le site Géorisques : http://www.georisques.gouv.fr. La présente annonce immobilière a été rédigée sous la responsabilité éditoriale de Mme Sandrine Grau mandataire indépendant en immobilier (sans détention de fonds), agent commercial de la SAS I@D France immatriculé au RSAC de BORDEAUX sous le numéro 349331488, titulaire de la carte de démarchage immobilier pour le compte de la société I@D France SAS.
Ce mois Cette annonce est récente

À proximité

Recherche des commodités à proximité...

Détails de l'annonce

Localisation

Ville
Mios
Pays
FR

Diagnostics / Énergie

Diagnostic DPE
197
Diagnostic GES
30

Chauffage et diagnostics

Diagnostic de performance énergétique (DPE)
a
b
c
d
e
f
g
Indice d'émission de gaz à effet de serre (GES)
a
b
c
d
e
f
g
Rappelez-moi