Type
Bien immobilierTarif
435 000 €Chambres
2Salles de bain
0Vente Appartement 3 pièces
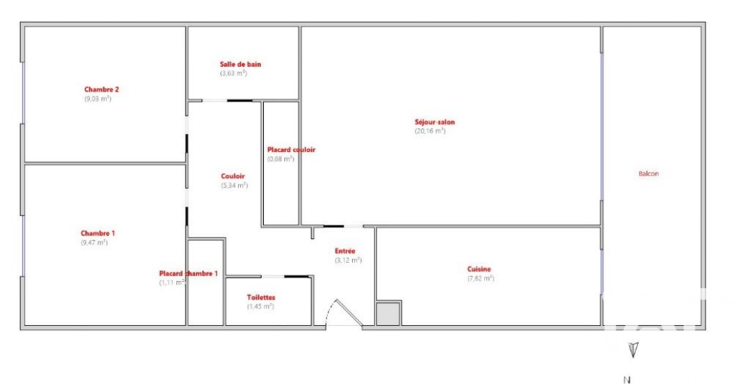
Iad France - Audrey Lacour vous propose : Charmant 3 pièces en rez-de-jardin avec balcon, cave – Aucun travaux à prévoir ! Situé dans une allée piétonne, au sein d’une résidence sécurisée, verdoyante et bien entretenue avec gardien, ce bel appartement de 3 pièces, traversant et parfaitement agencé, offre un cadre de vie agréable et paisible. Le séjour lumineux de 20 m² s’ouvre sur un balcon de 7 m² donnant sur un jardin intérieur calme et sans circulation, idéal pour profiter des beaux jours. La cuisine aménagée et équipée peut s’ouvrir sur le séjour selon vos envies. Côté nuit, vous découvrirez deux chambres au calme, une salle d’eau moderne, des WC séparés ainsi que de nombreux rangements. Une cave complète ce bien. Un box fermé en sous-sol est disponible en supplément. Vous n’aurez plus qu’à poser vos valises : aucun travaux à prévoir ! Emplacement idéal : Écoles, commerces et espaces verts à proximité immédiate Tram T2 Belvédère à 5 min à pied Gare ligne L à 8 min à pied La presente annonce immobiliere vise 2 lots situés dans une copropriété de 300 lots au total et ne faisant l'objet d'aucune procédure en cours citée à l'article L. 721-1 du code de la construction et de l'habitation. Montant moyen mensuel de charges déclaré par le vendeur : 125€ par mois (soit 1500 € annuel). Honoraires d'agence à la charge du vendeur. Information d'affichage énergétique sur ce bien : classe ENERGIE C indice 151 et classe CLIMAT C indice 29. Les informations sur les risques auxquels ce bien est exposé, y compris l'obligation légale de débroussaillement, sont disponibles sur le site Géorisques : http://www.georisques.gouv.fr. La présente annonce immobilière a été rédigée sous la responsabilité éditoriale de Mme Audrey Lacour mandataire indépendant en immobilier (sans détention de fonds), agent commercial de la SAS I@D France immatriculé au RSAC de NANTERRE sous le numéro 838327138, titulaire de la carte de démarchage immobilier pour le compte de la société I@D France SAS.
À proximité
Recherche des commodités à proximité...
Détails de l'annonce
Localisation
Ville
Suresnes
Pays
FR
Diagnostics / Énergie
Diagnostic DPE
151
Diagnostic GES
29
Surfaces / Pièces / Composition
Nombre d’étages
6
Chauffage et diagnostics
Diagnostic de performance énergétique (DPE)
a
b
c
d
e
f
g
Indice d'émission de gaz à effet de serre (GES)
a
b
c
d
e
f
g
