Type
Bien immobilierTarif
235 000 €Chambres
0Salles de bain
0Vente Maison de ville 3 pièces
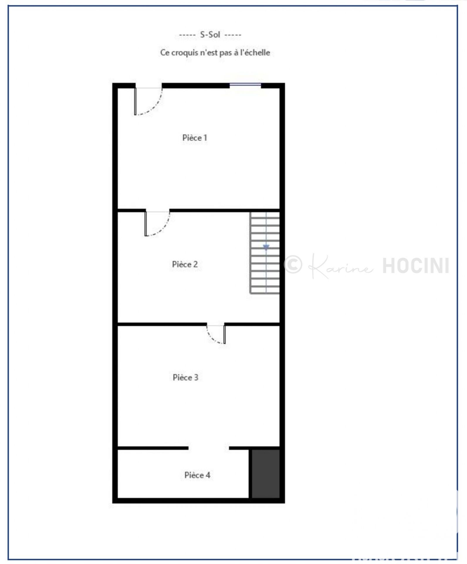
Iad France - Karine Hocini vous propose : Maison de ville – 103 m² utiles – Quartier Faisanderie / Bas-Gare – Villeneuve-le-Roi (94290) À proximité immédiate des commerces, des écoles et des transports, cette maison de ville constitue une alternative idéale à l’appartement : ici, pas de copropriété, pas de charges, et surtout un extérieur privatif sans les contraintes d’un jardin à entretenir. Située rue d’Orléans, dans un secteur résidentiel et familial, cette maison développe 103 m² de surface utile, dont 63 m² habitables de plain-pied, sur une parcelle de 135 m². La maison propose au rez-de-chaussée, une pièce de vie traversante, lumineuse et totalement décloisonnée de 47 m² avec une cuisine aménagée et équipée ouverte sur un vaste double séjour. Une salle de bain avec baignoire, douche à l'italienne et WC complète le niveau. En complément la maison dispose d’un sous-sol aménagé, accessible depuis l’intérieur comme depuis l’extérieur, offrant de beaux volumes et de multiples possibilités d’usage : salle de jeux, espace loisirs, bureau, atelier ou espace de stockage optimisé. Un véritable atout pour répondre aux besoins du quotidien… Laisser s'exprimer votre imagination ! À l'extérieur, une cour pavée privative permet un stationnement, un véritable atout en cOEur de ville, où les contraintes de circulation et de stationnement font partie du quotidien urbain. Un bien atypique prêt à accueillir vos projets et idées d’aménagement. Idéal pour un primo-accédant, un investisseur, ou toute personne à la recherche d’un logement avec un bon rapport surface / prix en zone urbaine. Pour découvrir ce bien, contactez moi dès maintenant et organisons une visite ! Honoraires d'agence à la charge de l'acquéreur. Prix honoraires inclus : 235000 euros. Prix hors honoraires : 226000 euros. Honoraires TTC à la charge de l'acquéreur (3,98% du prix du bien hors honoraires) : 9000 euros. Information d'affichage énergétique sur ce bien : classe ENERGIE E indice 308 et classe CLIMAT E indice 66. Les informations sur les risques auxquels ce bien est exposé, y compris l'obligation légale de débroussaillement, sont disponibles sur le site Géorisques : http://www.georisques.gouv.fr. La présente annonce immobilière a été rédigée sous la responsabilité éditoriale de Mme Karine Hocini mandataire indépendant en immobilier (sans détention de fonds), agent commercial de la SAS I@D France immatriculé au RSAC de Evry-Courcouronnes sous le numéro 904898046, titulaire de la carte de démarchage immobilier pour le compte de la société I@D France SAS.
À proximité
Recherche des commodités à proximité...
Détails de l'annonce
Localisation
Ville
Villeneuve-le-Roi
Pays
FR
Diagnostics / Énergie
Diagnostic DPE
308
Diagnostic GES
66
Finances / Mandat / Références
Honoraires
9 €
Chauffage et diagnostics
Diagnostic de performance énergétique (DPE)
a
b
c
d
e
f
g
Indice d'émission de gaz à effet de serre (GES)
a
b
c
d
e
f
g
