Type
Bien immobilierTarif
1 560 000 €Chambres
2Salles de bain
0Vente Appartement 6 pièces
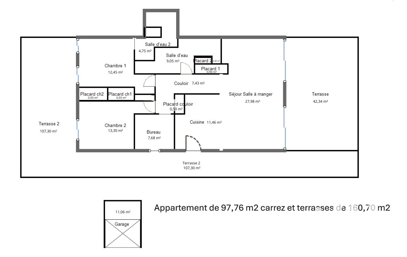
Iad France - Cécile Richards vous propose : Situé au coeur de Sanary sur Mer, dans le secteur le plus recherché de la ville, à quelques pas seulement des commerces, du célèbre marché, du théâtre Galli, du port et des plages, ce duplex d'exception, dominant, d'une surface habitable de 164 m² dont 145 m² en loi Carrez vous séduira par sa situation privilégiée et ses prestations rares. Au sein d'une résidence récente de standing, parfaitement entretenue, cet appartement niché au troisième et dernier étage avec ascenseur est un bien rarement disponible dans ce secteur central. Dès l'entrée l'appartement révèle de très beaux volumes. Le niveau principal d'une surface de 86 m² accueille un vaste espace de vie composé d'un salon et salle à manger, une cuisine indépendante aménagée et équipée, le tout ouvrant sur une terrasse de 16 m² exposée plein Ouest sans aucun vis-à-vis. Profitez ici d'une vue dominante sur les toits de Sanary sur Mer et d'un aperçu mer dans un cadre intime baigné de lumière. Toujours sur ce niveau, une chambre de 25 m² environ dotée d'un dressing sur mesure de grande qualité et d'une salle d'eau. Toilettes indépendantes et placards. Un escalier contemporain souligné par un garde-corps en Plexiglas vous mène à l'étage supérieur d'une surface de 58 m², véritable espace signature de ce bien d'exception. Sous une belle hauteur sous plafond et baigné de lumière naturelle via plusieurs Velux, vous découvrirez un espace de vie de 40 m² environ offrant une baie vitrée donnant accès à une terrasse tropézienne de 16 m² à l'abris des regards, dominant les toits de la ville. Une partie du sol en verre permet une vue plongeante sur le séjour inférieur apportant cachet et originalité à ce lieu magique. Possibilité de faire une troisième. chambre à cet étage. Ce bien réunit tous les critères de l'immobilier de prestige : emplacement ultra-central, volumes rares, terrasses intimes, vue dominante et stationnement. Un vaste garage en sous sol sécurisé complète ce bien, un luxe dans ce secteur. ( 20 m² environ) Un appartement confidentiel, pour les amateurs de caractère, de confort et de centralité, au coeur de l'une des destinations les plus emblématiques de la région. Pour visiter ce bien rare, merci de préférer me joindre par téléphone afin que nous puissions parler ensemble de votre projet et, si cet appartement correspond à votre recherche, vous serez les bienvenus pour une visite. La presente annonce immobiliere vise 2 lots situés dans une copropriété de 60 lots au total et ne faisant l'objet d'aucune procédure en cours citée à l'article L. 721-1 du code de la construction et de l'habitation. Montant moyen mensuel de charges déclaré par le vendeur : 250€ par mois (soit 3000 € annuel). Honoraires d'agence à la charge du vendeur. Information d'affichage énergétique sur ce bien : classe ENERGIE C indice 120 et classe CLIMAT A indice 3. Les informations sur les risques auxquels ce bien est exposé, y compris l'obligation légale de débroussaillement, sont disponibles sur le site Géorisques : http://www.georisques.gouv.fr. La présente annonce immobilière a été rédigée sous la responsabilité éditoriale de Mme Cécile Richards mandataire indépendant en immobilier (sans détention de fonds), agent commercial de la SAS I@D France immatriculé au RSAC de Toulon sous le numéro 420119570, titulaire de la carte de démarchage immobilier pour le compte de la société I@D France SAS.
Ce mois
Cette annonce est récente
À proximité
Recherche des commodités à proximité...
Détails de l'annonce
Localisation
Ville
Sanary-sur-Mer
Pays
FR
Diagnostics / Énergie
Diagnostic DPE
120
Diagnostic GES
3
Surfaces / Pièces / Composition
Nombre d’étages
3
Étage
3
Chauffage et diagnostics
Diagnostic de performance énergétique (DPE)
a
b
c
d
e
f
g
Indice d'émission de gaz à effet de serre (GES)
a
b
c
d
e
f
g
