Type
Bien immobilierTarif
344 000 €Chambres
2Salles de bain
0Vente Atelier 10 pièces
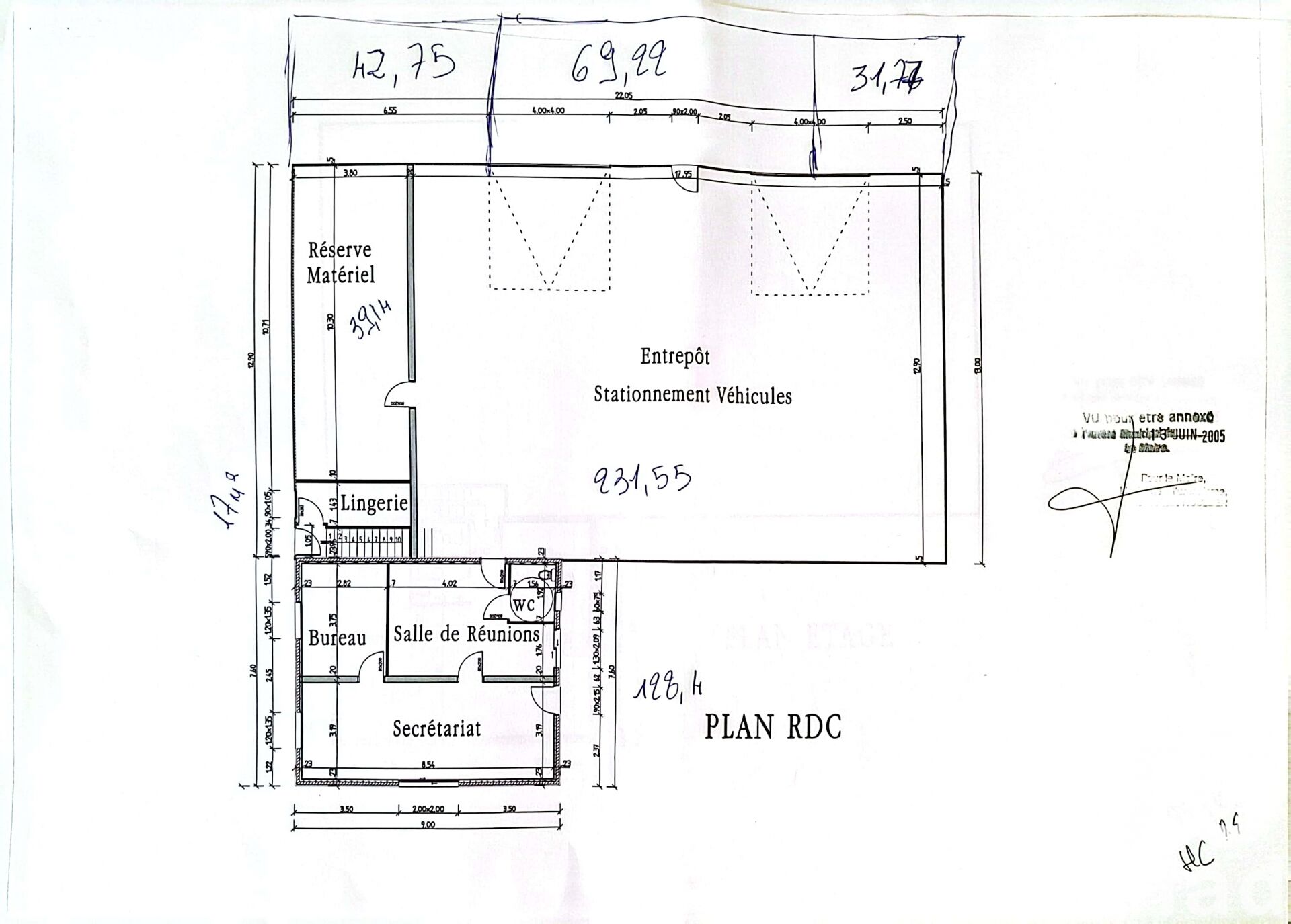
Iad France - Jean-Marie Julaud vous propose : Bâtiment professionnel de 2008 avec appartement de fonction le tout avec une superficie de 630 m² sur un terrain de 4200 m². Situé dans la zone artisanale de Guémené-Penfao, ce bâtiment professionnel polyvalent offre une opportunité unique d'allier espace de travail et confort résidentiel. Idéal pour les entreprises souhaitant optimiser leur organisation tout en disposant d'un logement sur place. Le rez-de-chaussée se compose d'un secrétariat spacieux, de deux bureaux fermés, d'une grande salle de réunion, ainsi que d'un entrepôt adapté pour le stationnement de véhicules. Vous y trouverez également une réserve de matériel et une lingerie. À l'étage, un appartement lumineux comprend deux chambres et un espace de vie confortable, idéal pour un logement de fonction. Le bâtiment est fonctionnel avec une agencement optimisé pour une activité professionnelle diversifiée. Polyvalent, il est adapté à de nombreux secteurs tels que les bureaux, l'artisanat ou le stockage. Son accessibilité est facilitée grâce à un accès aisé pour les véhicules utilitaires, et il se situe à proximité des grands axes. Loyer potentiel total : 3 150 € par mois bail 3,6,9. Honoraires d'agence à la charge du vendeur. Bien non soumis au DPE. Les informations sur les risques auxquels ce bien est exposé, y compris l'obligation légale de débroussaillement, sont disponibles sur le site Géorisques : http://www.georisques.gouv.fr. La présente annonce immobilière a été rédigée sous la responsabilité éditoriale de M Jean-Marie Julaud mandataire indépendant en immobilier (sans détention de fonds), agent commercial de la SAS I@D France immatriculé au RSAC de SAINT-NAZAIRE sous le numéro 905211801, titulaire de la carte de démarchage immobilier pour le compte de la société I@D France SAS.
Ce mois
Cette annonce est récente
À proximité
Recherche des commodités à proximité...
Détails de l'annonce
Localisation
Ville
Guémené-Penfao
Pays
FR
Chauffage et diagnostics
Diagnostic de performance énergétique (DPE)
a
b
c
d
e
f
g
Indice d'émission de gaz à effet de serre (GES)
a
b
c
d
e
f
g
