Trouver...

Language: FR

Devise: EUR

Vente Appartement 3 pièces

Publié le 7 March 2026
Type
Bien immobilier
Tarif
475 000 €
Chambres
2
Salles de bain
0

Vente Appartement 3 pièces

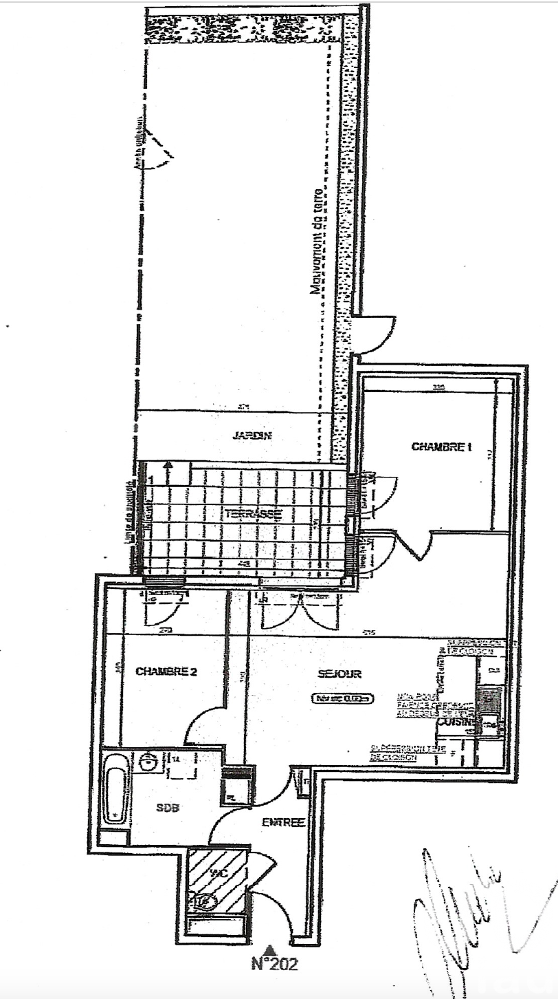
Iad France - Samuel Fresco vous propose : * Voltaire - Gabriel Péri * RARE SUR LE SECTEUR - JARDIN + VERANDA de 52 m² lumineux (expo N-O) ! Découvrez ce charmant T3 de 61 m² au RDC surélevé d'un immeuble très récent, datant de 2019 et donc encore sous garantie décennale, totalement au calme, comprenant un séjour avec une grande cuisine entièrement meublée et équipée, le tout pour une taille totale de 27 m², deux chambres, une salle de bain et des WC séparés. De nombreux rangements ont été aménagés dans l'appartement et toutes les pièces tournent autour de la véranda et du jardin, ce qui le rend très agréable ! Une place de parking en souterrain accompagne ce bien. À VISITER SANS TARDER ! La presente annonce immobiliere vise 2 lots situés dans une copropriété de 114 lots au total et ne faisant l'objet d'aucune procédure en cours citée à l'article L. 721-1 du code de la construction et de l'habitation. Montant moyen mensuel de charges déclaré par le vendeur : 183.33€ par mois (soit 2200 € annuel). Honoraires d'agence à la charge du vendeur. Information d'affichage énergétique sur ce bien : classe ENERGIE C indice 82 et classe CLIMAT C indice 15. Les informations sur les risques auxquels ce bien est exposé, y compris l'obligation légale de débroussaillement, sont disponibles sur le site Géorisques : http://www.georisques.gouv.fr. La présente annonce immobilière a été rédigée sous la responsabilité éditoriale de M Samuel Fresco mandataire indépendant en immobilier (sans détention de fonds), agent commercial de la SAS I@D France immatriculé au RSAC de Nanterre sous le numéro 514870872, titulaire de la carte de démarchage immobilier pour le compte de la société I@D France SAS.
Ce mois Cette annonce est récente

À proximité

Recherche des commodités à proximité...

Détails de l'annonce

Localisation

Ville
Asnières-sur-Seine
Pays
FR

Diagnostics / Énergie

Diagnostic DPE
82
Diagnostic GES
15

Surfaces / Pièces / Composition

Nombre d’étages
5

Chauffage et diagnostics

Diagnostic de performance énergétique (DPE)
a
b
c
d
e
f
g
Indice d'émission de gaz à effet de serre (GES)
a
b
c
d
e
f
g
Rappelez-moi