Trouver...

Language: FR

Devise: EUR

Vente Appartement 2 pièces

Publié le 12 March 2026
Type
Bien immobilier
Tarif
157 000 €
Chambres
1
Salles de bain
0

Vente Appartement 2 pièces

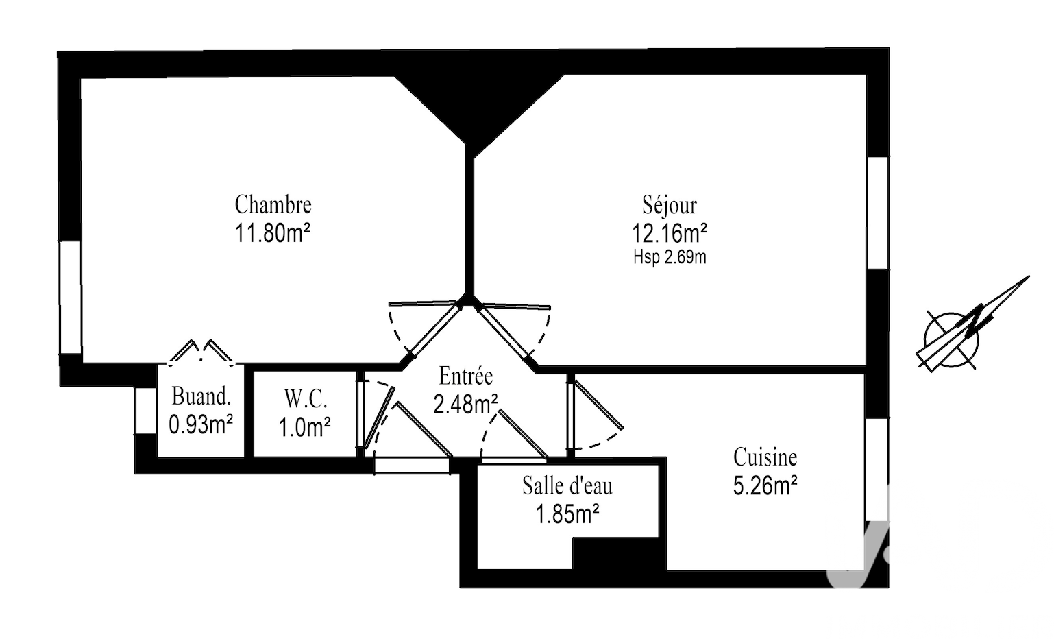
Iad France - Patrick Maia vous propose : 2 pièces – Étage élevé – Lumineux – Petite copropriété Situé à 15mn à pied du RER A, cet appartement est une opportunité idéale pour un premier achat, un pied-à-terre ou un investissement locatif. Au 3ème étage (sans ascenseur) d’une petite copropriété, ce 2 pièces traversant bénéficie d’une excellente luminosité et d’une distribution optimisée sans perte d’espace. Il se compose d’un séjour, d’une cuisine séparée de 5 m² potentiellement ouvrable sur le salon pour bénéficier d’une grande pièce de vie, d’une chambre de 12 m² avec dressing, d’une salle d’eau et d’un WC indépendant. L’agencement est fluide, fonctionnel et parfaitement adapté à un usage quotidien ou locatif. Une cave en sous-sol complète ce bien. Les + : -Appartement traversant et lumineux en étage élevé -Bien aménagé -Petite copropriété à taille humaine -Potentiel existant pour l’aménagement de la pièce de vie Vous souhaitez obtenir davantage d'informations ou planifier une visite ? N'hésitez pas à me contacter, je suis disponible 7j / 7 pour vous offrir un service sur mesure et vous accompagner dans la découverte de votre futur chez-vous. La presente annonce immobiliere vise 1 lot situé dans une copropriété de 10 lots au total et ne faisant l'objet d'aucune procédure en cours citée à l'article L. 721-1 du code de la construction et de l'habitation. Montant moyen mensuel de charges déclaré par le vendeur : 116.67€ par mois (soit 1400 € annuel). Honoraires d'agence à la charge du vendeur. Information d'affichage énergétique sur ce bien : classe ENERGIE F indice 421 et classe CLIMAT C indice 16. Les informations sur les risques auxquels ce bien est exposé, y compris l'obligation légale de débroussaillement, sont disponibles sur le site Géorisques : http://www.georisques.gouv.fr. La présente annonce immobilière a été rédigée sous la responsabilité éditoriale de M Patrick Maia mandataire indépendant en immobilier (sans détention de fonds), agent commercial de la SAS I@D France immatriculé au RSAC de NANTERRE sous le numéro 884199514, titulaire de la carte de démarchage immobilier pour le compte de la société I@D France SAS.
Cette semaine Cette annonce est récente

À proximité

Recherche des commodités à proximité...

Détails de l'annonce

Localisation

Ville
Sartrouville
Pays
FR

Diagnostics / Énergie

Diagnostic DPE
421
Diagnostic GES
16

Surfaces / Pièces / Composition

Nombre d’étages
4
Étage
3

Chauffage et diagnostics

Diagnostic de performance énergétique (DPE)
a
b
c
d
e
f
g
Indice d'émission de gaz à effet de serre (GES)
a
b
c
d
e
f
g
Rappelez-moi