Type
Bien immobilierTarif
244 000 €Chambres
1Salles de bain
0Vente Appartement 2 pièces
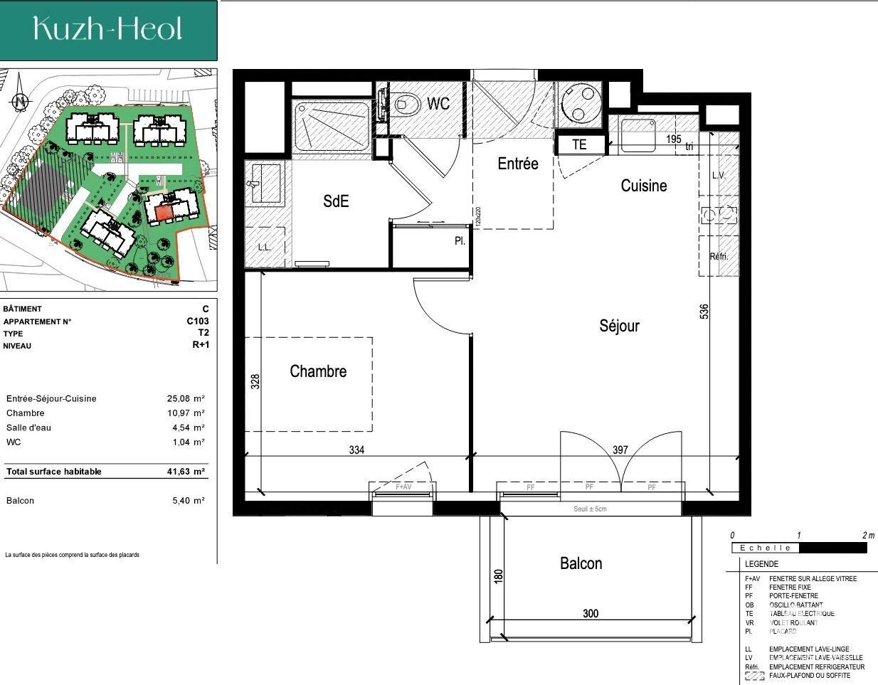
Iad France - Marc Franc (07 80 36 67 20) vous propose : === FRAIS DE NOTAIRE OFFERTS jusqu'au 28 février 2026 === NOUVEAUTÉ - Résidence 'KUZH-HEOL' à ARZON : VOTRE RÉSIDENCE PRINCIPALE OU SECONDAIRE PROCHE DES PLAGES. Résidence « KUZH-HEOL », un emplacement d'exception, à deux pas des belles plages de sable fin, du port du Crouesty, à l'extrémité de la presqu'île de Rhuys, la porte d'entrée du GOLFE DU MORBIHAN (petite mer) - Appartement 2 pièces, 1 chambre, R + 1,. orientation Sud,. contenance totale de 42 m² environ,. Balcon,. parking aérien,. frais de notaire estimés à 6100 euros en moyenne. ARZON, écrin chargé d'histoire où se conjuguent douceur de vivre et havre de paix, sur un territoire riche de sa culture, de son tissu économique, de son tourisme (station balnéaire), ses nombreux services de proximité (écoles, commerces, service à la santé) 48 logements TOUT CONFORT du 2 au 4 pièces répartis sur cinq bâtiments, de 2 étages, à l'architecture régionale pensée pour allier élégance et authenticité. Une opportunité rare pour habiter ou investir dans un cadre préservé. Ne manquez pas de concrétiser votre rêve, profitez des multiples atouts de cette opportunité à ARZON, commune accueillante et dynamique, nombreux équipements sportifs et culturels, golf, cinéma, site idéal pour les amoureux de la randonnée et des sports nautiques. Autres logements disponibles : - de 2 à 4 pièces, - de 42 à 78 m² environ, - avec parking aérien (lot secondaire), - deux parkings pour les 4 pièces seulement (lots secondaires), - certains avec terrasse et jardin privatif, - d'autres avec balcon, - ou encore balcon et terrasse, - d'autres avec cellier (lot secondaire) - ou cellier et parking aérien (lots secondaires) - certains évolutifs. Certifiée NF HABITAT et Règlementation Environnementale RE 2020. Date de livraison au 1er Trimestre 2027 Contactez-moi pour en savoir plus et réserver ! Honoraires d’agence à la charge du vendeur. Bien non soumis au DPE. Les informations sur les risques auxquels ce bien est exposé sont disponibles sur le site Géorisques : www.georisques.gouv.fr. La présente annonce immobilière a été rédigée sous la responsabilité éditoriale de M. Marc Franc EI (ID 83540), mandataire indépendant en immobilier (sans détention de fonds), agent commercial de la SAS I@D France immatriculé au RSAC de VANNES sous le numéro 931732952, titulaire de la carte de démarchage immobilier pour le compte de la société I@D France SAS. Retrouvez tous nos biens sur notre site internet. www.iadfrance.fr.
À proximité
Recherche des commodités à proximité...
Détails de l'annonce
Localisation
Ville
Arzon
Pays
FR
Surfaces / Pièces / Composition
Nombre d’étages
2
Chauffage et diagnostics
Diagnostic de performance énergétique (DPE)
a
b
c
d
e
f
g
Indice d'émission de gaz à effet de serre (GES)
a
b
c
d
e
f
g
