Trouver...

Language: FR

Devise: EUR

Vente Appartement 3 pièces

Publié le 4 September 2025
Type
Bien immobilier
Tarif
165 000 €
Chambres
2
Salles de bain
0

Vente Appartement 3 pièces

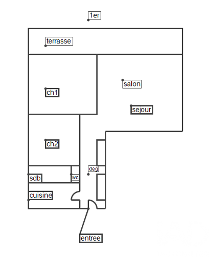
Iad France - Alexandre Gourjault vous propose : * Opportunité à Saint-Pierre-la-Mer - Station balnéaire prisée - Appartement T3 de 65 m² avec balcon de 14 m² - A 300 m de la plage et des commodités - FAIBLES charges de copropriété - Secteur calme et non passager- Menuiseries en PVC et volets roulants électriques * + Idéale en habitation secondaire même pour y vivre à l'année, fort potentiel locatif saisonnier toute l'année + Cet appartement saura vous séduire par ses volumes et son exposition. Il dispose d'une pièce de vie lumineuse de 26 m² ouverte sur un balcon de 14 m², dotée de deux chambres avec placard, la 1ère de 16 m² et la 2nde de 9 m² avec meuble vasque, d'une cuisine équipée, d'une salle d'eau et des toilettes séparées. Dans le couloir des grands placards vous seront utiles pour le rangement. Ses beaux volumes pourraient vous donner des nouvelles idées afin d'y créer un agencement moderne. Les charges annuelles sont faibles d'un montant de 180 € environ et il n'y a pas de procédure ni de travaux en cours. N'hésitez pas à me contacter si vous souhaitez plus d'informations ou organiser une visite. La presente annonce immobiliere vise 1 lot situé dans une copropriété de 7 lots au total et ne faisant l'objet d'aucune procédure en cours citée à l'article L. 721-1 du code de la construction et de l'habitation. Montant moyen mensuel de charges déclaré par le vendeur : 15€ par mois (soit 180 € annuel). Honoraires d'agence à la charge du vendeur. Information d'affichage énergétique sur ce bien : classe ENERGIE D indice 240 et classe CLIMAT C indice 18. Les informations sur les risques auxquels ce bien est exposé, y compris l'obligation légale de débroussaillement, sont disponibles sur le site Géorisques : http://www.georisques.gouv.fr. La présente annonce immobilière a été rédigée sous la responsabilité éditoriale de M Alexandre Gourjault mandataire indépendant en immobilier (sans détention de fonds), agent commercial de la SAS I@D France immatriculé au RSAC de Narbonne sous le numéro 908013634, titulaire de la carte de démarchage immobilier pour le compte de la société I@D France SAS.

À proximité

Recherche des commodités à proximité...

Détails de l'annonce

Localisation

Ville
Saint-Pierre-la-Mer
Pays
FR

Diagnostics / Énergie

Diagnostic DPE
240
Diagnostic GES
18

Surfaces / Pièces / Composition

Nombre d’étages
2

Chauffage et diagnostics

Diagnostic de performance énergétique (DPE)
a
b
c
d
e
f
g
Indice d'émission de gaz à effet de serre (GES)
a
b
c
d
e
f
g
Rappelez-moi