Type
Bien immobilierTarif
175 000 €Chambres
1Salles de bain
0Vente Maison/villa 3 pièces
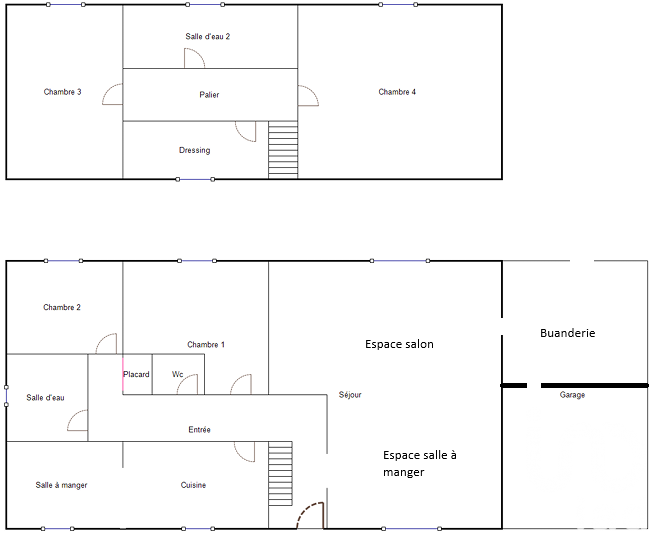
Iad France - Cyrille Dupré vous propose : Charmante Maison à Saint-Étienne-les-Orgues avec Jardin Arboré. Découvrez cette charmante maison située à Saint-Étienne-les-Orgues au pied de la montagne de Lure, offrant un espace de vie confortable dans un cadre paisible. Construite en 1960, cette maison de 60 m² environ sur un terrain de 760 m² nécessite une rénovation mais offre un grand potentiel pour en faire un véritable cocon, parcelle piscinable. Au rez-de-chaussée, vous trouverez une cuisine avec sa veranda, salon, salle à manger, une salle d'eau, un WC. Le salon-salle à manger avec ue terrasse est idéal pour partager des repas en famille ou entre amis. À l'étage, un espace vous offre un espace personnel confortable et intime. Les ouvertures de la maison permettent à la lumière naturelle d'illuminer chaque pièce, créant une atmosphère chaleureuse et accueillante. L'extérieur de la maison dispose de quatre expositions (nord, sud, est, ouest) offrant une vue dégagée sur les environs et permettant de profiter du soleil tout au long de la journée. Cette maison est équipée d'un système de chauffage individuel comprenant des radiateurs, garantissant un confort thermique optimal. Entourée par un jardin spacieux clôturé, cette propriété offre de nombreuses possibilités d'aménagement extérieur selon vos envies, que ce soit pour créer un espace de détente, un potager ou un espace de jeu pour les enfants. À proximité des commodités locales, des écoles et des transports en commun, cette maison est idéale pour les amateurs de tranquillité à la recherche d'un projet de rénovation pour créer leur cocon douillet. Une occasion à ne pas manquer pour réaliser votre projet de vie ! Honoraires d'agence à la charge du vendeur. Bien non soumis au DPE. Les informations sur les risques auxquels ce bien est exposé, y compris l'obligation légale de débroussaillement, sont disponibles sur le site Géorisques : http://www.georisques.gouv.fr. La présente annonce immobilière a été rédigée sous la responsabilité éditoriale de M Cyrille Dupré mandataire indépendant en immobilier (sans détention de fonds), agent commercial de la SAS I@D France immatriculé au RSAC de Manosque sous le numéro 830517462, titulaire de la carte de démarchage immobilier pour le compte de la société I@D France SAS.
À proximité
Recherche des commodités à proximité...
Détails de l'annonce
Localisation
Ville
Saint-Étienne-les-Orgues
Pays
FR
Surfaces / Pièces / Composition
Nombre d’étages
2
Chauffage et diagnostics
Diagnostic de performance énergétique (DPE)
a
b
c
d
e
f
g
Indice d'émission de gaz à effet de serre (GES)
a
b
c
d
e
f
g
