Type
Bien immobilierTarif
1 650 000 €Chambres
0Salles de bain
0Vente Maison/villa 13 pièces
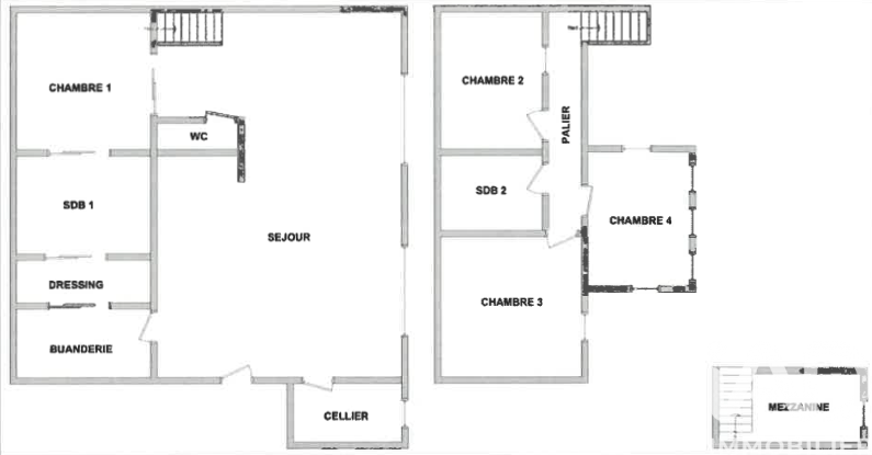
Iad France - Bastien Francois vous propose : Cette propriété d’exception offre une superficie de 320 m² sur un terrain de 3 200 m² environ. Quatre chambres spacieuses, Trois salles d’eau, un salon lumineux, une cuisine équipée, une arrière-cuisine, un garage, ainsi qu’une cuisine extérieure. Une des chambres dispose d’une terrasse privative couverte, permettant d’envisager une cuisine. Construite entre 2013 cette demeure moderne comprend trois dépendances de 45 m² chacune, entièrement équipées et louées en meublé, génèrent un revenu locatif mensuel de 1 000 € par dépendance, soit un total de 3 000 € par mois. La possibilité de cloisonner un espace pour faire une chambre supplémentaire et de passer à huit chambres au total. La Garde-Freinet bénéficie d’un accès rapide vers Port-Grimaud, sans embouteillages, même en période estivale. En seulement 25 minutes, vous rejoindrez la mer, un véritable atout pour vos déplacements. N’hésitez pas a me contacter pour avoir des photos des dépendances. Honoraires d'agence à la charge du vendeur. Information d'affichage énergétique sur ce bien : classe ENERGIE A indice 65 et classe CLIMAT A indice 2. Les informations sur les risques auxquels ce bien est exposé, y compris l'obligation légale de débroussaillement, sont disponibles sur le site Géorisques : http://www.georisques.gouv.fr. La présente annonce immobilière a été rédigée sous la responsabilité éditoriale de M Bastien Francois mandataire indépendant en immobilier (sans détention de fonds), agent commercial de la SAS I@D France immatriculé au RSAC de Fréjus sous le numéro 932374879, titulaire de la carte de démarchage immobilier pour le compte de la société I@D France SAS.
À proximité
Recherche des commodités à proximité...
Détails de l'annonce
Localisation
Ville
La Garde-Freinet
Pays
FR
Diagnostics / Énergie
Diagnostic DPE
65
Diagnostic GES
2
Chauffage et diagnostics
Diagnostic de performance énergétique (DPE)
a
b
c
d
e
f
g
Indice d'émission de gaz à effet de serre (GES)
a
b
c
d
e
f
g
