Type
Bien immobilierTarif
1 800 000 €Chambres
6Salles de bain
0Vente Maison de ville 8 pièces
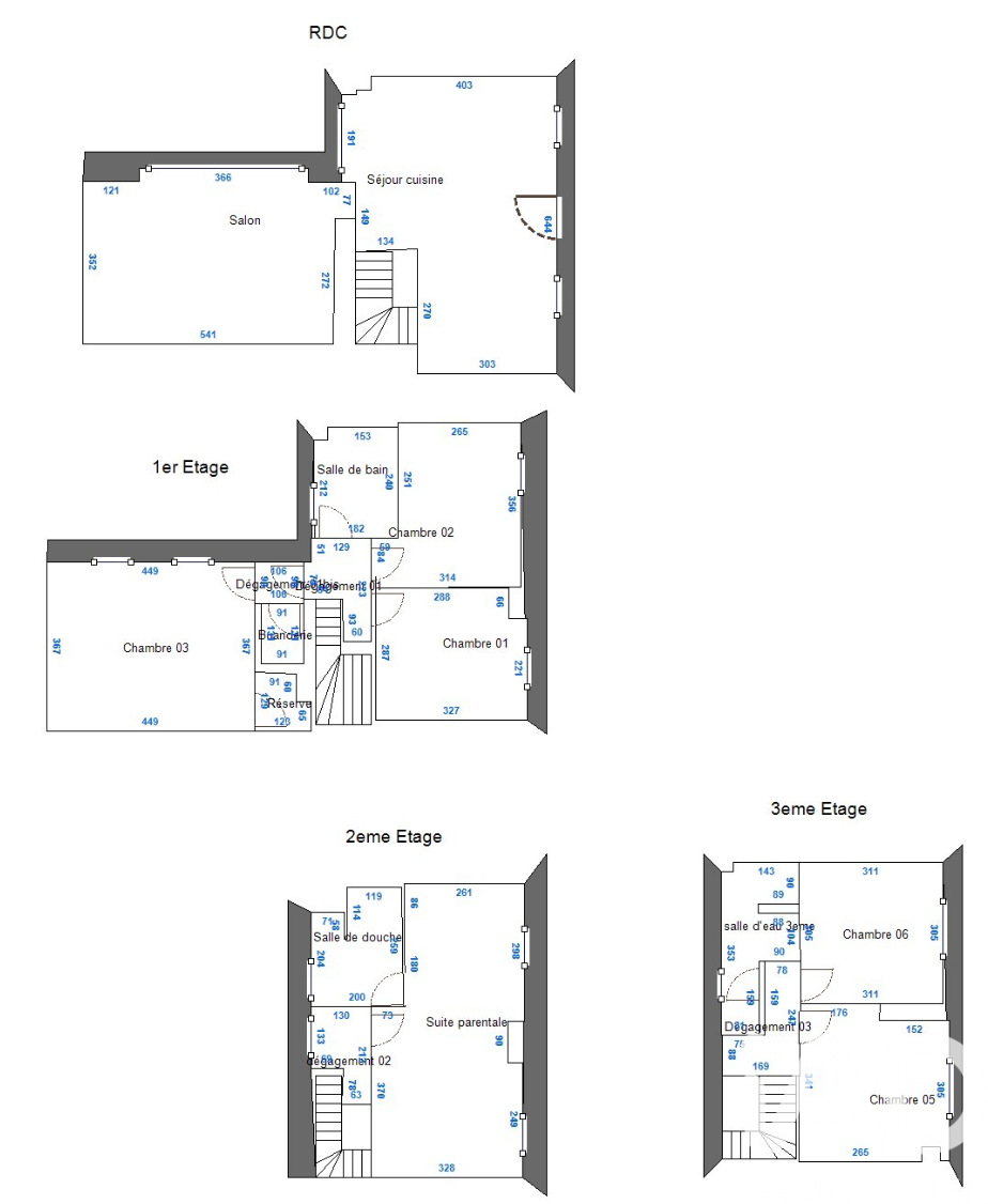
Iad France - Maryam Karimi vous propose : * Maison 8 pièces – Paris 15e – 145 m² avec 2 terrasses et cave * Découvrez cette sublime maison spacieuse et lumineuse de 145 m² environ, construit sur un terrain de 210 m², situé dans le quartier Saint-Lambert au 15ème arrondissement de Paris. Entièrement rénovée, elle propose de très belles prestations dans un cadre de vie privilégié. Construite en 1895, cette maison vous offre un style unique mêlant charme d'antan et modernité. La rénovation récente a su préserver l'authenticité des lieux tout en ajoutant des touches contemporaines pour un confort optimal. Description du bien : Maison de 8 pièces sur 4 niveaux Au rez-de-chaussée : Dès l'entrée, vous serez séduit par le caractère des lieux. Vous découvrirez un espace de vie généreux comprenant une cuisine équipée, moderne et fonctionnelle, une salle à manger conviviale et un salon lumineux avec accès à la première terrasse de 14 m². Au 1er étage : Trois chambres vous attendent (9 m², 10 m² et 16 m²) à cet étage, chacune offrant un havre de paix propice à la détente. Une salle de bain / WC et une buanderie complètent l'aménagement de cet étage. Au 2ème étage : Vous trouverez une chambre parentale de 19 m² avec sa salle de douche / WC et de nombreux placards intégrés. Cet étage donne accès à la deuxième terrasse de 22 m². Les belles journées ensoleillées pourront être appréciées sur cette terrasse, offrant un espace extérieur privilégié en plein cOEur de la ville. Au 3ème étage : Vous avez deux chambres lumineuses de 10 m² et une salle d’eau / WC. Des rangements intégrés se trouvent également sur le palier à cet étage. * Cette belle maison offre également une cave en sous-sol, idéal pour du rangement supplémentaire ou une cave à vin, selon vos besoins. Située dans un quartier prisé de Paris, cette maison bénéficie de toutes les commodités à proximité, des écoles aux commerces en passant par les transports en commun. M° Porte de Vanves (ligne 13) à 9 minutes, M° Plaisance (ligne 13) à 10 minutes. Bus n°62,89. Tram T3. Stationnement : Possibilité d’acquérir une place de parking à proximité, en supplément (35 000€). Ne manquez pas l'opportunité de devenir l'heureux propriétaire de cette maison unique alliant passer et présent à la perfection. Contactez-nous pour plus d'information. Honoraires d'agence à la charge du vendeur. Information d'affichage énergétique sur ce bien : classe ENERGIE D indice 205 et classe CLIMAT D indice 39. Les informations sur les risques auxquels ce bien est exposé, y compris l'obligation légale de débroussaillement, sont disponibles sur le site Géorisques : http://www.georisques.gouv.fr. La présente annonce immobilière a été rédigée sous la responsabilité éditoriale de Mme Maryam Karimi mandataire indépendant en immobilier (sans détention de fonds), agent commercial de la SAS I@D France immatriculé au RSAC de NANTERRE sous le numéro 814700662, titulaire de la carte de démarchage immobilier pour le compte de la société I@D France SAS.
À proximité
Recherche des commodités à proximité...
Détails de l'annonce
Localisation
Ville
Paris
Pays
FR
Diagnostics / Énergie
Diagnostic DPE
205
Diagnostic GES
39
Surfaces / Pièces / Composition
Nombre d’étages
3
Chauffage et diagnostics
Diagnostic de performance énergétique (DPE)
a
b
c
d
e
f
g
Indice d'émission de gaz à effet de serre (GES)
a
b
c
d
e
f
g
