Type
Bien immobilierTarif
489 000 €Chambres
3Salles de bain
0Vente Appartement 4 pièces
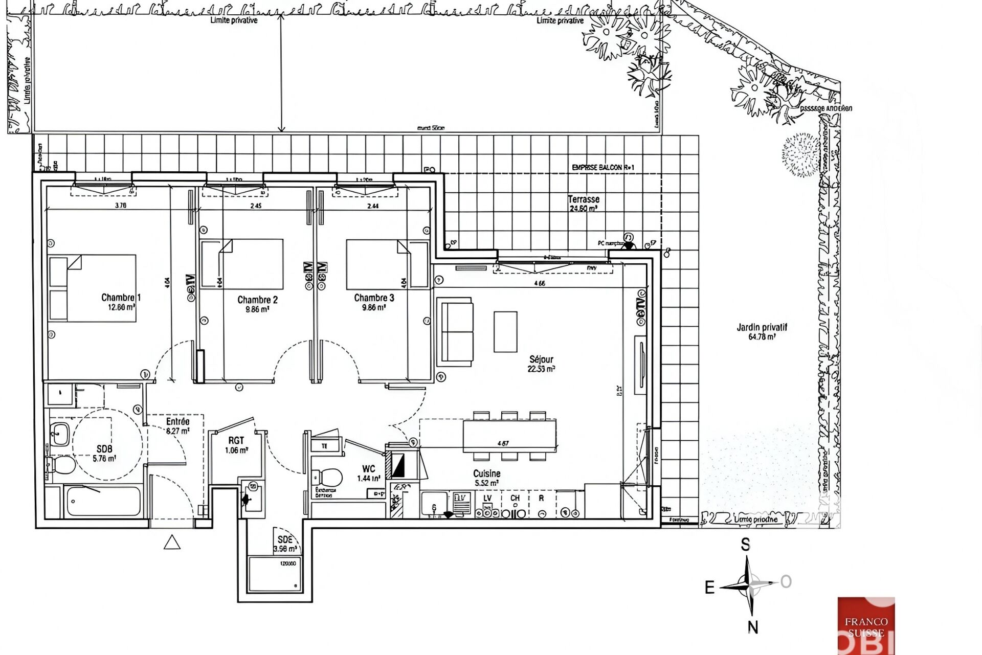
Iad France - Cyril Strady vous propose : PARC DE SCEAUX – 4 PIÈCES – 3 CHAMBRES – TERRASSE ET JARDIN – 2 PARKINGS – CAVE À seulement 4 minutes à pied du Parc de Sceaux et de la Coulée Verte, découvrez cet appartement T4 de 81 m², situé en rez-de-jardin d’une résidence récente Franco-Suisse de standing, à proximité immédiate des transports, commerces et écoles. Il se compose d’une entrée avec rangements, d’une pièce de vie lumineuse avec cuisine ouverte aménagée et équipée, ouvrant sur une terrasse et un jardin ensoleillé, sans vis-à-vis. L’espace nuit comprend trois belles chambres, une salle de bains avec WC, une salle d’eau et un second WC séparé. Deux places de parking en sous-sol et une cave complètent ce bien. Résidence récente et bien entretenue. Aucun travaux à prévoir. Double exposition, parquet massif. Commerces, école et collège à 2 minutes à pied. RER B accessible en 12 minutes à pied ou à une station de tramway T10. Parc de Sceaux, Coulée Verte et futur centre aquatique de la Grenouillère à proximité. Un bien rare offrant un cadre de vie privilégié entre nature, transports et commodités. Contactez-moi pour organiser une visite. La presente annonce immobiliere vise 3 lots situés dans une copropriété de 248 lots au total et ne faisant l'objet d'aucune procédure en cours citée à l'article L. 721-1 du code de la construction et de l'habitation. Montant moyen mensuel de charges déclaré par le vendeur : 202.33€ par mois (soit 2428 € annuel). Honoraires d'agence à la charge du vendeur. Information d'affichage énergétique sur ce bien : classe ENERGIE C indice 62 et classe CLIMAT C indice 11. Les informations sur les risques auxquels ce bien est exposé, y compris l'obligation légale de débroussaillement, sont disponibles sur le site Géorisques : http://www.georisques.gouv.fr. La présente annonce immobilière a été rédigée sous la responsabilité éditoriale de M Cyril Strady mandataire indépendant en immobilier (sans détention de fonds), agent commercial de la SAS I@D France immatriculé au RSAC de NANTERRE sous le numéro 904271822, titulaire de la carte de démarchage immobilier pour le compte de la société I@D France SAS.
Cette semaine
Cette annonce est récente
À proximité
Recherche des commodités à proximité...
Détails de l'annonce
Localisation
Ville
Châtenay-Malabry
Pays
FR
Diagnostics / Énergie
Diagnostic DPE
62
Diagnostic GES
11
Surfaces / Pièces / Composition
Nombre d’étages
3
Chauffage et diagnostics
Diagnostic de performance énergétique (DPE)
a
b
c
d
e
f
g
Indice d'émission de gaz à effet de serre (GES)
a
b
c
d
e
f
g
