Trouver...

Language: FR

Devise: EUR

Vente Immeuble 150 m²

Publié le 21 January 2026
Type
Bien immobilier
Tarif
168 000 €
Chambres
0
Salles de bain
0

Vente Immeuble 150 m²

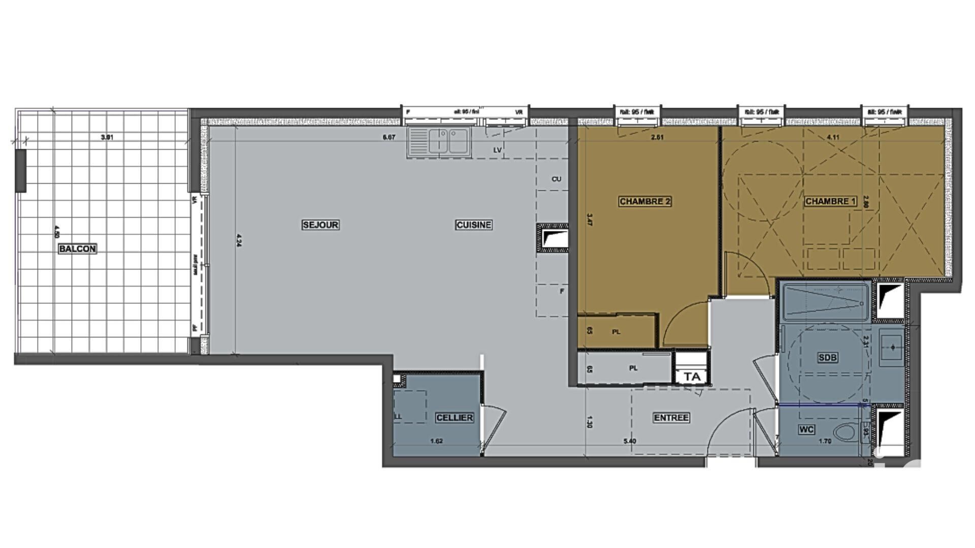
Iad France - Véronique Jan vous propose : Proche du centre ville et de toutes commodités, cet immeuble comprend deux appartements indépendants. - Un deux pièces de 54 m² comprenant un agréable séjour ouvert sur sa terrasse privative d’environ 50 m², une cuisine équipée, une chambre, une salle d’eau et un wc. Précédemment loué 550€ par mois. - un P4 de 92 m² avec séjour de 46 m² et sa cuisine américaine, également ouvert sur une terrasse privative sans vis à vis, 3 chambres dont une avec salle d’eau, une salle de bains et wc indépendant. Loyer possible de 770 €. Chacun lot est vendu avec une place de parking et une cave. Un bien idéal pour des investisseurs avertis ou pour des particuliers à la recherche d'un projet hors du commun. Contactez-nous dès maintenant pour organiser une visite et laisser libre cours à votre imagination ! Honoraires d'agence à la charge du vendeur. Information d'affichage énergétique sur ce bien : classe ENERGIE C indice 176 et classe CLIMAT A indice 5. Les informations sur les risques auxquels ce bien est exposé, y compris l'obligation légale de débroussaillement, sont disponibles sur le site Géorisques : http://www.georisques.gouv.fr. La présente annonce immobilière a été rédigée sous la responsabilité éditoriale de Mme Véronique Jan mandataire indépendant en immobilier (sans détention de fonds), agent commercial de la SAS I@D France immatriculé au RSAC de Nimes sous le numéro 511533598, titulaire de la carte de démarchage immobilier pour le compte de la société I@D France SAS.
Cette semaine Cette annonce est récente

À proximité

Recherche des commodités à proximité...

Détails de l'annonce

Chauffage et diagnostics

Diagnostic de performance énergétique (DPE)
a
b
c
d
e
f
g
Indice d'émission de gaz à effet de serre (GES)
a
b
c
d
e
f
g
Rappelez-moi