Type
Bien immobilierTarif
160 000 €Chambres
2Salles de bain
0Vente Maison/villa 3 pièces
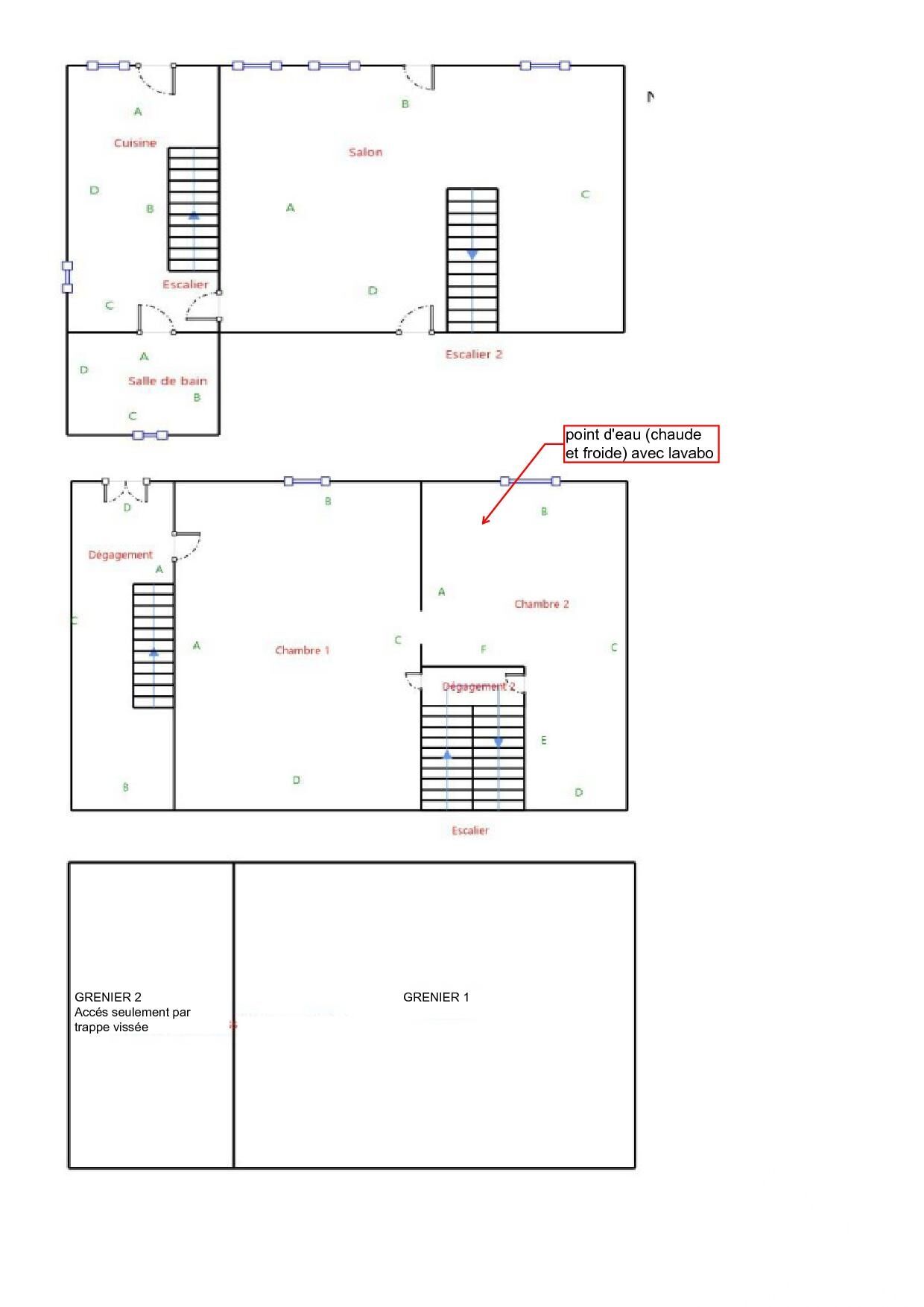
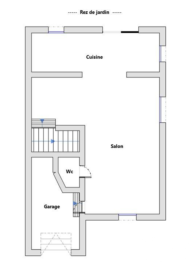
Iad France - Michael Suess vous propose : Maison authentique avec beaucoup de cachet à 2 km de la plage de sable de Bréhec – Idéale résidence secondaire. Tout près des sentiers de randonnée en forêt et du GR34, cette maison traditionnelle historique dans un petit village breton du littoral séduit par son authenticité et son emplacement. D’une surface de 105 m² sur 2 niveaux, elle se compose au rez-de-chaussée d’un grand salon-séjour de 40 m² avec cheminée, d’une cuisine et d’une salle d’eau. À l’étage, vous trouverez deux chambres et une pièce mezzanine. Un grenier de 40 m² est aménageable selon vos envies. Rénovée partiellement entre 2008 et 2010 (40 000 € de travaux : électricité, façade, salle d'eau, enduits), elle a conservé tout le charme de l’ancien. Raccordée au tout-à-l’égout en 2025. À noter : Charme et authenticité À 2 km de la plage de Bréhec et du GR34 Potentiel d’agrandissement avec le grenier Épicerie de village à pied Petit jardinet d'environ 14 m² derrière la maison Mitoyenne d’un côté Un pied-à-terre idéal pour profiter du littoral breton et des randonnées Honoraires d'agence à la charge du vendeur. Information d'affichage énergétique sur ce bien : classe ENERGIE G indice 498 et classe CLIMAT C indice 16. Les informations sur les risques auxquels ce bien est exposé, y compris l'obligation légale de débroussaillement, sont disponibles sur le site Géorisques : http://www.georisques.gouv.fr. La présente annonce immobilière a été rédigée sous la responsabilité éditoriale de M Michael Suess mandataire indépendant en immobilier (sans détention de fonds), agent commercial de la SAS I@D France immatriculé au RSAC de SAINT BRIEUC sous le numéro 523487890, titulaire de la carte de démarchage immobilier pour le compte de la société I@D France SAS.
À proximité
Recherche des commodités à proximité...
Détails de l'annonce
Localisation
Ville
Lanloup
Pays
FR
Diagnostics / Énergie
Diagnostic DPE
411
Diagnostic GES
16
Chauffage et diagnostics
Diagnostic de performance énergétique (DPE)
a
b
c
d
e
f
g
Indice d'émission de gaz à effet de serre (GES)
a
b
c
d
e
f
g
