Trouver...

Language: FR

Devise: EUR

Vente Immeuble 375 m²

Publié le 31 January 2026
Type
Bien immobilier
Tarif
265 000 €
Chambres
0
Salles de bain
0

Vente Immeuble 375 m²

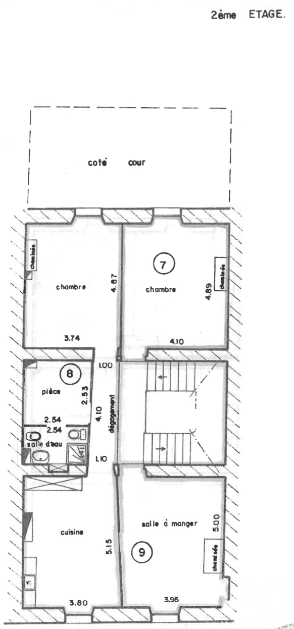
Iad France - Julie Broustal vous propose : Immeuble de rapport à fort potentiel, idéalement situé en centre-ville, offrant une surface potentiellement habitable d’environ 375 m² après rénovation. Ce bien s’adresse principalement à des investisseurs à la recherche d’un projet à forte création de valeur et de rendement locatif. Le rez-de-chaussée est rénové et actuellement loué, composé de deux locaux, permettant de bénéficier d’un revenu locatif immédiat dès l’acquisition. Le reste de l’immeuble est à rénover intégralement, offrant une grande liberté d’aménagement et de division. L’immeuble se développe sur plusieurs niveaux. En complément des locaux loués, le rez-de-chaussée comprend une pièce d’environ 36 m² ainsi qu’une cour fermée avec WC d’environ 27 m², l’ensemble à rénover. Le 1er étage, d’environ 85 m² répartis en cinq pièces, est à rénover entièrement. Le 2e étage présente une configuration similaire, avec des travaux déjà engagés dans deux pièces. Le 3e étage se compose de trois pièces, dont une sous toiture, et nécessite une rénovation complète. Un 4e niveau est envisageable, bien qu’aucun accès ne soit existant à ce jour. La cage d’escalier représente environ 6 m² par niveau. Sur le plan technique, l’ensemble des menuiseries est en double vitrage et l’immeuble dispose de compteurs d’eau et d’électricité individuels par appartement, facilitant la gestion locative. La toiture et la charpente sont d’origine, une simple révision a été réalisée, sans réfection complète. Cet immeuble constitue une opportunité rare, combinant revenus locatifs existants, important potentiel de transformation et optimisation future du rendement après travaux. Honoraires d'agence à la charge du vendeur. Bien non soumis au DPE. Les informations sur les risques auxquels ce bien est exposé, y compris l'obligation légale de débroussaillement, sont disponibles sur le site Géorisques : http://www.georisques.gouv.fr. La présente annonce immobilière a été rédigée sous la responsabilité éditoriale de Mme Julie Broustal mandataire indépendant en immobilier (sans détention de fonds), agent commercial de la SAS I@D France immatriculé au RSAC de NIMES sous le numéro 880136007, titulaire de la carte de démarchage immobilier pour le compte de la société I@D France SAS.

À proximité

Recherche des commodités à proximité...

Détails de l'annonce

Localisation

Ville
Saint-Ambroix
Pays
FR

Surfaces / Pièces / Composition

Nombre d’étages
4

Chauffage et diagnostics

Diagnostic de performance énergétique (DPE)
a
b
c
d
e
f
g
Indice d'émission de gaz à effet de serre (GES)
a
b
c
d
e
f
g
Rappelez-moi