Trouver...

Language: FR

Devise: EUR

Vente Appartement 3 pièces

Publié le 25 November 2025
Type
Bien immobilier
Tarif
310 000 €
Chambres
0
Salles de bain
0

Vente Appartement 3 pièces

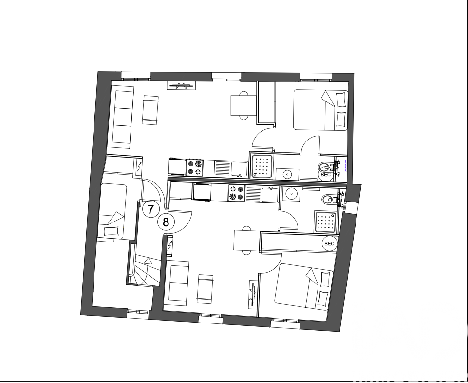
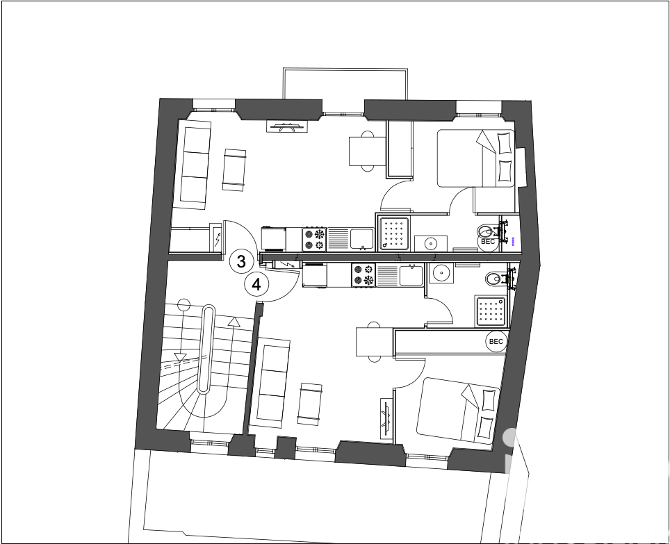
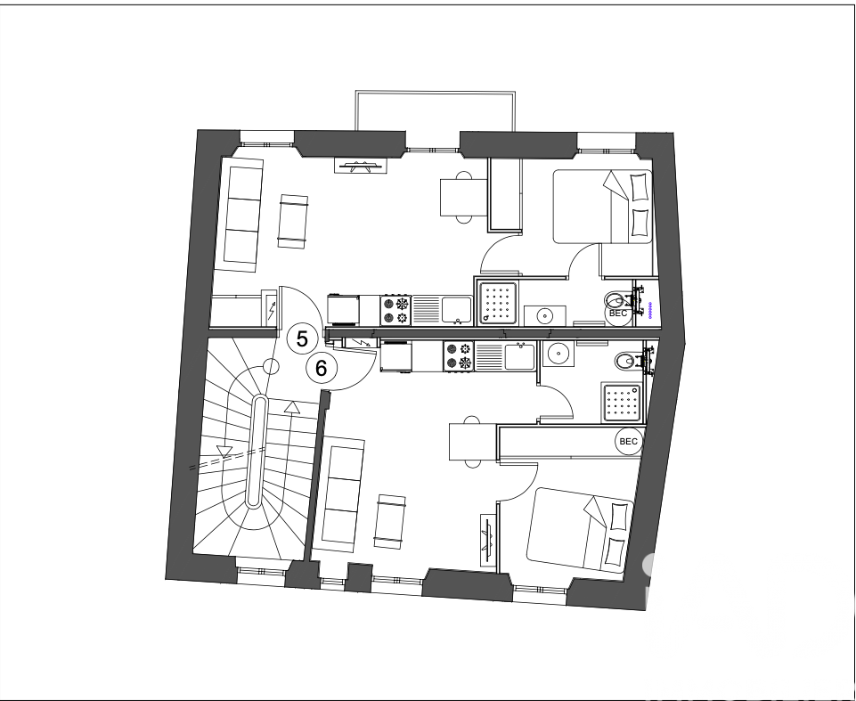
Iad France - Virginie PASTEUR vous propose : Appartement libre, non loué, situé dans un environnement paisible sur la commune de Valleiry, à proximité immédiate des écoles, commerces et autres commodités, cet appartement de type T3 saura vous séduire par ses nombreux atouts et son cadre de vie agréable. Installé dans une petite copropriété à taille humaine, ce bien bénéficie d’un calme absolu tout en étant proche des principaux axes routiers. Ce T3 traversant, d’une superficie de 62.5 m², se compose d’une entrée spacieuse avec un placard intégré permettant un rangement optimal dès l’arrivée. Un cellier buanderie attenant à l’entrée. La pièce principale se compose d’une cuisine équipée ouverte sur un salon salle à manger lumineux. Cet espace de vie spacieux et fonctionnel bénéficie d’une belle exposition, créant une ambiance chaleureuse et conviviale. La cuisine, moderne et bien agencée, dispose de tous les équipements nécessaires pour cuisiner. De plus, le salon salle à manger s’ouvre sur une terrasse privée sans vis-à-vis, offrant ainsi un véritable havre de paix pour profiter des journées ensoleillées ou de moments de détente en extérieur. L’appartement dispose également d’une partie nuit distincte et parfaitement isolée pour plus de tranquillité. Vous y trouverez deux chambres confortables, la salle de bain est équipée d’une baignoire, un WC séparé complète cette partie du logement Un garage fermé en sous-sol, sécurisé, vous permettra de stationner votre véhicule en toute sécurité. Une place de parking privative devant la résidence, pratique pour accueillir vos invités ou stationner un second véhicule. Vous bénéficierez ainsi d’une localisation stratégique, permettant à la fois tranquillité et praticité au quotidien. La presente annonce immobiliere vise 3 lots situés dans une copropriété de 402 lots au total et ne faisant l'objet d'aucune procédure en cours citée à l'article L. 721-1 du code de la construction et de l'habitation. Montant moyen mensuel de charges déclaré par le vendeur : 116.67€ par mois (soit 1400 € annuel). Honoraires d'agence à la charge du vendeur. Information d'affichage énergétique sur ce bien : classe ENERGIE D indice 201 et classe CLIMAT B indice 6. Les informations sur les risques auxquels ce bien est exposé, y compris l'obligation légale de débroussaillement, sont disponibles sur le site Géorisques : http://www.georisques.gouv.fr. La présente annonce immobilière a été rédigée sous la responsabilité éditoriale de Mme Virginie PASTEUR mandataire indépendant en immobilier (sans détention de fonds), agent commercial de la SAS I@D France immatriculé au RSAC de thonon-les-bains sous le numéro 844943100, titulaire de la carte de démarchage immobilier pour le compte de la société I@D France SAS.

À proximité

Recherche des commodités à proximité...

Détails de l'annonce

Localisation

Ville
Valleiry
Pays
FR

Diagnostics / Énergie

Diagnostic DPE
201
Diagnostic GES
6

Surfaces / Pièces / Composition

Nombre d’étages
3

Chauffage et diagnostics

Diagnostic de performance énergétique (DPE)
a
b
c
d
e
f
g
Indice d'émission de gaz à effet de serre (GES)
a
b
c
d
e
f
g
Rappelez-moi