Type
Bien immobilierTarif
175 000 €Chambres
3Salles de bain
0Vente Maison/villa 4 pièces
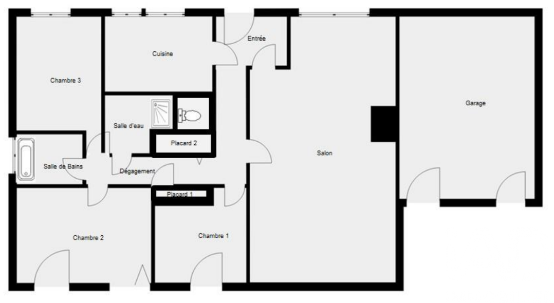
Iad France - Morgane Alexis vous propose : Idéalement située à Dreux, à proximité immédiate de la RN12 et de toutes les commodités, cette maison de plain pied d’environ 92 m² vous séduira par ses volumes et ses nombreuses possibilités d’aménagement. Elle est édifiée sur une parcelle de 500 m². Dès l’entrée, vous découvrez une distribution agréable avec une cuisine dinatoire indépendante et un double séjour lumineux d’environ 35 m², agrémenté d’une cheminée à foyer ouvert, pouvant être remplacée par un poêle à bois ou à granulés. L’espace nuit se compose de trois chambres, d’une salle de bain, d’une salle d’eau et d’un WC indépendant. À l’extérieur, vous profitez d’un jardin entièrement clos, exposé sud-est, ainsi que d’un garage spacieux d’environ 25 m², idéal pour stationner un véhicule, stocker ou aménager un espace atelier selon vos besoins. Des travaux de rafraîchissement sont à prévoir, laissant place à une belle opportunité de personnaliser cette maison selon vos envies et de révéler tout son potentiel. Des propositions d’aménagements plus modernes ont été réalisées afin de vous aider à vous projeter. + Ses atouts + : proximité des commodités, confort du plain pied, belle pièce de vie, exposition sud-est. Une visite virtuelle est proposée : n’hésitez pas à la découvrir pour vous projeter pleinement et découvrir le potentiel de cette maison. Avis aux confrères : je pratique l'interagence, contactez-moi pour organiser une visite avec vos clients. Honoraires d'agence à la charge de l'acquéreur. Prix honoraires inclus : 175000 euros. Prix hors honoraires : 167000 euros. Honoraires TTC à la charge de l'acquéreur (4,79% du prix du bien hors honoraires) : 8000 euros. Information d'affichage énergétique sur ce bien : classe ENERGIE D indice 177 et classe CLIMAT D indice 37. Les informations sur les risques auxquels ce bien est exposé, y compris l'obligation légale de débroussaillement, sont disponibles sur le site Géorisques : http://www.georisques.gouv.fr. La présente annonce immobilière a été rédigée sous la responsabilité éditoriale de Mme Morgane Alexis mandataire indépendant en immobilier (sans détention de fonds), agent commercial de la SAS I@D France immatriculé au RSAC de Versailles sous le numéro 951113935, titulaire de la carte de démarchage immobilier pour le compte de la société I@D France SAS.
Nouveau
Cette annonce est récente
À proximité
Recherche des commodités à proximité...
Détails de l'annonce
Localisation
Ville
Dreux
Pays
FR
Diagnostics / Énergie
Diagnostic DPE
177
Diagnostic GES
37
Finances / Mandat / Références
Honoraires
8 €
Surfaces / Pièces / Composition
Nombre d’étages
Chauffage et diagnostics
Diagnostic de performance énergétique (DPE)
a
b
c
d
e
f
g
Indice d'émission de gaz à effet de serre (GES)
a
b
c
d
e
f
g
