Trouver...

Language: FR

Devise: EUR

Vente Maison/villa 10 pièces

Publié le 25 October 2025
Type
Bien immobilier
Tarif
168 000 €
Chambres
4
Salles de bain
0

Vente Maison/villa 10 pièces

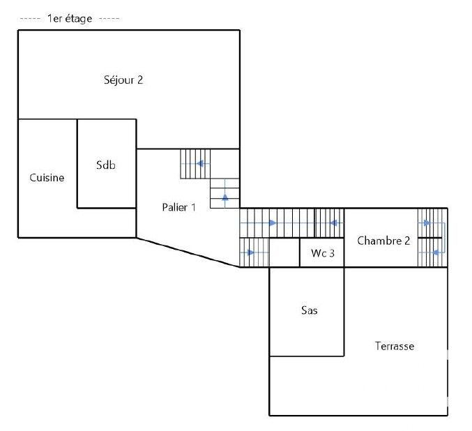
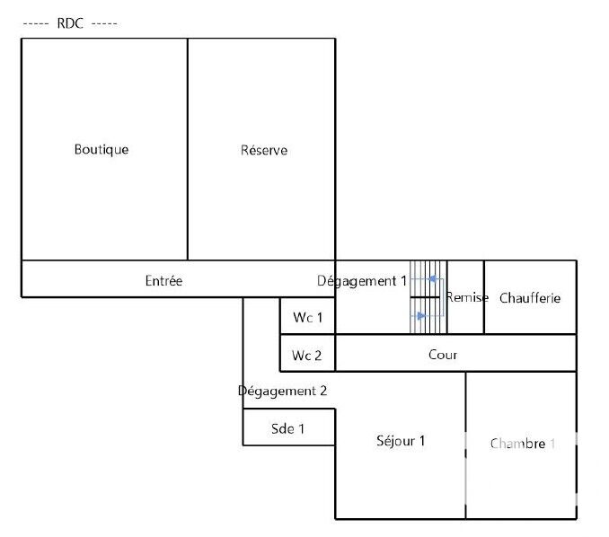
Iad France - Sevdé Kucuk vous propose : En exclusivité – Idéal investisseur ou résidence principale ! Situé au cOEur de Pithiviers, cette maison de ville de 200 m² offre un excellent potentiel locatif tout en proposant un vaste espace de vie pour le propriétaire. Il permet un usage mixte : habitation et activité professionnelle ou bureau. * Composition * - Rez-de-chaussée : local comprenant deux pièces accessibles depuis la rue et le couloir commun, avec toilettes indépendantes (possibilité d’usage professionnel ou bureau personnel). - T1 indépendant au rez-de-chaussée : entrée, salon / séjour avec cuisine aménagée, salle de douche, chambre et toilettes séparées. - Premier étage – Grand duplex : trois chambres (dont une avec placard intégré), bureau avec mezzanine, salon / séjour lumineux, cuisine aménagée et équipée, deux salles d’eau (dont une avec jacuzzi et douche), toilettes séparées, pièce supplémentaire pouvant servir de bureau ou d’espace de jeux, buanderie et terrasse. * Annexes et extérieurs * - Cave - Chaufferie à l’arrière de la maison - Parking libre à proximité * Atouts * - Double vitrage et volets roulants électriques - Fibre optique connectée - Emplacement privilégié : centre-ville, à proximité immédiate des commerces, écoles et mairie. - L'installation intérieure d'électricité ne comporte aucune anomalie - Aucune anomalie gaz - Assainissement conforme - Diagnostic D. Usage mixte possible, idéal pour combiner activité professionnelle et vie familiale. Pour plus d’informations ou organiser une visite, contactez dès maintenant : M. & Mme Kuçuk – Conseillers et Managers en immobilier. Accompagnement personnalisé et avis de valeur offert ! Honoraires d'agence à la charge du vendeur. Information d'affichage énergétique sur ce bien : classe ENERGIE D indice 245 et classe CLIMAT D indice 46. Les informations sur les risques auxquels ce bien est exposé, y compris l'obligation légale de débroussaillement, sont disponibles sur le site Géorisques : http://www.georisques.gouv.fr. La présente annonce immobilière a été rédigée sous la responsabilité éditoriale de Mme Sevdé Kucuk mandataire indépendant en immobilier (sans détention de fonds), agent commercial de la SAS I@D France immatriculé au RSAC de ORLEANS sous le numéro 894641356, titulaire de la carte de démarchage immobilier pour le compte de la société I@D France SAS.

À proximité

Recherche des commodités à proximité...

Détails de l'annonce

Localisation

Ville
Pithiviers
Pays
FR

Diagnostics / Énergie

Diagnostic DPE
245
Diagnostic GES
46

Surfaces / Pièces / Composition

Nombre d’étages
2

Chauffage et diagnostics

Diagnostic de performance énergétique (DPE)
a
b
c
d
e
f
g
Indice d'émission de gaz à effet de serre (GES)
a
b
c
d
e
f
g
Rappelez-moi