Type
Bien immobilierTarif
160 000 €Chambres
4Salles de bain
0Vente Maison de ville 5 pièces
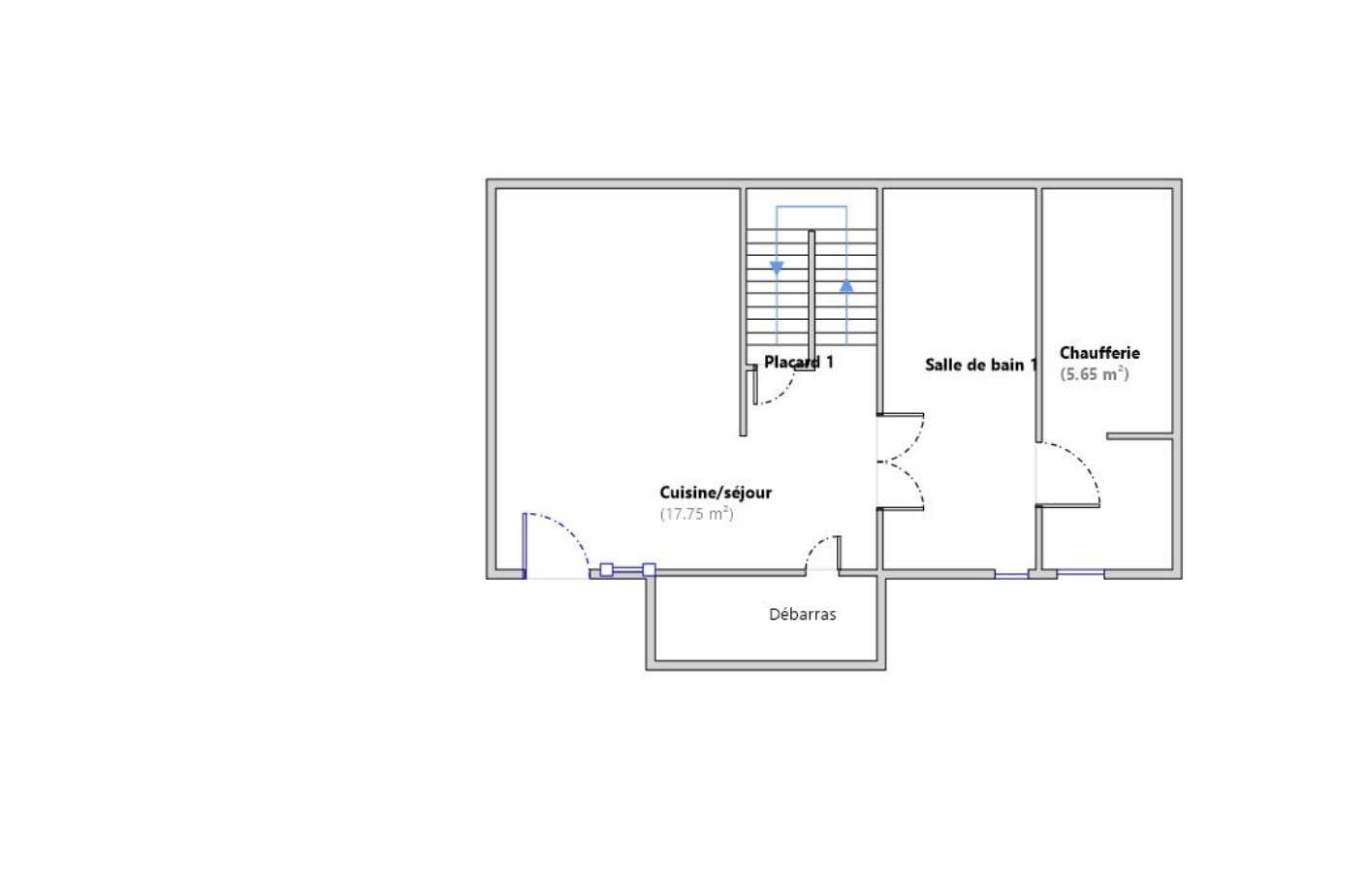
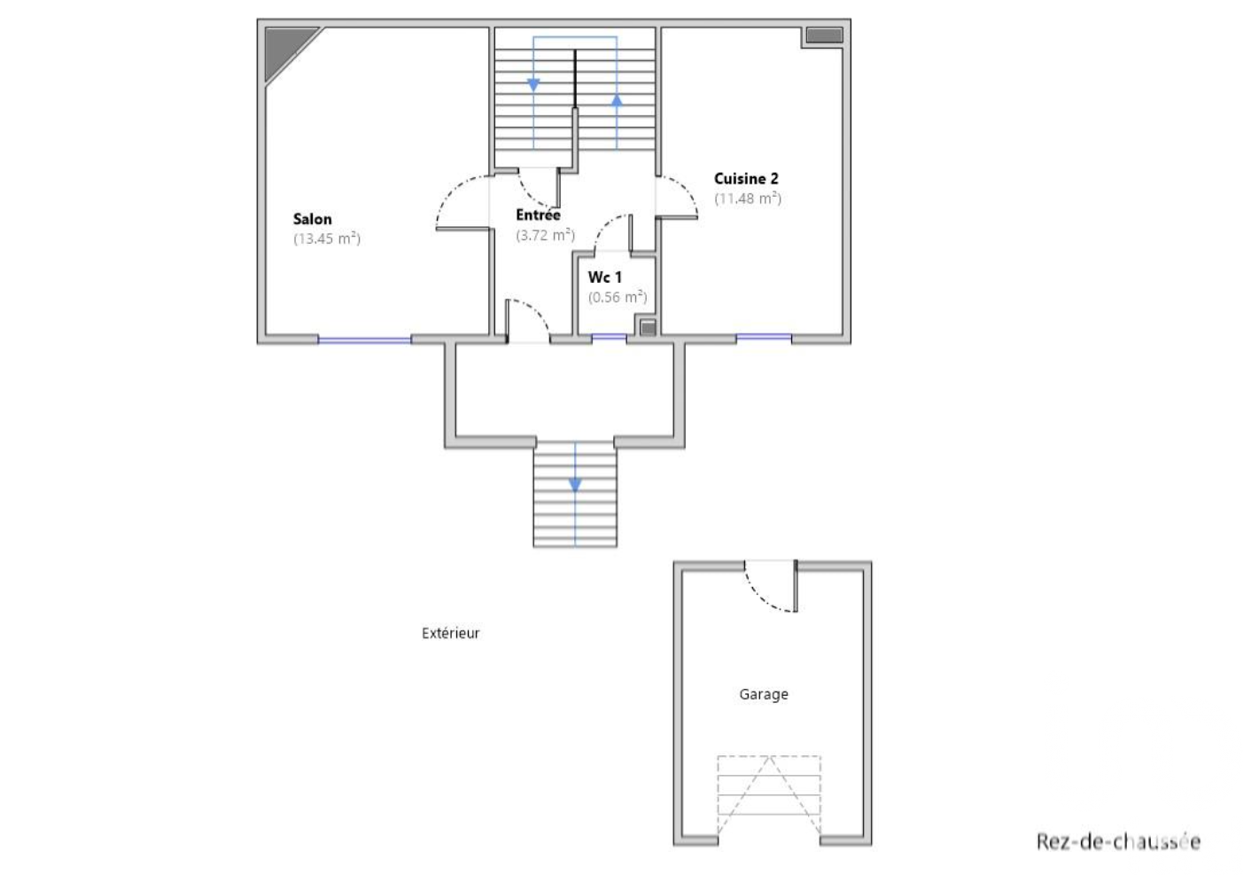
Iad France - Jean-Marie Julaud vous propose : EXCLUSIVEMENT - MAISON DE BOURG - 4 CHAMBRES - DOUBLE GARAGE - SOUS-SOL - CAVE - Découvrez cette maison en pierre de 1920. Elle se compose d'une entrée, une cuisine aménagée, une buanderie (arrière cuisine), une salle d'eau avec WC et un séjour. À l'étage deux chambres, une salle de bain et un WC indépendant. Au deuxième étage deux autres chambres et un WC avec un lave main. Le tout sur un sous-sol de la surface de la maison. - type de chauffage électrique, menuiserie double vitrage en bois et assainissement tout à l'égout. SES ATOUTS : un double garage de 48 m², la cour en enrobé, commerces à proximité. UNE VISITE S'IMPOSE ! Honoraires d'agence à la charge du vendeur. Information d'affichage énergétique sur ce bien : classe ENERGIE D indice 224 et classe CLIMAT B indice 7. Les informations sur les risques auxquels ce bien est exposé, y compris l'obligation légale de débroussaillement, sont disponibles sur le site Géorisques : http://www.georisques.gouv.fr. La présente annonce immobilière a été rédigée sous la responsabilité éditoriale de M Jean-Marie Julaud mandataire indépendant en immobilier (sans détention de fonds), agent commercial de la SAS I@D France immatriculé au RSAC de SAINT-NAZAIRE sous le numéro 905211801, titulaire de la carte de démarchage immobilier pour le compte de la société I@D France SAS.
Ce mois
Cette annonce est récente
À proximité
Recherche des commodités à proximité...
Détails de l'annonce
Localisation
Ville
Guémené-Penfao
Pays
FR
Diagnostics / Énergie
Diagnostic DPE
224
Diagnostic GES
7
Surfaces / Pièces / Composition
Nombre d’étages
4
Chauffage et diagnostics
Diagnostic de performance énergétique (DPE)
a
b
c
d
e
f
g
Indice d'émission de gaz à effet de serre (GES)
a
b
c
d
e
f
g
