Type
Bien immobilierTarif
189 000 €Chambres
0Salles de bain
0Vente Maison de ville 4 pièces
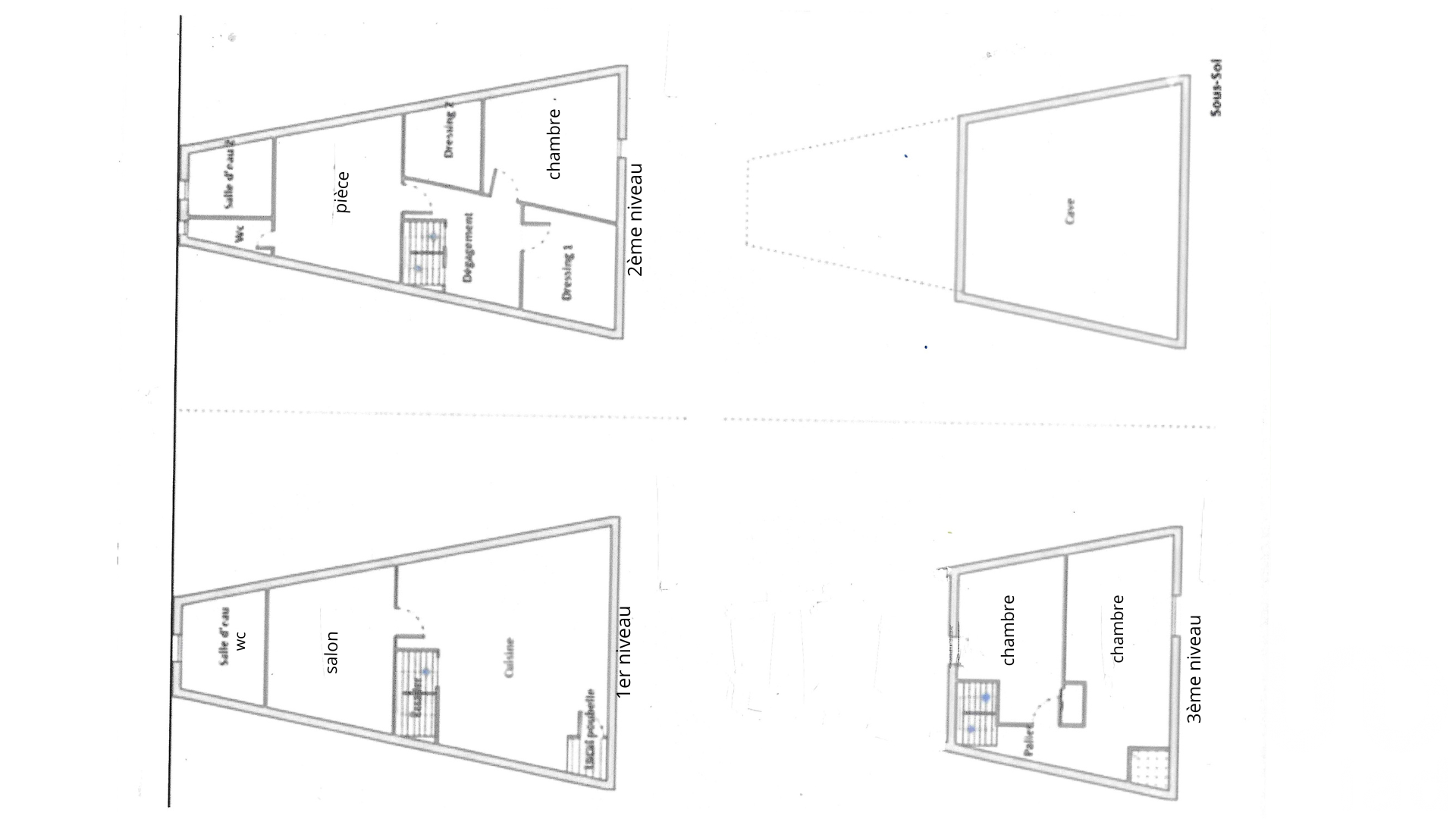
Iad France - Maud Triquard vous propose : Du cachet pour cette maison de ville atypique, avec 1 garage, située rue de Sigon Migné-Auxances On y accède par une charmante courette et quelques marches. Elle se compose comme suit : Cuisine et salle à manger de 27 m², un petit salon et une salle d'eau à finir, un toilette. Possibilité bureau, espace professionnel. Au second niveau le palier dessert un grand dressing, une chambre lumineuse avec son dressing, une pièce de 13 m² avec accès salle d'eau et un toilette. Au dernier étage, deux chambres de 10 et 12 m² avec placard. À cela s'ajoute un garage de 14 m² à l'arrière de la maison, une cave et un petit cabanon. Chauffage électrique, toiture de 2002, isolation 2007, tout à l'égout, double vitrage. Prise de rendez-vous UNIQUEMENT PAR TELEPHONE. Au plaisir de vous la faire visiter ! Honoraires d'agence à la charge du vendeur. Information d'affichage énergétique sur ce bien : classe ENERGIE D indice 247 et classe CLIMAT E indice 8. Les informations sur les risques auxquels ce bien est exposé, y compris l'obligation légale de débroussaillement, sont disponibles sur le site Géorisques : http://www.georisques.gouv.fr. La présente annonce immobilière a été rédigée sous la responsabilité éditoriale de Mme Maud Triquard mandataire indépendant en immobilier (sans détention de fonds), agent commercial de la SAS I@D France immatriculé au RSAC de POITIERS sous le numéro 750521783, titulaire de la carte de démarchage immobilier pour le compte de la société I@D France SAS.
À proximité
Recherche des commodités à proximité...
Détails de l'annonce
Localisation
Ville
Migné-Auxances
Pays
FR
Diagnostics / Énergie
Diagnostic DPE
247
Diagnostic GES
8
Surfaces / Pièces / Composition
Nombre d’étages
3
Chauffage et diagnostics
Diagnostic de performance énergétique (DPE)
a
b
c
d
e
f
g
Indice d'émission de gaz à effet de serre (GES)
a
b
c
d
e
f
g
