Type
Bien immobilierTarif
229 000 €Chambres
1Salles de bain
0Vente Appartement 2 pièces
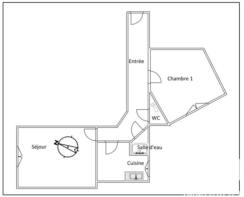
Iad France - Ouiza Saiche vous propose : * EXCLUSIVITE - ASNIERES SUR SEINE - IDEAL PRIMO ACCEDANT OU INVESTISSEUR - REFAIT A NEUF * Coup de cOEur à Asnières : 2 pièces 'Clés en main' Opportunité à saisir - Appartement 2 pièces refait à neuf avec cave. Découvrez cet appartement 38 m² situé dans une résidence sécurisée de 4 étages. Idéalement placé à proximité de toutes les commodités, il offre un cadre de vie pratique et agréable dans un quartier paisible. L’appartement se compose d’une entrée, un séjour, une cuisine fermée, une chambre donnant sur une cour, une salle d'eau et un WC indépendant. La copropriété bénéficie d’importants travaux déjà votés et payés : - Isolation extérieure de la façade arrière - Réfection de la toiture - Fenêtres double vitrage sur les parties communes - Remplacement de la porte d'entrée Une cave complète ce bien. Un appartement idéal pour une résidence principale ou un investissement locatif. N'hésitez pas à me contacter pour organiser une visite et une découverte des lieux. La presente annonce immobiliere vise 2 lots situés dans une copropriété de 27 lots au total et ne faisant l'objet d'aucune procédure en cours citée à l'article L. 721-1 du code de la construction et de l'habitation. Montant moyen mensuel de charges déclaré par le vendeur : 60€ par mois (soit 720 € annuel). Honoraires d'agence à la charge du vendeur. Information d'affichage énergétique sur ce bien : classe ENERGIE E indice 257 et classe CLIMAT E indice 56. Les informations sur les risques auxquels ce bien est exposé, y compris l'obligation légale de débroussaillement, sont disponibles sur le site Géorisques : http://www.georisques.gouv.fr. La présente annonce immobilière a été rédigée sous la responsabilité éditoriale de Mme Ouiza Saiche mandataire indépendant en immobilier (sans détention de fonds), agent commercial de la SAS I@D France immatriculé au RSAC de Pontoise sous le numéro 905278636, titulaire de la carte de démarchage immobilier pour le compte de la société I@D France SAS.
Cette semaine
Cette annonce est récente
À proximité
Recherche des commodités à proximité...
Détails de l'annonce
Localisation
Ville
Asnières-sur-Seine
Pays
FR
Diagnostics / Énergie
Diagnostic DPE
260
Diagnostic GES
56
Surfaces / Pièces / Composition
Nombre d’étages
5
Chauffage et diagnostics
Diagnostic de performance énergétique (DPE)
a
b
c
d
e
f
g
Indice d'émission de gaz à effet de serre (GES)
a
b
c
d
e
f
g
