Type
Bien immobilierTarif
307 500 €Chambres
2Salles de bain
0Vente appartement 3 pièces
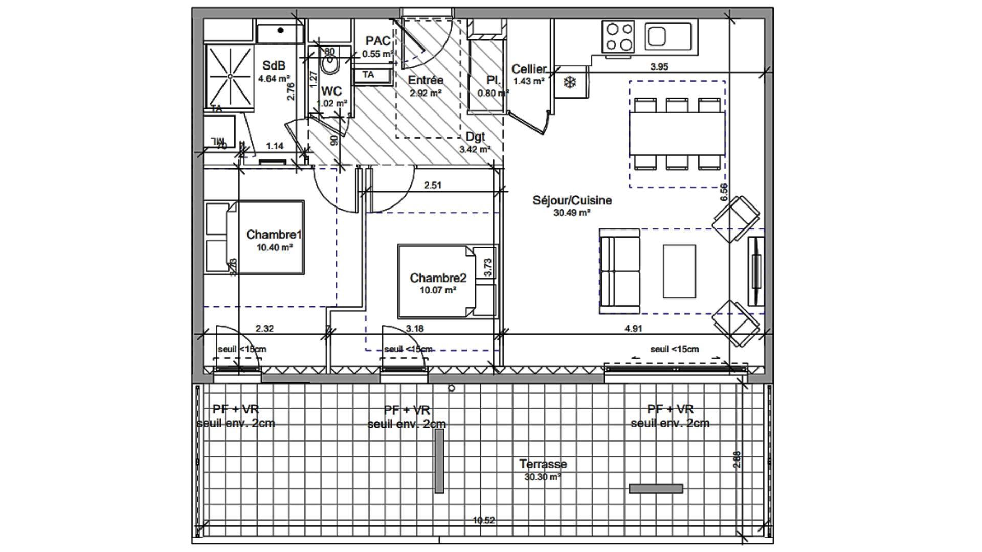
Iad France - Sarah Rozière (06 99 86 19 42) vous propose : Appartement T3 avec terrasse à Vif. Située à Vif, à seulement 20 minutes de Grenoble, la résidence Le Pré des Libellules s’inscrit dans un environnement calme et verdoyant, au pied du massif du Vercors. Entre nature préservée et proximité des commodités, cette adresse d’exception offre un cadre de vie harmonieux entre ville et montagne. Disponible 2026. Un appartement raffiné : Situé au 1 er étage, cet appartement T3 de 66 m² environ habitables se prolonge par une terrasse de 30 m² environ. - Séjour / cuisine de 30 m² environ. - Deux belles chambres. - Salle d'eau moderne et WC séparé. - Annexes incluses : 1 box et 1 parking extérieur. De belles prestations : - Pompe à chaleur réversible assurant chauffage, rafraîchissement et production d’eau chaude. - Menuiseries aluminium et volets roulants électriques. - Résidence labellisée BiodiverCity, avec jardin paysager, aires de compostage et espaces favorisant la biodiversité. - Locaux vélos sécurisés et bornes de recharge pour véhicules électriques. L’art de vivre à Vif : - À 5 minutes à pied du centre-ville et de ses commerces. - Écoles maternelles et collège accessibles à pied. - Supermarché, marché et parc public à proximité immédiate. - Bus TAG et gare TER à 20 minutes de Grenoble. - Environnement calme et verdoyant, aux portes du Parc naturel du Vercors. N’hésitez pas à me contacter pour plus d’informations ou pour un accompagnement sur mesure. Honoraires d’agence à la charge du vendeur. Bien non soumis au DPE. Les informations sur les risques auxquels ce bien est exposé sont disponibles sur le site Géorisques : www.georisques.gouv.fr. La présente annonce immobilière a été rédigée sous la responsabilité éditoriale de Mlle Sarah Rozière EI (ID 83696), mandataire indépendant en immobilier (sans détention de fonds), agent commercial de la SAS I@D France immatriculé au RSAC de Clermont-Ferrand sous le numéro 978616993, titulaire de la carte de démarchage immobilier pour le compte de la société I@D France SAS. Retrouvez tous nos biens sur notre site internet. www.iadfrance.fr.
À proximité
Recherche des commodités à proximité...
Détails de l'annonce
Localisation
Ville
Vif
Pays
FR
Surfaces / Pièces / Composition
Nombre d’étages
3
Chauffage et diagnostics
Diagnostic de performance énergétique (DPE)
a
b
c
d
e
f
g
Indice d'émission de gaz à effet de serre (GES)
a
b
c
d
e
f
g
