Type
Bien immobilierTarif
335 000 €Chambres
3Salles de bain
0Vente Maison/villa 4 pièces
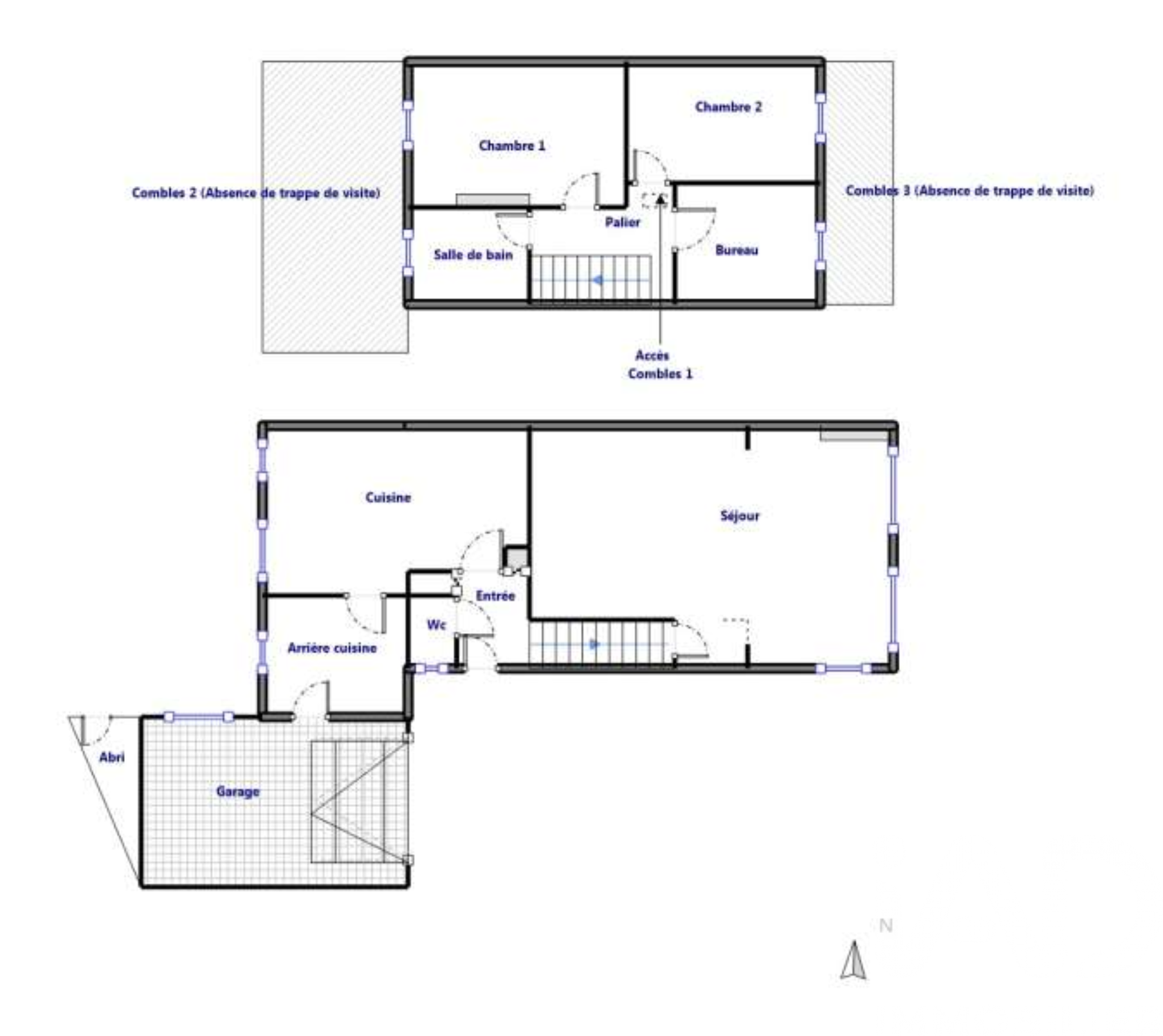
Iad France - Anne-Gaelle Andrieu vous propose : Maison familiale – Gradignan, Lange Solide, lumineuse et pleine de charme, cette maison des années 60 offre de beaux volumes et un cadre de vie paisible au cOEur d’un quartier familial. Au rez-de-chaussée, un séjour baigné de lumière ouvert sur le jardin, une grande cuisine indépendante avec cellier s'ouvrant sur une cour et garage attenant. À l’étage, trois chambres (dont une petite ou bureau) et une salle de bain familiale. Côté confort : chaudière récente, bonne isolation et un jardin sans vis-à-vis bien exposé. Une maison saine et bien entretenue, idéale pour une famille souhaitant s’installer à Gradignan. Toutes les commodités à moins de 10 minutes à pied (crèche, école, collège, bus et commerces). Une visite s’impose ! Honoraires d'agence à la charge du vendeur. Information d'affichage énergétique sur ce bien : classe ENERGIE D indice 203 et classe CLIMAT D indice 40. Les informations sur les risques auxquels ce bien est exposé, y compris l'obligation légale de débroussaillement, sont disponibles sur le site Géorisques : http://www.georisques.gouv.fr. La présente annonce immobilière a été rédigée sous la responsabilité éditoriale de Mme Anne-Gaelle Andrieu mandataire indépendant en immobilier (sans détention de fonds), agent commercial de la SAS I@D France immatriculé au RSAC de Bordeaux sous le numéro 483429957, titulaire de la carte de démarchage immobilier pour le compte de la société I@D France SAS.
Ce mois
Cette annonce est récente
À proximité
Recherche des commodités à proximité...
Détails de l'annonce
Localisation
Ville
Gradignan
Pays
FR
Diagnostics / Énergie
Diagnostic DPE
203
Diagnostic GES
40
Chauffage et diagnostics
Diagnostic de performance énergétique (DPE)
a
b
c
d
e
f
g
Indice d'émission de gaz à effet de serre (GES)
a
b
c
d
e
f
g
