Type
Bien immobilierTarif
245 000 €Chambres
3Salles de bain
0Vente Maison/villa 4 pièces
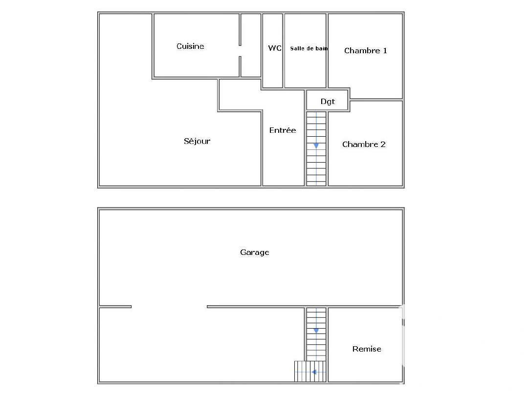
Iad France - Chloé Quincé vous propose : Maison familiale lumineuse, 3 chambres possibles, sous-sol complet. Dans un quartier calme et recherché de Libourne, cette maison offre un cadre de vie serein, lumineux et évolutif, idéal pour une famille ou un couple en quête d’espace. D’une surface habitable d’environ 90 m², elle bénéficie surtout d’un sous-sol total de même superficie, véritable atout au quotidien. Le niveau principal se compose : - d’un séjour traversant, baigné de lumière, exposé Ouest, avec cheminée à insert - d’une cuisine indépendante, facilement repensable pour plus de convivialité - de deux chambres avec rangements Une troisième chambre peut être créée sans difficulté, selon vos besoins (voir 3eme photo) En complément, le sous-sol complet permet d’organiser : - un vaste espace de stockage, - un atelier, - un garage, - ou tout simplement une maison parfaitement ordonnée (ce qui change la vie ! ) À l’extérieur, vous profitez d’un jardin agréable faisant le tour de la maison, entièrement clôturé, facile à entretenir et propice aux moments en famille. ✅ Toiture récemment refaite ✅ Quartier résidentiel apprécié pour son calme ✅ Maison lumineuse et évolutive Un bien sain, fonctionnel et plein de potentiel, à découvrir sur place pour en apprécier toutes les possibilités. Vidéo de présentation en lien. INTER-CABINET : vous êtes agent ou conseiller (e) immobilier et vous avez un acquéreur potentiellement intéressé par ce bien ? Contactez moi afin que l'on organise une visite. Honoraires d'agence à la charge du vendeur. Information d'affichage énergétique sur ce bien : classe ENERGIE E indice 328 et classe CLIMAT E indice 53. Les informations sur les risques auxquels ce bien est exposé, y compris l'obligation légale de débroussaillement, sont disponibles sur le site Géorisques : http://www.georisques.gouv.fr. La présente annonce immobilière a été rédigée sous la responsabilité éditoriale de Mme Chloé Quincé mandataire indépendant en immobilier (sans détention de fonds), agent commercial de la SAS I@D France immatriculé au RSAC de LIBOURNE sous le numéro 947936019, titulaire de la carte de démarchage immobilier pour le compte de la société I@D France SAS.
À proximité
Recherche des commodités à proximité...
Détails de l'annonce
Localisation
Ville
Libourne
Pays
FR
Diagnostics / Énergie
Diagnostic DPE
328
Diagnostic GES
53
Chauffage et diagnostics
Diagnostic de performance énergétique (DPE)
a
b
c
d
e
f
g
Indice d'émission de gaz à effet de serre (GES)
a
b
c
d
e
f
g
