Type
Bien immobilierTarif
139 500 €Chambres
1Salles de bain
0Vente Appartement 2 pièces
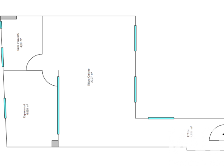
Iad France - Audrey Pernet vous propose : TOULON-PLACE DARMES Appartement Cosy 2 Pièces -Entièrement Rénové Charmant appartement situé en plein cOEur de Toulon, à quelques pas des commerces, des transports en commun, des commodités et de l'Arsenal Idéalement niché au 3ème étage d'un bâtiment historique datant de 1949, cet appartement rénové avec goût offre un espace de vie confortable et fonctionnel pour les citadins en quête de tranquillité. Dès l'entrée, vous serez séduit par l'agencement astucieux de cet appartement. La pièce de vie principale comprend une cuisine ouverte équipée et un espace salon modulable, offrant une atmosphère conviviale. Une chambre lumineuse et d'une salle d'eau L'appartement, d'une surface de 37 m², jouit d'une exposition plein sud, offrant une belle luminosité naturelle tout au long de la journée. Cet appartement est un véritable bijou au cOEur de Toulon, parfait pour un premier achat, un investissement locatif ou un pied-à-terre dans la région. Ne tardez plus à visiter ce cocon urbain où il fait bon vivre. Ouverte à l'inter-agence La presente annonce immobiliere vise 2 lots situés dans une copropriété de 15 lots au total et ne faisant l'objet d'aucune procédure en cours citée à l'article L. 721-1 du code de la construction et de l'habitation. Montant moyen mensuel de charges déclaré par le vendeur : 60€ par mois (soit 720 € annuel). Honoraires d'agence à la charge du vendeur. Information d'affichage énergétique sur ce bien : classe ENERGIE C indice 175 et classe CLIMAT A indice 5. Les informations sur les risques auxquels ce bien est exposé, y compris l'obligation légale de débroussaillement, sont disponibles sur le site Géorisques : http://www.georisques.gouv.fr. La présente annonce immobilière a été rédigée sous la responsabilité éditoriale de Mme Audrey Pernet mandataire indépendant en immobilier (sans détention de fonds), agent commercial de la SAS I@D France immatriculé au RSAC de TOULON sous le numéro 919415034, titulaire de la carte de démarchage immobilier pour le compte de la société I@D France SAS.
Ce mois
Cette annonce est récente
À proximité
Recherche des commodités à proximité...
Détails de l'annonce
Localisation
Ville
Toulon
Pays
FR
Diagnostics / Énergie
Diagnostic DPE
175
Diagnostic GES
5
Surfaces / Pièces / Composition
Nombre d’étages
5
Étage
3
Chauffage et diagnostics
Diagnostic de performance énergétique (DPE)
a
b
c
d
e
f
g
Indice d'émission de gaz à effet de serre (GES)
a
b
c
d
e
f
g
