Type
Bien immobilierTarif
329 000 €Chambres
2Salles de bain
0Vente Maison/villa 3 pièces
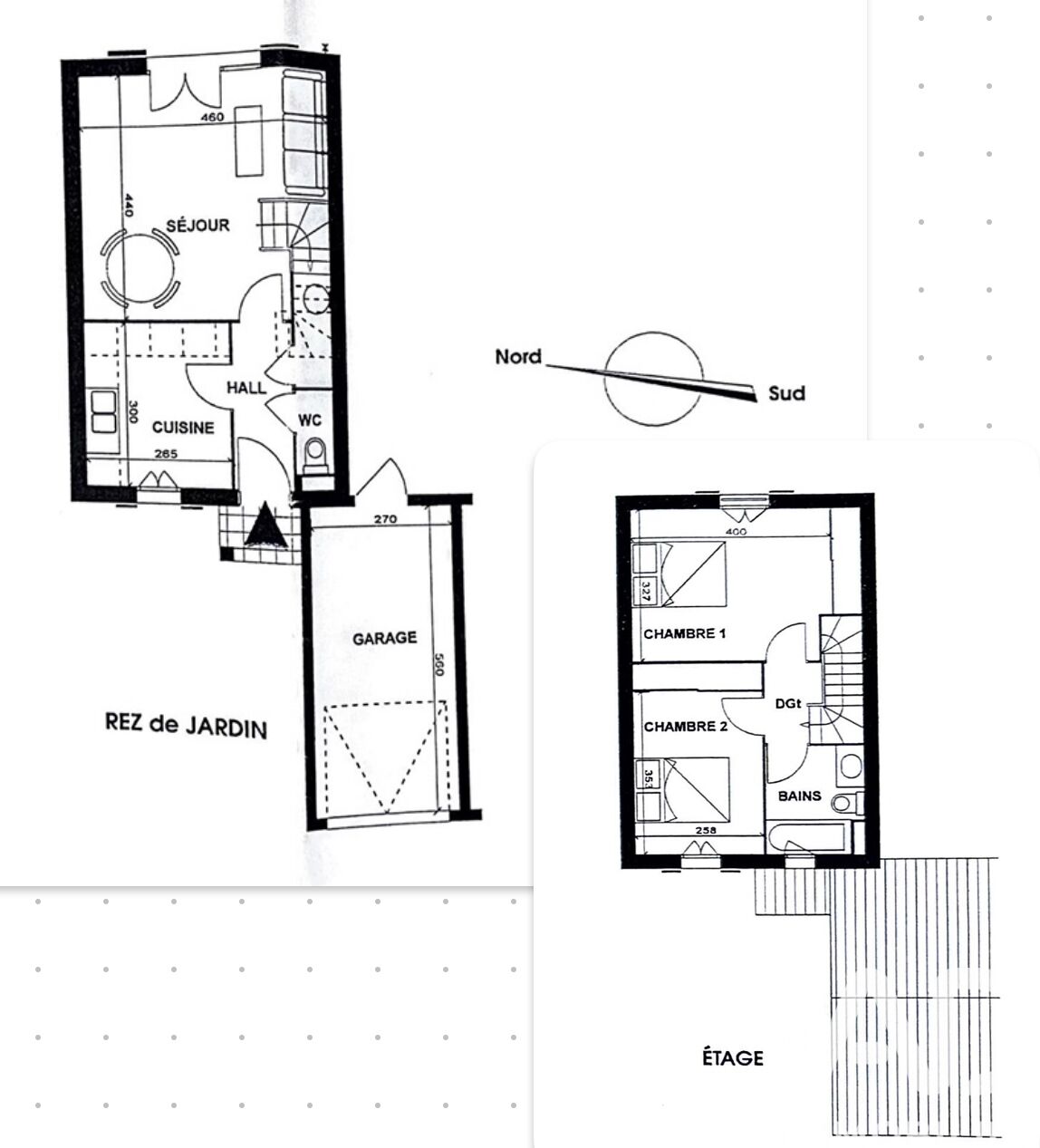
Iad France - Valérie Martinet vous propose : EXCLUSIVITÉ FREJUS ST LAMBERT - MAISON 63 m², JARDIN, GARAGE - Dans une petite copropriété sécurisée et calme, maison de 63 m² édifiée sur un terrain de 165 m². Cette maison se compose d'un rez de jardin comprenant : une entrée, un salon avec rangements ouvrant sur le jardin, une grande cuisine ouverte, WC. À l'étage se trouvent : 2 chambres de 10 et 14 m² avec placards, 1 salle de bains avec WC. Le garage mitoyen a été divisé en 2 : salle de jeux et buanderie. Stationnement privatif devant la maison. Le jardin d'env 60 m² orienté à l'Est et sans vis-à-vis bénéficie d'un bel ensoleillement. Belles prestations : volet électrique séjour, volets battants récents, chauffe-eau neuf, climatisation dans chaque pièce, double vitrage, ventilateur au plafond. Les + : les panneaux photovoltaïques apportent 1000€ / an, localisation idéale : centre hospitalier à proximité immédiate, collège et lycée à 500m, commerces à 800m. À visiter sans tarder ! La presente annonce immobiliere vise 1 lot situé dans une copropriété de 30 lots au total et ne faisant l'objet d'aucune procédure en cours citée à l'article L. 721-1 du code de la construction et de l'habitation. Montant moyen mensuel de charges déclaré par le vendeur : 20€ par mois (soit 240 € annuel). Honoraires d'agence à la charge du vendeur. Information d'affichage énergétique sur ce bien : classe ENERGIE B indice 105 et classe CLIMAT A indice 4. Les informations sur les risques auxquels ce bien est exposé, y compris l'obligation légale de débroussaillement, sont disponibles sur le site Géorisques : http://www.georisques.gouv.fr. La présente annonce immobilière a été rédigée sous la responsabilité éditoriale de Mme Valérie Martinet mandataire indépendant en immobilier (sans détention de fonds), agent commercial de la SAS I@D France immatriculé au RSAC de Fréjus sous le numéro 831661731, titulaire de la carte de démarchage immobilier pour le compte de la société I@D France SAS.
À proximité
Recherche des commodités à proximité...
Détails de l'annonce
Localisation
Ville
Fréjus
Pays
FR
Diagnostics / Énergie
Diagnostic DPE
105
Diagnostic GES
4
Surfaces / Pièces / Composition
Nombre d’étages
2
Chauffage et diagnostics
Diagnostic de performance énergétique (DPE)
a
b
c
d
e
f
g
Indice d'émission de gaz à effet de serre (GES)
a
b
c
d
e
f
g
