Type
Bien immobilierTarif
154 000 €Chambres
3Salles de bain
0Vente Maison/villa 6 pièces
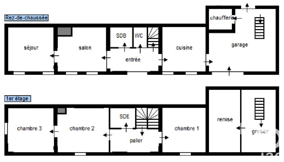
Iad France - Ludivine Jupille vous propose : Charmante longère à découvrir – 126 m² habitables avec grange attenante de 50 m² – Terrain arboré de 6 870 m² Située au cOEur d’un écrin de verdure, cette belle longère de 126 m² vous séduira par son authenticité et son potentiel. Elle est implantée sur un vaste terrain clôturé, arboré et soigneusement entretenu, qui entoure harmonieusement la maison. Rez-de-chaussée : - Salon chaleureux avec cheminée, prolongé par un séjour convivial - Grande cuisine dînatoire équipée avec poêle à bois, idéale pour les repas en famille - Salle de bains et toilettes indépendants Étage : - Trois belles chambres, dont deux en enfilade - Salle d’eau avec toilettes. - Palier avec nombreux placards intégrés pour un rangement optimisé Grange attenante : - Accès direct depuis la cuisine - Stationnement pour un véhicule - Chaufferie avec chaudière au fioul et cuve - Mezzanine avec espace de stockage et pièce aveugle, idéale pour un bureau ou débarras Caractéristiques techniques : - Menuiseries en bois double vitrage avec volets bois, - Chauffage au fioul et poêle à bois et cheminée. Demeure de caractère offrant un très beau cadre de vie. Une visite s’impose pour apprécier pleinement son authenticité et ses nombreuses possibilités ! Honoraires d'agence à la charge du vendeur. Information d'affichage énergétique sur ce bien : classe ENERGIE F indice 360 et classe CLIMAT F indice 81. Les informations sur les risques auxquels ce bien est exposé, y compris l'obligation légale de débroussaillement, sont disponibles sur le site Géorisques : http://www.georisques.gouv.fr. La présente annonce immobilière a été rédigée sous la responsabilité éditoriale de Mme Ludivine Jupille mandataire indépendant en immobilier (sans détention de fonds), agent commercial de la SAS I@D France immatriculé au RSAC de SENS sous le numéro 921180139, titulaire de la carte de démarchage immobilier pour le compte de la société I@D France SAS.
À proximité
Recherche des commodités à proximité...
Détails de l'annonce
Localisation
Ville
Arces-Dilo
Pays
FR
Diagnostics / Énergie
Diagnostic DPE
360
Diagnostic GES
81
Chauffage et diagnostics
Diagnostic de performance énergétique (DPE)
a
b
c
d
e
f
g
Indice d'émission de gaz à effet de serre (GES)
a
b
c
d
e
f
g
