Type
Bien immobilierTarif
185 000 €Chambres
1Salles de bain
0Vente Appartement 2 pièces
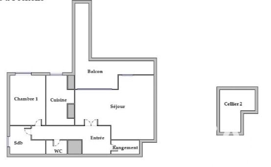
Iad France - Danielle Michel vous propose : Danielle MICHEL iad France vous propose : Cet appartement, au 13ème étage et situé Résidence du Parc en limite de L'Haÿ-les-Roses et Bourg-La-Reine, est un 2 pièces de 49 m² à Cachan (94230), un double-box et un cellier. Il est composé d'une entrée, double séjour / salle à manger avec un grand balcon / loggia sans vis-à-vis et avec une vue dégagée, cuisine séparée (possibilité d’ouverture), une chambre, salle de bain, WC et dressing indépendants. Un cellier sur le palier et un double-box viennent compléter ce bien. Les plus plus : Le ravalement et l'isolation de l'immeuble sont récents. TRAVAUX DE REMISE A VOTRE GOUT A PRÉVOIR - Copropriété calme, clôturée et sécurisée (digicode et interphone) avec ascenseur et gardien, une double box, local à vélos, parc privé. Idéalement situé : Ligne 15 prévue très prochainement, RER B, Bus au pied de l'immeuble (184,187), IUT de Cachan et équipements sportifs, commerces de proximité et écoles à 5min à pied. PS : JE TRAVAILLE AVEC PLAISIR EN PARTAGE AVEC TOUTES LES AGENCES LOCALES & MANDATAIRES. Vous avez des clients ? Appelez-moi ! La presente annonce immobiliere vise 4 lots situés dans une copropriété de 689 lots au total et ne faisant l'objet d'aucune procédure en cours citée à l'article L. 721-1 du code de la construction et de l'habitation. Montant moyen mensuel de charges déclaré par le vendeur : 245.33€ par mois (soit 2944 € annuel). Honoraires d'agence à la charge du vendeur. Information d'affichage énergétique sur ce bien : classe ENERGIE D indice 195 et classe CLIMAT D indice 4242. Les informations sur les risques auxquels ce bien est exposé, y compris l'obligation légale de débroussaillement, sont disponibles sur le site Géorisques : http://www.georisques.gouv.fr. La présente annonce immobilière a été rédigée sous la responsabilité éditoriale de Mme Danielle Michel mandataire indépendant en immobilier (sans détention de fonds), agent commercial de la SAS I@D France immatriculé au RSAC de MEAUX sous le numéro 849236377, titulaire de la carte de démarchage immobilier pour le compte de la société I@D France SAS.
Cette semaine
Cette annonce est récente
À proximité
Recherche des commodités à proximité...
Détails de l'annonce
Localisation
Ville
Cachan
Pays
FR
Diagnostics / Énergie
Diagnostic DPE
195
Diagnostic GES
4242
Surfaces / Pièces / Composition
Nombre d’étages
15
Étage
13
Chauffage et diagnostics
Diagnostic de performance énergétique (DPE)
a
b
c
d
e
f
g
Indice d'émission de gaz à effet de serre (GES)
a
b
c
d
e
f
g
