Trouver...

Language: FR

Devise: EUR

Vente Appartement 3 pièces

Publié le 19 November 2025
Type
Bien immobilier
Tarif
214 000 €
Chambres
2
Salles de bain
0

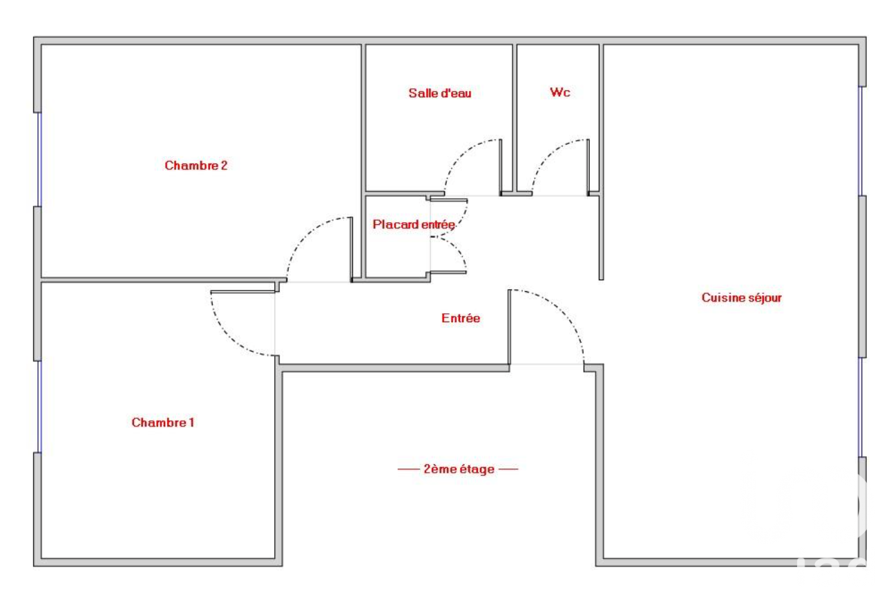
Vente Appartement 3 pièces

Iad France - Audrey Cortabitarte vous propose : Appartement en hyper centre de TOURS, idéal pour une vie citadine ! Situé au 2ème étage, ce T3 traversant se compose d'une spacieuse entrée avec placard, d'un séjour avec cuisine ouverte aménagée de plus 25 m² ! Vous trouverez ensuite un wc séparé, une salle d'eau avec une arrivée d'eau pour la machine à laver. Pour l'espace nuit, vous découvrirez 2 chambres lumineuses au calme avec volets roulants électriques. Une cave et un droit au stationnement complètent le bien. La presente annonce immobiliere vise 2 lots situés dans une copropriété de 12 lots au total et ne faisant l'objet d'aucune procédure en cours citée à l'article L. 721-1 du code de la construction et de l'habitation. Montant moyen mensuel de charges déclaré par le vendeur : 166.67€ par mois (soit 2000 € annuel). Honoraires d'agence à la charge du vendeur. Information d'affichage énergétique sur ce bien : classe ENERGIE C indice 161 et classe CLIMAT B indice 8. Les informations sur les risques auxquels ce bien est exposé, y compris l'obligation légale de débroussaillement, sont disponibles sur le site Géorisques : http://www.georisques.gouv.fr. La présente annonce immobilière a été rédigée sous la responsabilité éditoriale de Mme Audrey Cortabitarte mandataire indépendant en immobilier (sans détention de fonds), agent commercial de la SAS I@D France immatriculé au RSAC de TOURS sous le numéro 841367550, titulaire de la carte de démarchage immobilier pour le compte de la société I@D France SAS.

À proximité

Recherche des commodités à proximité...

Détails de l'annonce

Localisation

Ville
Tours
Pays
FR

Diagnostics / Énergie

Diagnostic DPE
161
Diagnostic GES
8

Surfaces / Pièces / Composition

Nombre d’étages
3
Étage
2

Chauffage et diagnostics

Diagnostic de performance énergétique (DPE)
a
b
c
d
e
f
g
Indice d'émission de gaz à effet de serre (GES)
a
b
c
d
e
f
g
Rappelez-moi