Type
Bien immobilierTarif
69 000 €Chambres
1Salles de bain
0Vente Maison/villa 3 pièces
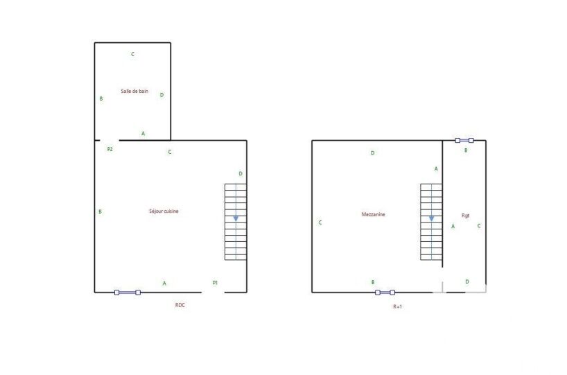
Iad France - Jonathan Lepretre vous propose : À découvrir sans tarder ! Située à Frencq, à proximité immédiate d'Étaples et des plages de la Côte d'Opale, cette maison en duplex offre un cadre de vie calme et agréable. Logement libre d'occupation. Il se compose : D'une pièce de vie lumineuse avec cuisine ouverte aménagée et équipée, d'une salle de bains avec WC au rez-de-chaussée, A l'étage, d'une chambre et d'une pièce attenante pouvant servir de dressing ou bureau. Idéal pour un premier achat ou un investissement locatif rentable. Petite copropriété bénévole, peu de charge. Petit travaux de rénovation à prévoir - Possibilité aide de l'état Excellent rapport qualité / prix. Honoraires d'agence à la charge du vendeur. Information d'affichage énergétique sur ce bien : classe ENERGIE E indice 317 et classe CLIMAT B indice 10. Les informations sur les risques auxquels ce bien est exposé, y compris l'obligation légale de débroussaillement, sont disponibles sur le site Géorisques : http://www.georisques.gouv.fr. La présente annonce immobilière a été rédigée sous la responsabilité éditoriale de M Jonathan Lepretre mandataire indépendant en immobilier (sans détention de fonds), agent commercial de la SAS I@D France immatriculé au RSAC de Boulogne sur Mer sous le numéro 903925899, titulaire de la carte de démarchage immobilier pour le compte de la société I@D France SAS.
Nouveau
Cette annonce est récente
À proximité
Recherche des commodités à proximité...
Détails de l'annonce
Localisation
Ville
Frencq
Pays
FR
Diagnostics / Énergie
Diagnostic DPE
317
Diagnostic GES
10
Surfaces / Pièces / Composition
Nombre d’étages
Chauffage et diagnostics
Diagnostic de performance énergétique (DPE)
a
b
c
d
e
f
g
Indice d'émission de gaz à effet de serre (GES)
a
b
c
d
e
f
g
