Type
Bien immobilierTarif
199 000 €Chambres
2Salles de bain
0Vente Maison de ville 3 pièces
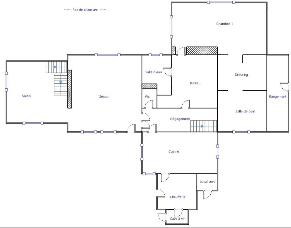
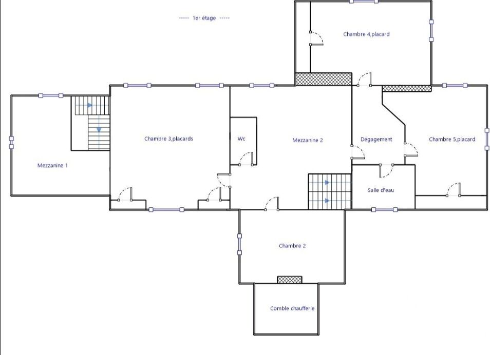
Iad France - Nicolas Portejoie vous propose : Charmante maison de ville, sans extérieur, mais avec la forêt à deux pas à Villers-sous-Saint-Leu - Idéal pour les Amoureux de l'Authenticité et les investisseurs. Si vous êtes à la recherche d'un cocon alliant caractère et intimité, cette maison est faite pour vous. Avec ses 2 chambres spacieuses, elle conviendra parfaitement aux petites familles en quête d'un espace chaleureux. Dès l'entrée, l'atmosphère cosy vous enveloppe et vous invite à découvrir les différents espaces de vie. La cuisine ouverte, d'à peine deux ans, entièrement aménagée et équipée, est un véritable atout, offrant convivialité et modernité. Un espace salle à manger baigné d'un puit de lumière naturelle, est également prévu. La maison dispose d'une salle d'eau pratique et d'un agréable salon pour se détendre. Côté pratique, une cave est présente pour répondre à vos besoins de stockage. Cette maison, bien que nécessitant des rafraichissement, est idéale pour les amateurs de maisons de caractère recherchant un premier lieu de vie authentique. Ne manquez pas cette occasion unique de devenir propriétaire d'une maison de ville à Villers-sous-Saint-Leu. Contactez moi dès maintenant pour organiser une visite et laissez-vous charmer par ce bien d'exception. Honoraires d'agence à la charge du vendeur. Information d'affichage énergétique sur ce bien : classe ENERGIE E indice 311 et classe CLIMAT E indice 54. Les informations sur les risques auxquels ce bien est exposé, y compris l'obligation légale de débroussaillement, sont disponibles sur le site Géorisques : http://www.georisques.gouv.fr. La présente annonce immobilière a été rédigée sous la responsabilité éditoriale de M Nicolas Portejoie mandataire indépendant en immobilier (sans détention de fonds), agent commercial de la SAS I@D France immatriculé au RSAC de COMPIEGNE sous le numéro 920173481, titulaire de la carte de démarchage immobilier pour le compte de la société I@D France SAS.
À proximité
Recherche des commodités à proximité...
Détails de l'annonce
Localisation
Ville
Villers-sous-Saint-Leu
Pays
FR
Diagnostics / Énergie
Diagnostic DPE
311
Diagnostic GES
54
Chauffage et diagnostics
Diagnostic de performance énergétique (DPE)
a
b
c
d
e
f
g
Indice d'émission de gaz à effet de serre (GES)
a
b
c
d
e
f
g
