Type
Bien immobilierTarif
620 000 €Chambres
3Salles de bain
0Vente Duplex 4 pièces
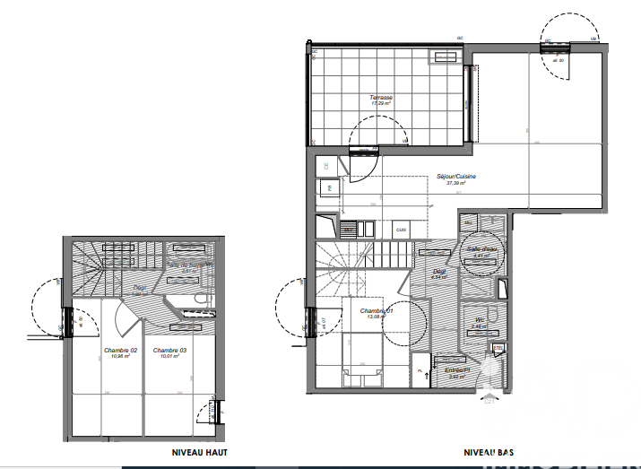
Iad France - Lila Abed vous propose : À LA VENTE un DUPLEX de standing de type 4 de 92.50 m² avec TERRASSE. 2 garages en sous sol. Livrer en Mai 2025 - SOUS DECENALE Au cOEur d'un Domaine très privée, résidence fermé et sécurisé. Situé à proximité du centre-ville, bénéficie d’un emplacement idéal privilégié dans son écrin de verdure à seulement 10 min du centre historique et du cours Mirabeau. Et d'autre part un accès direct à la randonnée à pied ou à vélo (Sentiers : Saint-Victoire, Bimont, Zola) Il se compose d'une entrée spacieuse, d'une grande pièce de vie avec baies vitrées, une cuisine est à équiper, ouverte sur le séjour, 3 chambres avec de belles expositions, dont une avec un dressing, une salle d'eau et une grande salle de bain équipées avec des matériaux de grande qualités, une buanderie, 2 wc. La résidence s’intègre en douceur dans un environnement végétal. Inspirée des codes traditionnels, l’architecture de qualité, avec ses façades aux tons ocre, ses parements de pierre et ses toits tuile à double pente, Prestations : L’exigence de la qualité et du confort : Parkings boxés en base -Vidéo-surveillance dans le sous-sol -Domotique Delta Dore volet et chauffage -Porte palière 5 points -Volets roulants électrique dans toutes les pièces (sauf volets battants) -Cloisons : 72 mm avec isolant -Pompe à chaleur assurant la climatisation, le chauffage et l’eau chaude sanitaire -Larges baies coulissantes en aluminium avec volets roulants électriques -Cloisons intérieures avec laine acoustique type Placostil -Equipées de meuble vasque élégant, d’un receveur de douche en résine extra-plat de grande dimension ou d’une baignoire -Accès sécurisé par badge, digicode et visiophone -Pilotage des volets roulants électriques Pas de taxe foncière pour le moment Faibles charges 1er PV d'assemblé pour l'année en cours / RAS Je reste disponible pour plus d'information et organiser une visite. La presente annonce immobiliere vise 3 lots situés dans une copropriété de 131 lots au total et ne faisant l'objet d'aucune procédure en cours citée à l'article L. 721-1 du code de la construction et de l'habitation. Montant moyen mensuel de charges déclaré par le vendeur : 100€ par mois (soit 1200 € annuel). Honoraires d'agence à la charge du vendeur. Bien non soumis au DPE. Les informations sur les risques auxquels ce bien est exposé, y compris l'obligation légale de débroussaillement, sont disponibles sur le site Géorisques : http://www.georisques.gouv.fr. La présente annonce immobilière a été rédigée sous la responsabilité éditoriale de Mme Lila Abed mandataire indépendant en immobilier (sans détention de fonds), agent commercial de la SAS I@D France immatriculé au RSAC de Salon de Provence sous le numéro 523464568, titulaire de la carte de démarchage immobilier pour le compte de la société I@D France SAS.
Ce mois
Cette annonce est récente
À proximité
Recherche des commodités à proximité...
Détails de l'annonce
Localisation
Ville
Aix-en-Provence
Pays
FR
Surfaces / Pièces / Composition
Nombre d’étages
2
Étage
2
Chauffage et diagnostics
Diagnostic de performance énergétique (DPE)
a
b
c
d
e
f
g
Indice d'émission de gaz à effet de serre (GES)
a
b
c
d
e
f
g
