Type
Bien immobilierTarif
479 000 €Chambres
3Salles de bain
0Vente Maison/villa 5 pièces
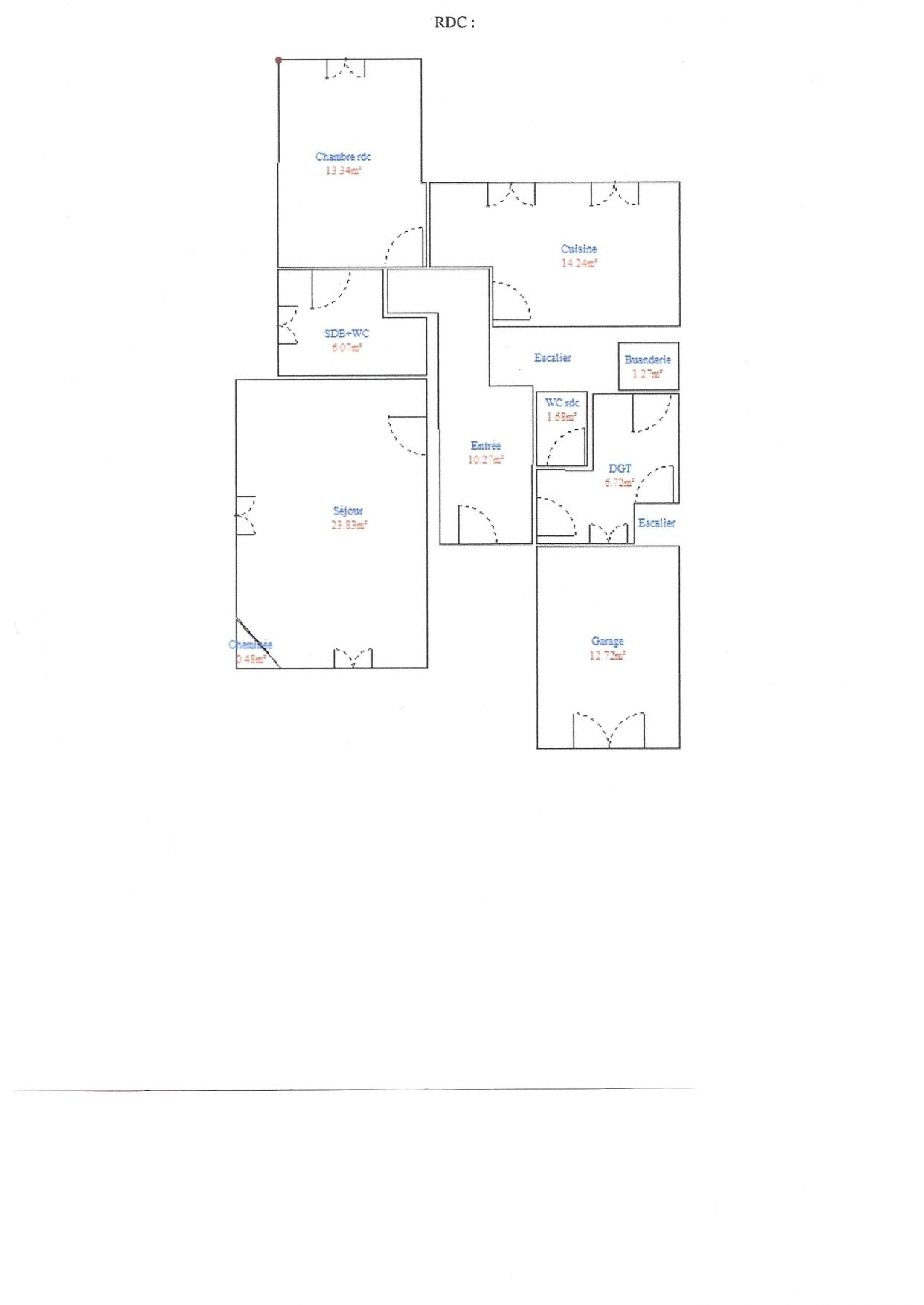
Iad France - Eric Battaglia vous propose : Maison 4 pièces avec jardin et piscine – Castelnau-le-Lez Située dans un secteur calme et recherché de Castelnau-le-Lez, cette maison de 143 m² (dont 116 m² habitables) offre un cadre de vie agréable, alliant confort et tranquillité. Construite en 1979, elle a été régulièrement entretenue et se présente en bon état général. Des travaux de réaménagement sont toutefois à prévoir pour la remettre au goût du jour. Le rez-de-chaussée se compose d’une entrée, d’un séjour lumineux, d’une cuisine séparée et aménagée ouvrant sur une terrasse d’été avec piscine, d’une chambre spacieuse, d’une salle de bains, d’un WC indépendant, ainsi que d’un garage et d’une buanderie attenante. À l’étage, deux belles chambres dont une avec grand placard, une salle de bains, un WC séparé et une pièce mansardée à aménager complètent l’ensemble. Édifiée sur une parcelle de 400 m², la propriété dispose d’un agréable jardin arboré aux essences méditerranéennes et d’une grande piscine avec local technique. L’accès au garage et l’allée privative permettent un stationnement facile et sécurisé. Les équipements tels que la climatisation réversible et les huisseries neuves dont la porte d'entrée contribuent à un confort quotidien optimal. Bénéficiant d’une exposition Est / Ouest, la maison profite d’une belle luminosité naturelle tout au long de la journée. À proximité immédiate des transports (tramway, bus, pistes cyclables), des commerces, des écoles et des espaces verts, cette maison offre un cadre de vie pratique et paisible. À noter : la présence du Bus Tram, solution de mobilité écologique et moderne propre à Castelnau-le-Lez. C'est un vrai coup de cOEur à visiter au plus vite, appelez moi sans tarder. Honoraires d'agence à la charge du vendeur. Information d'affichage énergétique sur ce bien : classe ENERGIE C indice 129 et classe CLIMAT A indice 4. Les informations sur les risques auxquels ce bien est exposé, y compris l'obligation légale de débroussaillement, sont disponibles sur le site Géorisques : http://www.georisques.gouv.fr. La présente annonce immobilière a été rédigée sous la responsabilité éditoriale de M Eric Battaglia mandataire indépendant en immobilier (sans détention de fonds), agent commercial de la SAS I@D France immatriculé au RSAC de MONTPELLIER sous le numéro 480836626, titulaire de la carte de démarchage immobilier pour le compte de la société I@D France SAS.
À proximité
Recherche des commodités à proximité...
Détails de l'annonce
Localisation
Ville
Castelnau-le-Lez
Pays
FR
Diagnostics / Énergie
Diagnostic DPE
129
Diagnostic GES
4
Surfaces / Pièces / Composition
Nombre d’étages
2
Chauffage et diagnostics
Diagnostic de performance énergétique (DPE)
a
b
c
d
e
f
g
Indice d'émission de gaz à effet de serre (GES)
a
b
c
d
e
f
g
