Vente Maison/villa 3 pièces
Type
Bien immobilierTarif
250 000 €Chambres
0Salles de bain
0Vente Maison/villa 3 pièces
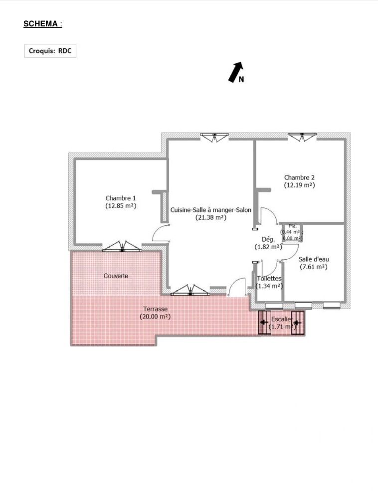
Iad France - Tonia Rotondo vous propose : Proche de la plage de sable fin à Favone à pied, petite station balnéaire familiale avec ses commerces et restaurants, ce bien de plain pied au calme dispose d'une grande terrasse avec vue mer entre Solenzara et Sainte Lucie de Porto Vecchio. Rien à faire avec aussi avec les atouts de la résidence équipée d'une belle et grande piscine, et proche de toutes commodités. Vendue meublée, cette petite villa est en parfait état avec la climatisation neuve il ne vous reste qu'à poser vos valises. Forte rentabilité locative, et sans bail. Un produit rare à ce prix ! La presente annonce immobiliere vise 1 lot situé dans une copropriété de 80 lots au total et ne faisant l'objet d'aucune procédure en cours citée à l'article L. 721-1 du code de la construction et de l'habitation. Montant moyen mensuel de charges déclaré par le vendeur : 176.67€ par mois (soit 2120 € annuel). Honoraires d'agence à la charge du vendeur. Information d'affichage énergétique sur ce bien : classe ENERGIE C indice 167 et classe CLIMAT A indice 5. Les informations sur les risques auxquels ce bien est exposé, y compris l'obligation légale de débroussaillement, sont disponibles sur le site Géorisques : http://www.georisques.gouv.fr. La présente annonce immobilière a été rédigée sous la responsabilité éditoriale de Mme Tonia Rotondo mandataire indépendant en immobilier (sans détention de fonds), agent commercial de la SAS I@D France immatriculé au RSAC de AJACCIO sous le numéro 523468452, titulaire de la carte de démarchage immobilier pour le compte de la société I@D France SAS.
Détails de l'annonce
Localisation
Ville
Sari Solenzara
Pays
FR
Diagnostics / Énergie
Diagnostic DPE
167
Diagnostic GES
5
Chauffage et diagnostics
Diagnostic de performance énergétique (DPE)
a
b
c
d
e
f
g
Indice d'émission de gaz à effet de serre (GES)
a
b
c
d
e
f
g
