Type
Bien immobilierTarif
208 000 €Chambres
3Salles de bain
0Vente Maison de campagne 4 pièces
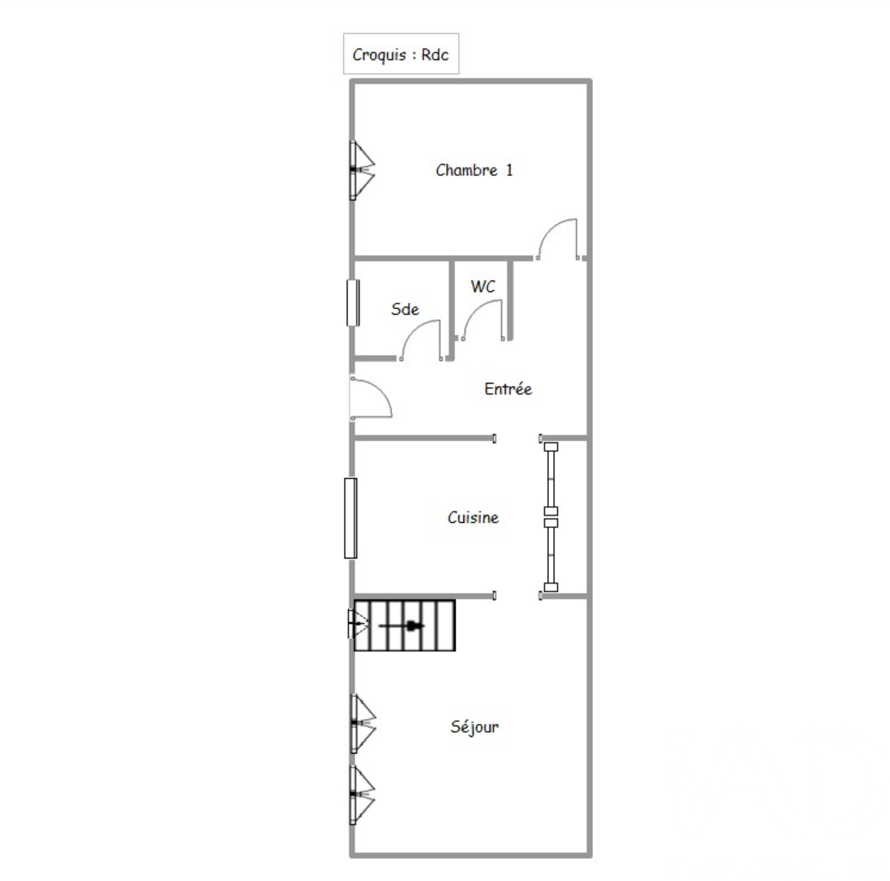
Iad France - Sophie Toulemonde vous propose : Longère pleine de charme – Fort potentiel – Dammarie (28) – 3 chambres + dépendances Découvrez cette longère située dans le village paisible de Dammarie, à seulement 12 km de Chartres, offrant un fort potentiel pour créer votre maison sur-mesure dans un cadre calme et verdoyant. Caractéristiques de la maison : Rez-de-chaussée : cuisine, pièce de vie, 1 chambre, salle d’eau, WC séparé À l’étage : 2 chambres, bureau, grenier aménageable Extérieur : 2 granges attenantes (80 m² et 16 m²) à exploiter selon vos envies Double vitrage, volets roulants électriques Aucun vis-à-vis, pour profiter pleinement de l’extérieur Points forts : Fort potentiel d’aménagement et d’agrandissement Possibilité de rénovation et valorisation de la maison Cadre de vie calme et verdoyant. Proximité de Chartres et des commodités Écoles maternelle et élémentaire dans le village, collèges et lycées accessibles en quelques minutes Commerces de proximité. Idéal pour : Familles, amoureux de charme et de volumes, projet d’aménagement personnalisé ou extension légère. À visiter sans tarder pour découvrir tout le potentiel de cette longère unique à Dammarie ! Honoraires d'agence à la charge de l'acquéreur. Prix honoraires inclus : 208000 euros. Prix hors honoraires : 200000 euros. Honoraires TTC à la charge de l'acquéreur (4,00% du prix du bien hors honoraires) : 8000 euros. Information d'affichage énergétique sur ce bien : classe ENERGIE D indice 193 et classe CLIMAT B indice 6. Les informations sur les risques auxquels ce bien est exposé, y compris l'obligation légale de débroussaillement, sont disponibles sur le site Géorisques : http://www.georisques.gouv.fr. La présente annonce immobilière a été rédigée sous la responsabilité éditoriale de Mme Sophie Toulemonde mandataire indépendant en immobilier (sans détention de fonds), agent commercial de la SAS I@D France immatriculé au RSAC de VERSAILLES sous le numéro 882574569, titulaire de la carte de démarchage immobilier pour le compte de la société I@D France SAS.
À proximité
Recherche des commodités à proximité...
Détails de l'annonce
Localisation
Ville
Thivars
Pays
FR
Diagnostics / Énergie
Diagnostic DPE
193
Diagnostic GES
6
Finances / Mandat / Références
Honoraires
8 €
Chauffage et diagnostics
Diagnostic de performance énergétique (DPE)
a
b
c
d
e
f
g
Indice d'émission de gaz à effet de serre (GES)
a
b
c
d
e
f
g
