Type
Bien immobilierTarif
340 000 €Chambres
4Salles de bain
0Vente Maison de village 6 pièces
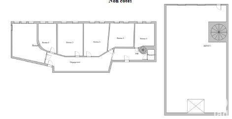
Iad France - Myriam Liccia vous propose : EXCLUSIVITÉ - Maison de village entièrement rénovée avec cour et accès véhicule. Vous recherchez une maison prête à vivre, sans travaux, avec de beaux volumes et un extérieur en centre village ? Cette maison de 143 m² réunit tous ces critères. Au cOEur du village, elle bénéficie d’une cour close d’environ 100 m² accessible en véhicule, offrant un espace extérieur modulable selon vos envies. Au rez-de-chaussée, l’espace s’organise autour d’une grande pièce de vie traversante Est-Ouest de près de 60 m², lumineuse, avec cuisine neuve équipée, une buanderie ainsi qu’un WC indépendant. À l’étage, la maison propose une suite parentale avec dressing et salle d’eau privative. Sur un demi-palier supérieur, trois belles chambres ainsi qu’une salle de bain familiale avec douche et baignoire. Un second WC indépendant apporte un confort supplémentaire. Chaque espace a été soigneusement pensé et repensé par les professionnels. L’architecte et l’entrepreneur ont travaillé main dans la main pour créer un intérieur fonctionnel. La rénovation est totale, de la toiture aux sols, en passant par l'ensemble des réseaux et des équipements : Toiture refaite Isolation complète Menuiseries neuves Électricité et plomberie intégralement refaites Sols Pompe à chaleur gainable pour un confort optimal été comme hiver Une maison prête à accueillir ses nouveaux propriétaires, idéale en résidence principale, secondaire ou pour un projet de location saisonnière haut de gamme. Venez la visiter et laissez le coup de coeur opérer. Honoraires d'agence à la charge du vendeur. Information d'affichage énergétique sur ce bien : classe ENERGIE B indice 72 et classe CLIMAT A indice 2. Les informations sur les risques auxquels ce bien est exposé, y compris l'obligation légale de débroussaillement, sont disponibles sur le site Géorisques : http://www.georisques.gouv.fr. La présente annonce immobilière a été rédigée sous la responsabilité éditoriale de Mme Myriam Liccia mandataire indépendant en immobilier (sans détention de fonds), agent commercial de la SAS I@D France immatriculé au RSAC de AVIGNON sous le numéro 422465468, titulaire de la carte de démarchage immobilier pour le compte de la société I@D France SAS.
Cette semaine
Cette annonce est récente
À proximité
Recherche des commodités à proximité...
Détails de l'annonce
Localisation
Ville
Grillon
Pays
FR
Diagnostics / Énergie
Diagnostic DPE
72
Diagnostic GES
2
Surfaces / Pièces / Composition
Nombre d’étages
2
Chauffage et diagnostics
Diagnostic de performance énergétique (DPE)
a
b
c
d
e
f
g
Indice d'émission de gaz à effet de serre (GES)
a
b
c
d
e
f
g
