Type
Bien immobilierTarif
415 000 €Chambres
5Salles de bain
0Vente Pavillon 6 pièces
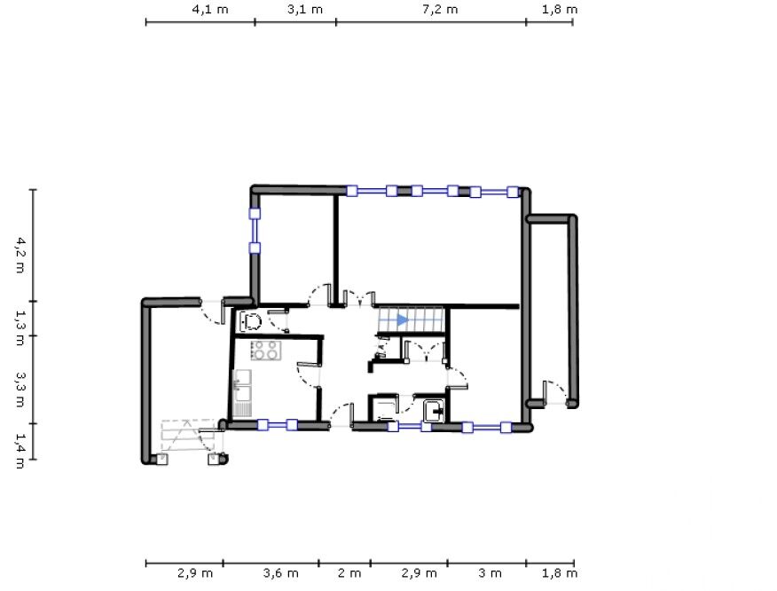
Iad France - Caroline Berthon vous propose : Au sein d'un domaine recherché (Village anglais), au calme, sur une belle parcelle arborée, maison NON MITOYENNE de 132 m² habitables, avec CINQ CHAMBRES et un GARAGE, comprenant : - Au rez de chaussée une grande entrée, une cuisine séparée, un séjour donnant sur le jardin, et un grand bureau ou une chambre (pouvant être réunis pour former un séjour de 40 m²), des toilettes, et un espace chambre et salle d'eau au rez-de-chaussée, idéal pour une chambre d'amis. - A l'étage trois chambres dont une avec un grand dressing, une salle de bain avec toilettes, et de nombreux rangements. - Un grand garage surmonté d'un grenier complète la maison, ainsi qu'un abri de jardin. Chauffage gaz, simple vitrage. Travaux de rénovation complète à prévoir, superbe potentiel, idéal pour une famille ! La presente annonce immobiliere vise 1 lot situé dans une copropriété de 831 lots au total et ne faisant l'objet d'aucune procédure en cours citée à l'article L. 721-1 du code de la construction et de l'habitation. Montant moyen mensuel de charges déclaré par le vendeur : 41.91€ par mois (soit 502.88 € annuel). Honoraires d'agence à la charge de l'acquéreur. Prix honoraires inclus : 415000 euros. Prix hors honoraires : 399000 euros. Honoraires TTC à la charge de l'acquéreur (4,01% du prix du bien hors honoraires) : 16000 euros. Information d'affichage énergétique sur ce bien : classe ENERGIE F indice 321 et classe CLIMAT F indice 71. Les informations sur les risques auxquels ce bien est exposé, y compris l'obligation légale de débroussaillement, sont disponibles sur le site Géorisques : http://www.georisques.gouv.fr. La présente annonce immobilière a été rédigée sous la responsabilité éditoriale de Mme Caroline Berthon mandataire indépendant en immobilier (sans détention de fonds), agent commercial de la SAS I@D France immatriculé au RSAC de Créteil sous le numéro 831959721, titulaire de la carte de démarchage immobilier pour le compte de la société I@D France SAS.
Ce mois
Cette annonce est récente
À proximité
Recherche des commodités à proximité...
Détails de l'annonce
Localisation
Ville
Pontault-Combault
Pays
FR
Diagnostics / Énergie
Diagnostic DPE
321
Diagnostic GES
71
Finances / Mandat / Références
Honoraires
16 €
Surfaces / Pièces / Composition
Nombre d’étages
2
Chauffage et diagnostics
Diagnostic de performance énergétique (DPE)
a
b
c
d
e
f
g
Indice d'émission de gaz à effet de serre (GES)
a
b
c
d
e
f
g
