Type
Bien immobilierTarif
280 000 €Chambres
1Salles de bain
0Vente Appartement 2 pièces
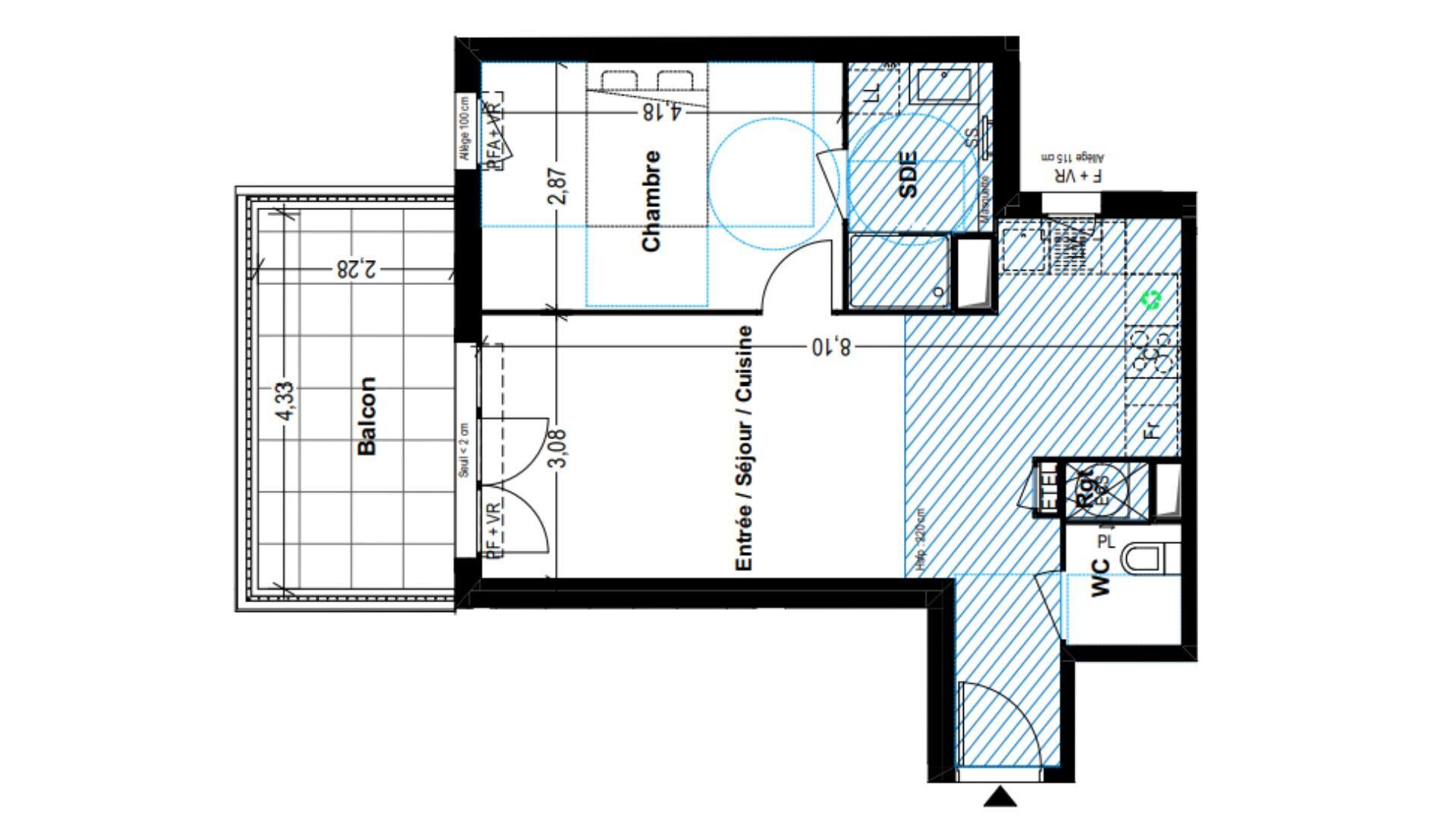
Iad France - Sarah Rozière (06 99 86 19 42) vous propose : Appartement T2 avec balcon à Cogolin. Située chemin des Trémouries, au cOEur d’un environnement résidentiel calme et verdoyant, la résidence contemporaine Terra Mare conjugue élégance provençale et confort moderne. À proximité immédiate du village, des commerces, des écoles et des commodités du Golfe de Saint-Tropez, cette adresse offre un cadre de vie paisible et privilégié. La résidence dispose également d’une magnifique piscine. Disponible 2027. Un appartement raffiné : Situé au 1 er étage, cet appartement T2 de 46 m² environ habitables se prolonge par un balcon de 10 m² environ. - Séjour / cuisine de 28 m² environ. - Une chambre confortable. - Salle d’eau moderne. - Annexes incluses : Deux parkings. De belles prestations : - Chauffage et climatisation par pompe à chaleur collective, thermostat dans chaque pièce. - Résidence entièrement sécurisée : vidéophone, accès contrôlé, parkings en sous-sol. - Piscine au sein de la résidence, accessible aux résidents. L’art de vivre à Cogolin : - À quelques minutes à pied du village et des commerces. - Entre terre et mer, au cOEur du Golfe de Saint-Tropez. - À proximité des plages, de Port-Cogolin et des axes principaux. - Environnement calme, ensoleillé et parfaitement desservi. N’hésitez pas à me contacter pour plus d’informations ou pour un accompagnement sur mesure. Honoraires d’agence à la charge du vendeur. Bien non soumis au DPE. Les informations sur les risques auxquels ce bien est exposé sont disponibles sur le site Géorisques : www.georisques.gouv.fr. La présente annonce immobilière a été rédigée sous la responsabilité éditoriale de Mlle Sarah Rozière EI (ID 83696), mandataire indépendant en immobilier (sans détention de fonds), agent commercial de la SAS I@D France immatriculé au RSAC de Clermont-Ferrand sous le numéro 978616993, titulaire de la carte de démarchage immobilier pour le compte de la société I@D France SAS. Retrouvez tous nos biens sur notre site internet. www.iadfrance.fr.
À proximité
Recherche des commodités à proximité...
Détails de l'annonce
Localisation
Ville
Cogolin
Pays
FR
Surfaces / Pièces / Composition
Nombre d’étages
2
Chauffage et diagnostics
Diagnostic de performance énergétique (DPE)
a
b
c
d
e
f
g
Indice d'émission de gaz à effet de serre (GES)
a
b
c
d
e
f
g
