Type
Bien immobilierTarif
255 000 €Chambres
3Salles de bain
0Vente Appartement 5 pièces
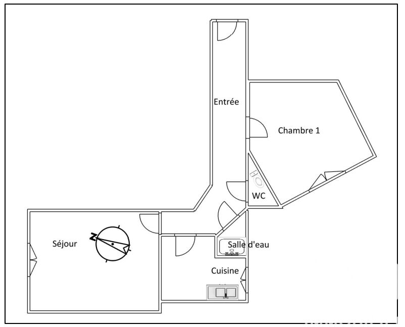
Iad France - Anne-Sophie Goullier vous propose : Coup de cOEur assuré : résidence d'Harcourt très prisée avec emplacement idéal à quelques pas de transports (gare de Maurecourt et bus), des écoles et des commerces. Venez découvrir cette charmante résidence très bien entretenue avec gardien et ascenseur. L'appartement vous propose d'un espace jour composé d'une belle entrée avec un vaste placard, une double pièce de vie ouverte sur balcon (pas de vis à vis), une grande cuisine aménagée et équipée et un WC. L'espace nuit propose 3 belles chambres, de très grands placards, et une salle de bain avec un combiné baignoire douche. Pas de travaux à prévoir. Appartement très bien entretenu. Une cave, un box et un parking réservé à la résidence complètent le bien. Charges très raisonnables malgré le grand nombre de services proposés (gardien, chauffage et eau chaude collective) La presente annonce immobiliere vise 3 lots situés dans une copropriété de 340 lots au total et ne faisant l'objet d'aucune procédure en cours citée à l'article L. 721-1 du code de la construction et de l'habitation. Montant moyen mensuel de charges déclaré par le vendeur : 300€ par mois (soit 3600 € annuel). Honoraires d'agence à la charge du vendeur. Information d'affichage énergétique sur ce bien : classe ENERGIE D indice 202 et classe CLIMAT D indice 41. Les informations sur les risques auxquels ce bien est exposé, y compris l'obligation légale de débroussaillement, sont disponibles sur le site Géorisques : http://www.georisques.gouv.fr. La présente annonce immobilière a été rédigée sous la responsabilité éditoriale de Mme Anne-Sophie Goullier mandataire indépendant en immobilier (sans détention de fonds), agent commercial de la SAS I@D France immatriculé au RSAC de versailles sous le numéro 793242132, titulaire de la carte de démarchage immobilier pour le compte de la société I@D France SAS.
À proximité
Recherche des commodités à proximité...
Détails de l'annonce
Localisation
Ville
Andrésy
Pays
FR
Diagnostics / Énergie
Diagnostic DPE
202
Diagnostic GES
41
Surfaces / Pièces / Composition
Nombre d’étages
7
Étage
3
Chauffage et diagnostics
Diagnostic de performance énergétique (DPE)
a
b
c
d
e
f
g
Indice d'émission de gaz à effet de serre (GES)
a
b
c
d
e
f
g
