Type
Bien immobilierTarif
189 000 €Chambres
2Salles de bain
0Vente Triplex 5 pièces
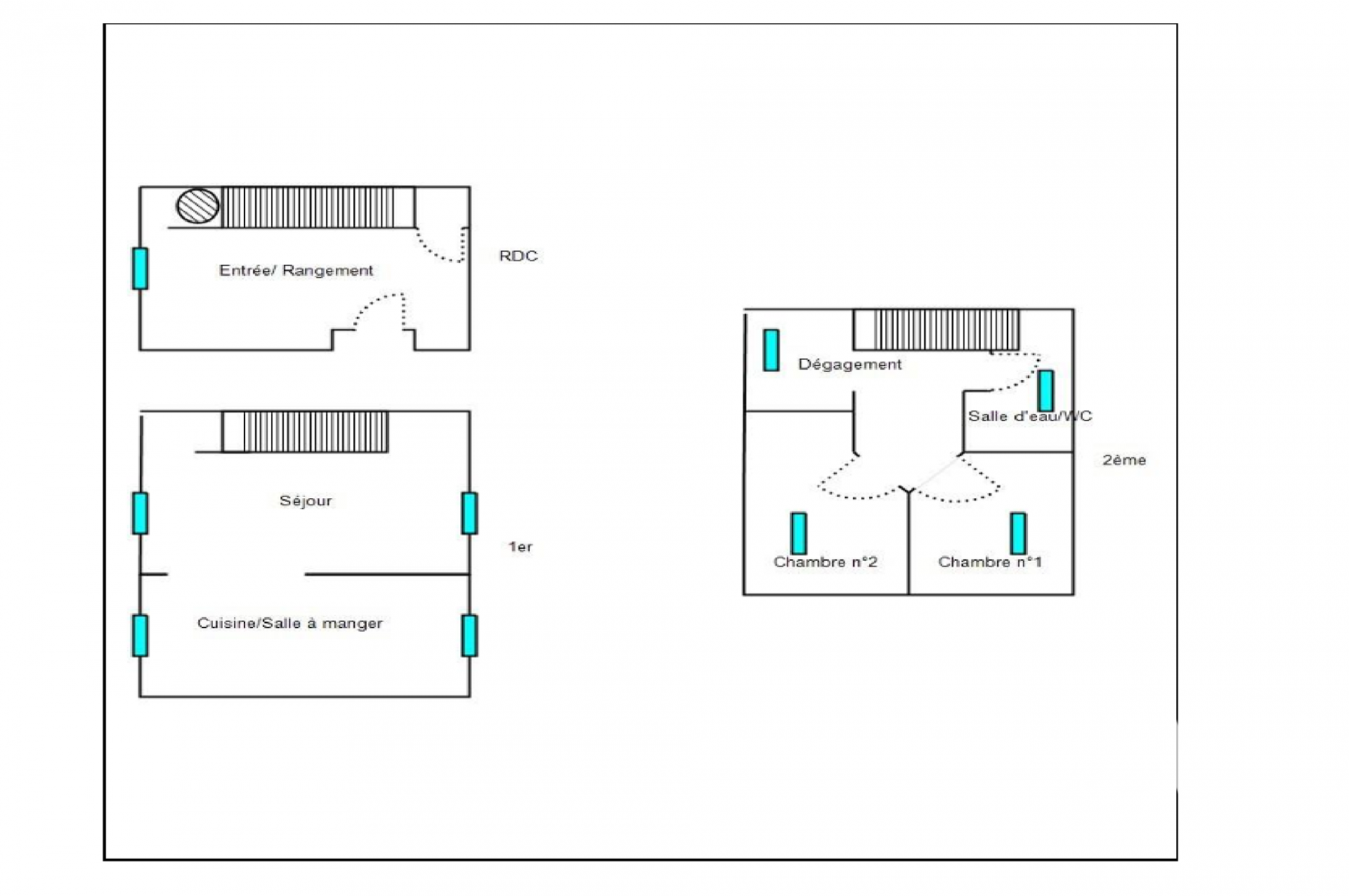
Iad France - Florian Voisin vous propose : iad France - Florian VOISIN vous propose : À Oinville-sur-Montcient, charmant village à 10 minutes de Gargenville. À vendre, appartement en triplex avec future place de parking privative, située à Oinville-sur-Montcient, au calme et proche de toutes les commodités. AGENCEMENT : Le rez-de-chaussée se compose d’une première pièce pouvant servir d’entrée, de buanderie ou d’espace de rangement. Au premier étage, vous trouverez un salon / salle à manger traversant avec une cuisine ouverte. Le deuxième étage comprend un palier qui dessert deux chambres lumineuses ainsi qu’une salle d’eau avec WC. ATOUTS : L'appartement bénéficie d’une situation privilégiée, au calme tout en restant proche des commerces, écoles et transports. Il dispose d’une future place de parking privative, de la fibre optique, de menuiseries en double vitrage bois, d’un chauffage électrique individuel et d’un ballon d’eau chaude Atlantic de 200 litres. SECTEUR : Située à Oinville-sur-Montcient, dans un environnement paisible et résidentiel, la maison reste à proximité immédiate des commerces, des écoles et des transports. Horaires de visite adaptés à votre emploi du temps. Honoraires d'agence à la charge du vendeur. Information d'affichage énergétique sur ce bien : classe ENERGIE E indice 311 et classe CLIMAT B indice 10. Les informations sur les risques auxquels ce bien est exposé, y compris l'obligation légale de débroussaillement, sont disponibles sur le site Géorisques : http://www.georisques.gouv.fr. La présente annonce immobilière a été rédigée sous la responsabilité éditoriale de M Florian Voisin mandataire indépendant en immobilier (sans détention de fonds), agent commercial de la SAS I@D France immatriculé au RSAC de versailles sous le numéro 890498223, titulaire de la carte de démarchage immobilier pour le compte de la société I@D France SAS.
À proximité
Recherche des commodités à proximité...
Détails de l'annonce
Localisation
Ville
Gargenville
Pays
FR
Diagnostics / Énergie
Diagnostic DPE
311
Diagnostic GES
10
Surfaces / Pièces / Composition
Nombre d’étages
2
Chauffage et diagnostics
Diagnostic de performance énergétique (DPE)
a
b
c
d
e
f
g
Indice d'émission de gaz à effet de serre (GES)
a
b
c
d
e
f
g
