Vente Maison/villa 3 pièces
Type
Bien immobilierTarif
154 000 €Chambres
2Salles de bain
0Vente Maison/villa 3 pièces
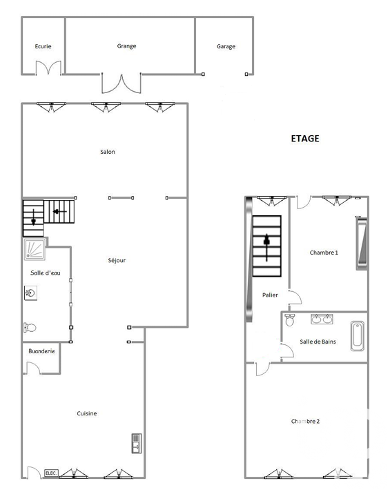
Iad France - Ludivine Jupille vous propose : Maison ancienne rénovée + DPE C + Grange indépendante – 115 m² habitables – Arces-Dilo Charmante maison mitoyenne ancienne datant de 1810, entièrement rénovée, située sur la commune d’Arces-Dilo. Elle offre 115 m² habitables sur un terrain clos de 860 m², avec une grande grange créant un beau potentiel de stockage, d'évolution d'entreprise ou même d'aménagement en habitation. Rez-de-chaussée : - Entrée sur une grande cuisine spacieuse, complétement aménagée avec îlot central, - Salle à manger avec insert à bois pouvant chauffer l’ensemble de la maison, - Salon lumineux avec vue dégagée sur le terrain, - Salle d’eau avec WC. À l’étage : - Deux belles chambres, dont une avec terrasse privative surplombant le terrain, - Salle de bain avec WC, - Accès aux combles par une trappe, offrant la possibilité de les exploiter. Extérieur : - Grande grange, avec toiture neuve, divisée en trois parties * Partie fermée avec porte et deux fenêtres en double vitrage et volet bois. * Partie avec 2 séparations en parpaings et porte condamnée donnant sur l’extérieur. * Partie ouverte en abri. - Récupérateurs d’eau de pluie. - Portail et portillon à l’arrière du terrain permettant l’accès direct à la maison. Prestations : - Toiture de la maison vérifiée, toiture de la grange neuve. - Menuiseries double vitrage et volets roulants électriques solaires sur toute l’habitation. - Chauffage bois et électrique. - Isolation réalisée. - Tout-à-l’égout. Localisation : 15 mn Migennes 15 mn Saint-Florentin 20 mn Villeneuve l'Archevêque (sortie A5) 30 mn Sens Un bien de caractère, rénové avec soin, offrant confort et charme dans un cadre paisible. Honoraires d'agence à la charge du vendeur. Information d'affichage énergétique sur ce bien : classe ENERGIE C indice 172 et classe CLIMAT A indice 5. Les informations sur les risques auxquels ce bien est exposé, y compris l'obligation légale de débroussaillement, sont disponibles sur le site Géorisques : http://www.georisques.gouv.fr. La présente annonce immobilière a été rédigée sous la responsabilité éditoriale de Mme Ludivine Jupille mandataire indépendant en immobilier (sans détention de fonds), agent commercial de la SAS I@D France immatriculé au RSAC de SENS sous le numéro 921180139, titulaire de la carte de démarchage immobilier pour le compte de la société I@D France SAS.
Détails de l'annonce
Localisation
Ville
Arces-Dilo
Pays
FR
Diagnostics / Énergie
Diagnostic DPE
172
Diagnostic GES
5
Chauffage et diagnostics
Diagnostic de performance énergétique (DPE)
a
b
c
d
e
f
g
Indice d'émission de gaz à effet de serre (GES)
a
b
c
d
e
f
g
