Type
Bien immobilierTarif
139 900 €Chambres
0Salles de bain
0Vente Appartement 2 pièces
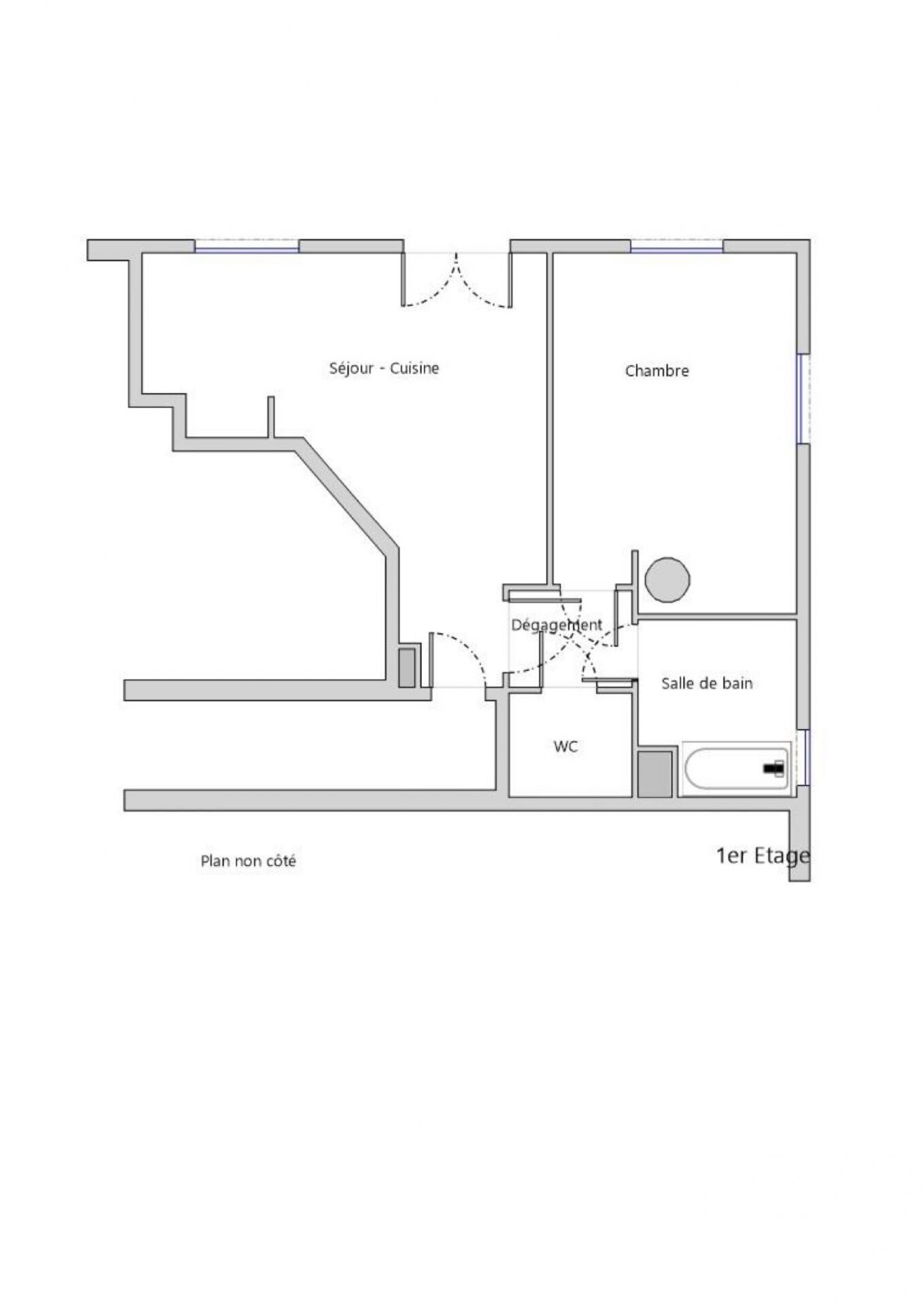
Iad France - Nathalie Santos vous propose : Au sein d’une résidence sécurisée avec ASCENSEUR, découvrez ce bel appartement 2 pièces situé au 1er étage, entièrement aux normes PMR, offrant confort, luminosité et fonctionnalité. Il propose une belle pièce de vie avec cuisine aménagée et équipée, prolongée par un agréable BALCON exposé SUD, idéal pour profiter du soleil. Côté nuit, vous bénéficierez d’une SPACIEUSE chambre de plus de 16 m² avec placard et deux grandes fenêtres, offrant un véritable confort et la possibilité d’aménager un ESPACE BUREAU pour le télétravail. Une grande salle de bain avec FENÊTRE et emplacement machine à laver, ainsi que des WC indépendants spacieux (normes PMR) complètent l’ensemble. L'appartement dispose également d'une place de STATIONNEMENT en sous-sol. Atout supplémentaire : arrêt de bus au pied de la résidence desservant directement la gare de Melun. Situé dans le quartier recherché de Dammarie-les-Lys, cet appartement est idéal pour une résidence principale ou un investissement serein. La presente annonce immobiliere vise 2 lots situés dans une copropriété de 86 lots au total et ne faisant l'objet d'aucune procédure en cours citée à l'article L. 721-1 du code de la construction et de l'habitation. Montant moyen mensuel de charges déclaré par le vendeur : 122.13€ par mois (soit 1465.56 € annuel). Honoraires d'agence à la charge du vendeur. Information d'affichage énergétique sur ce bien : classe ENERGIE D indice 185 et classe CLIMAT A indice 5. Les informations sur les risques auxquels ce bien est exposé, y compris l'obligation légale de débroussaillement, sont disponibles sur le site Géorisques : http://www.georisques.gouv.fr. La présente annonce immobilière a été rédigée sous la responsabilité éditoriale de Mme Nathalie Santos mandataire indépendant en immobilier (sans détention de fonds), agent commercial de la SAS I@D France immatriculé au RSAC de MELUN sous le numéro 522236835, titulaire de la carte de démarchage immobilier pour le compte de la société I@D France SAS.
Ce mois
Cette annonce est récente
À proximité
Recherche des commodités à proximité...
Détails de l'annonce
Localisation
Ville
Dammarie-Lès-Lys
Pays
FR
Diagnostics / Énergie
Diagnostic DPE
185
Diagnostic GES
5
Surfaces / Pièces / Composition
Nombre d’étages
3
Chauffage et diagnostics
Diagnostic de performance énergétique (DPE)
a
b
c
d
e
f
g
Indice d'émission de gaz à effet de serre (GES)
a
b
c
d
e
f
g
