Type
Bien immobilierTarif
290 000 €Chambres
0Salles de bain
0Vente Appartement 1 pièce
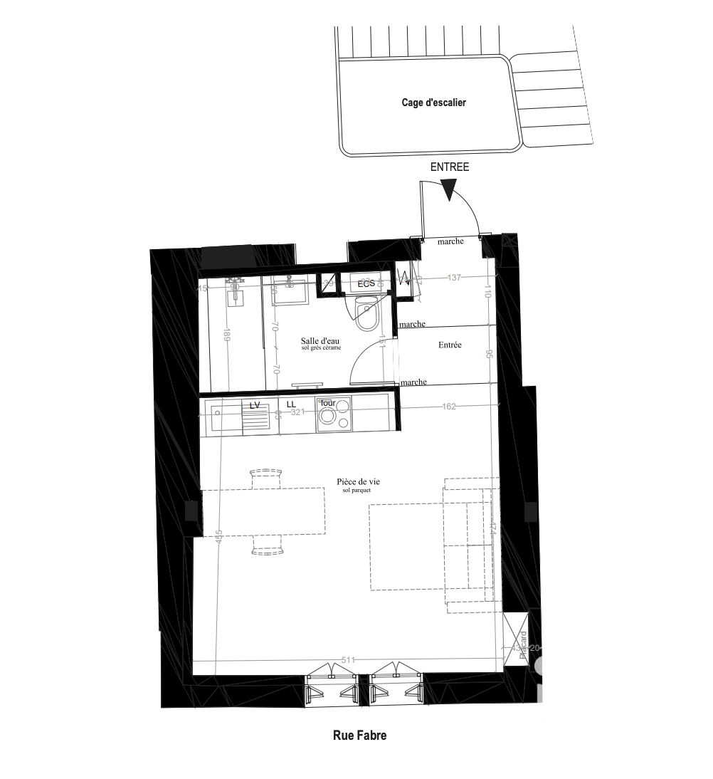
Iad France - Melanie Jordana vous propose : * Luxueux appartement T1 rénové au coeur de l'Ecusson - Hôtel Verrière Montpellieret * Situé au cOEur du quartier de l'Ecusson, cet appartement T1 a été récemment rénové avec soin pour offrir un espace de vie moderne et confortable. Idéal pour un premier achat, un investissement locatif ou une résidence secondaire, cet appartement a tout pour plaire. L'appartement se compose d'un séjour accueillant, d'une cuisine équipée et d'une salle d'eau moderne avec WC. Chaque espace a été pensé pour offrir fonctionnalité et confort au quotidien. La surface de 31,7 m² offre un bel équilibre entre espace de vie et intimité. Situé au deuxième étage d'un immeuble de 3 niveaux datant de 1800, l'appartement bénéficie d'une exposition est, offrant une luminosité agréable tout au long de la journée. La résidence, avec son caractère historique et son environnement calme, est un véritable havre de paix en plein cOEur de la ville. De plus, la résidence fermée dispose d'une petite cour avec un patio qui assure sécurité et tranquillité à ses habitants. Les commerces, les transports en commun et les commodités sont facilement accessibles, ajoutant une touche de praticité au quotidien. Cet appartement est une véritable pépite sur le marché immobilier de Montpellier. Ne manquez pas l'occasion de visiter ce bien d'exception et de vous laisser séduire par son charme et son confort. Contactez-moi dès aujourd'hui pour organiser une visite ! La presente annonce immobiliere vise 1 lot situé dans une copropriété de 8 lots au total et ne faisant l'objet d'aucune procédure en cours citée à l'article L. 721-1 du code de la construction et de l'habitation. Montant moyen mensuel de charges déclaré par le vendeur : 45€ par mois (soit 540 € annuel). Honoraires d'agence à la charge du vendeur. Bien non soumis au DPE. Les informations sur les risques auxquels ce bien est exposé, y compris l'obligation légale de débroussaillement, sont disponibles sur le site Géorisques : http://www.georisques.gouv.fr. La présente annonce immobilière a été rédigée sous la responsabilité éditoriale de Mme Melanie Jordana mandataire indépendant en immobilier (sans détention de fonds), agent commercial de la SAS I@D France immatriculé au RSAC de MONTPELLIER sous le numéro 934245580, titulaire de la carte de démarchage immobilier pour le compte de la société I@D France SAS.
À proximité
Recherche des commodités à proximité...
Détails de l'annonce
Localisation
Ville
Montpellier
Pays
FR
Surfaces / Pièces / Composition
Nombre d’étages
3
Étage
2
Chauffage et diagnostics
Diagnostic de performance énergétique (DPE)
a
b
c
d
e
f
g
Indice d'émission de gaz à effet de serre (GES)
a
b
c
d
e
f
g
