Type
Bien immobilierTarif
720 000 €Chambres
3Salles de bain
0Vente Appartement 5 pièces
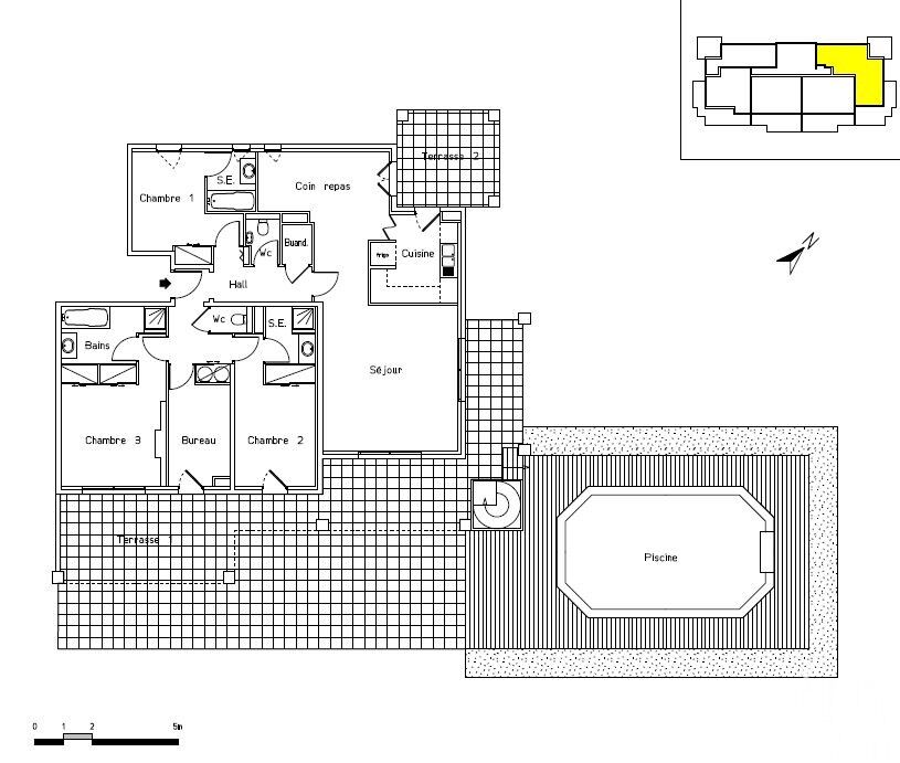
Iad France - Judicaelle Louis (07 43 56 89 76) vous propose : Situé dans un environnement calme et recherché, secteur Valescure, cet appartement récent offre une surface habitable de 130 m² environ et des prestations de qualité. Il se compose d’un vaste séjour lumineux, coin repas et cuisine, trois suites parentales, chacune avec un accès direct à l’extérieur, assurent confort et intimité. Un bureau, et deux toilettes viennent compléter ce bien aux prestations soignées. L’extérieur se distingue par un jardin paysager de 800 m² environ, dont une terrasse de 107 m² environ et une piscine privative, offrant un cadre idéal pour profiter des beaux jours en toute sérénité, un grand garage, accessible directement depuis le jardin, viennent compléter ce bien. Un cadre de vie rare dans une résidence élégante et sécurisée. Honoraires d’agence à la charge du vendeur. Bien non soumis au DPE. Les informations sur les risques auxquels ce bien est exposé sont disponibles sur le site Géorisques : www.georisques.gouv.fr. La présente annonce immobilière a été rédigée sous la responsabilité éditoriale de Mlle Judicaelle Louis EI (ID 92421), mandataire indépendant en immobilier (sans détention de fonds), agent commercial de la SAS I@D France immatriculé au RSAC de DRAGUIGNAN sous le numéro 811245687, titulaire de la carte de démarchage immobilier pour le compte de la société I@D France SAS. Retrouvez tous nos biens sur notre site internet. www.iadfrance.fr.
À proximité
Recherche des commodités à proximité...
Détails de l'annonce
Localisation
Ville
Saint-Raphaël
Pays
FR
Surfaces / Pièces / Composition
Nombre d’étages
3
Chauffage et diagnostics
Diagnostic de performance énergétique (DPE)
a
b
c
d
e
f
g
Indice d'émission de gaz à effet de serre (GES)
a
b
c
d
e
f
g
