Type
Bien immobilierTarif
285 000 €Chambres
4Salles de bain
0Vente Maison de village 6 pièces
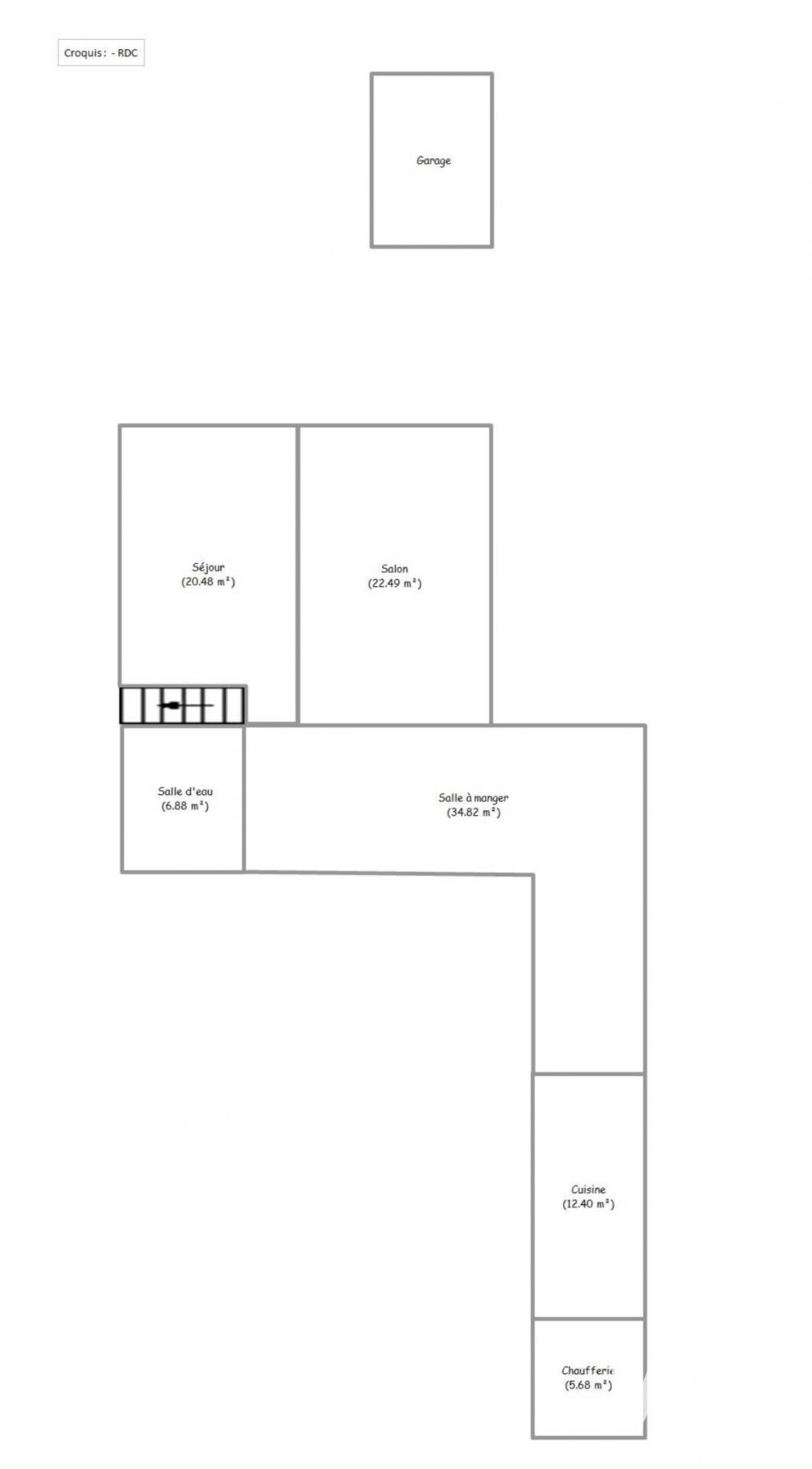
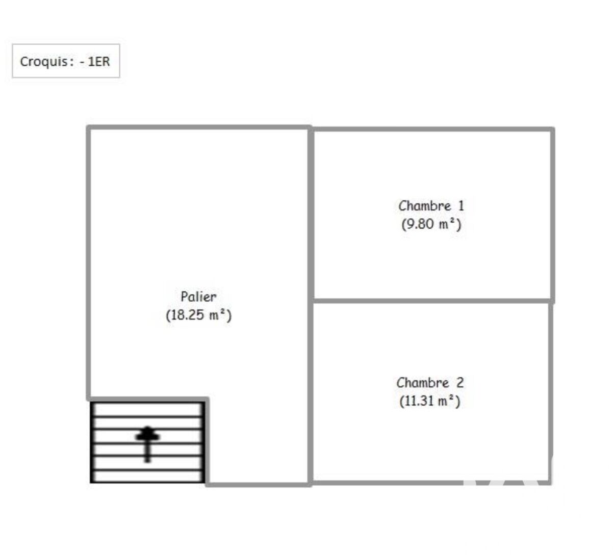
Iad France - Eva Gecele vous propose : Située en plein centre de Garancières, à deux pas des commerces, de la gare (ligne N Paris-Montparnasse) et de la N12, venez découvrir cette maison de village au charme incontestable ! Devant la maison se trouve un garage et une première partie de jardin. Dès l'entrée, votre oeil sera attiré par les pierres et poutres qui font tout le charme de cette maison, cette entrée spacieuse (20 m²) peut accueillir un salon télé ou bibliothèque par exemple, vous arrivez ensuite dans une grande salle à manger en L de 34 m² avec son joli four à pain et un accès à la terrasse. Sur votre gauche, une porte menant à un deuxième salon ou une première chambre de 23 m² (pour une vie de plain-pied), sur votre droite une cuisine en long, à moderniser de 12 m² avec accès au jardin, puis en prolongement une chaufferie de 6 m². Le rez-de-chaussée est complété par une salle d'eau spacieuse qui a été rénovée, avec toilettes. À l'étage : un beau palier pouvant facilement être cloisonné en une chambre (pour une 4ème chambre) ou en une salle de bains, puis deux chambres de 10 et 11 m². À l'extérieur un joli jardin intimiste avec arbres fruitiers, deux appentis et une jolie cave voûtée avec accès près de la salle à manger au niveau de la terrasse. Tout est ici réuni pour vivre des jours heureux : des pièces spacieuses et surtout beaucoup de charme ! Une visite ? Honoraires d'agence à la charge du vendeur. Information d'affichage énergétique sur ce bien : classe ENERGIE E indice 272 et classe CLIMAT E indice 64. Les informations sur les risques auxquels ce bien est exposé, y compris l'obligation légale de débroussaillement, sont disponibles sur le site Géorisques : http://www.georisques.gouv.fr. La présente annonce immobilière a été rédigée sous la responsabilité éditoriale de Mme Eva Gecele mandataire indépendant en immobilier (sans détention de fonds), agent commercial de la SAS I@D France immatriculé au RSAC de Versailles sous le numéro 902254812, titulaire de la carte de démarchage immobilier pour le compte de la société I@D France SAS.
Ce mois
Cette annonce est récente
À proximité
Recherche des commodités à proximité...
Détails de l'annonce
Localisation
Ville
La Queue-les-Yvelines
Pays
FR
Diagnostics / Énergie
Diagnostic DPE
272
Diagnostic GES
64
Surfaces / Pièces / Composition
Nombre d’étages
2
Chauffage et diagnostics
Diagnostic de performance énergétique (DPE)
a
b
c
d
e
f
g
Indice d'émission de gaz à effet de serre (GES)
a
b
c
d
e
f
g
