Type
Bien immobilierTarif
299 000 €Chambres
4Salles de bain
0Vente Appartement 5 pièces
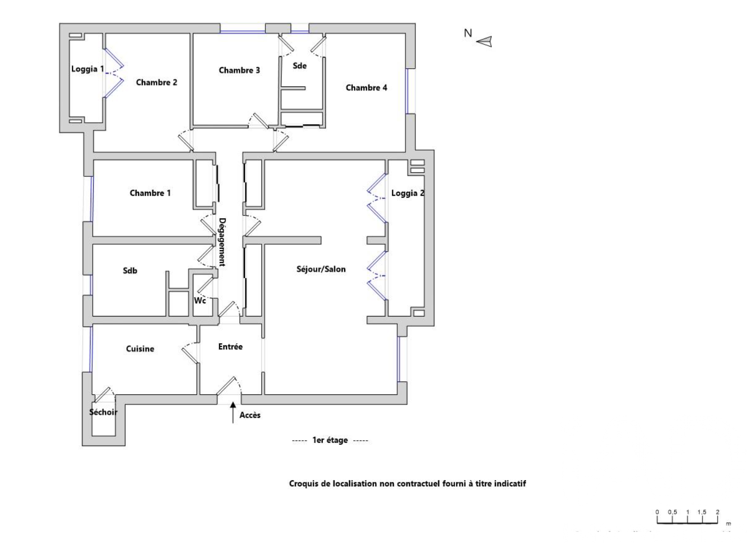
Iad France - Anne-Gaelle Andrieu vous propose : À Gradignan, dans un environnement calme et verdoyant, découvrez cet appartement familial aux beaux volumes situé au sein d’une résidence agréable et bien entretenue. L’emplacement est particulièrement recherché : à proximité immédiate des écoles, des commerces et des transports, tout en bénéficiant d’un cadre paisible. Ici, on profite à la fois des espaces verts de la copropriété et de ceux du parc voisin, idéal pour les promenades et la vie de famille. Situé au 1er étage avec ascenseur, cet appartement lumineux bénéficie d’une belle exposition sud-ouest et d’une configuration particulièrement agréable à vivre. Entrée avec rangements Cuisine indépendante avec cellier / loggia Séjour spacieux ouvrant sur un grand balcon filant 4 chambres de belle taille Grande salle de bain familiale Salle d’eau communicante avec deux chambres Nombreux rangements dont grands placards dans le couloir Cave, idéale pour du rangement complémentaire Place de parking extérieure Autres : menuiseries double vitrage, volets roulants électriques, murs doublés, électricité revue, très bons diagnostics, consommation gaz pour chauffage individuel et eau : 100€ / mois pour une famille de 4 personnes. Grâce à ses volumes généreux et à sa distribution fonctionnelle, cet appartement offre un confort de vie rare : on s’y sent presque comme dans une maison, tout en profitant de la simplicité et du confort d’un appartement. Très lumineux et ouvert sur l’extérieur, il constitue une belle opportunité pour une famille ou pour un projet d’investissement. La presente annonce immobiliere vise 3 lots situés dans une copropriété de 317 lots au total et ne faisant l'objet d'aucune procédure en cours citée à l'article L. 721-1 du code de la construction et de l'habitation. Montant moyen mensuel de charges déclaré par le vendeur : 150€ par mois (soit 1800 € annuel). Honoraires d'agence à la charge de l'acquéreur. Prix honoraires inclus : 299000 euros. Prix hors honoraires : 285000 euros. Honoraires TTC à la charge de l'acquéreur (4,91% du prix du bien hors honoraires) : 14000 euros. Information d'affichage énergétique sur ce bien : classe ENERGIE C indice 145 et classe CLIMAT C indice 22. Les informations sur les risques auxquels ce bien est exposé, y compris l'obligation légale de débroussaillement, sont disponibles sur le site Géorisques : http://www.georisques.gouv.fr. La présente annonce immobilière a été rédigée sous la responsabilité éditoriale de Mme Anne-Gaelle Andrieu mandataire indépendant en immobilier (sans détention de fonds), agent commercial de la SAS I@D France immatriculé au RSAC de Bordeaux sous le numéro 483429957, titulaire de la carte de démarchage immobilier pour le compte de la société I@D France SAS.
Ce mois
Cette annonce est récente
À proximité
Recherche des commodités à proximité...
Détails de l'annonce
Localisation
Ville
Gradignan
Pays
FR
Diagnostics / Énergie
Diagnostic DPE
145
Diagnostic GES
22
Finances / Mandat / Références
Honoraires
14 €
Surfaces / Pièces / Composition
Nombre d’étages
5
Chauffage et diagnostics
Diagnostic de performance énergétique (DPE)
a
b
c
d
e
f
g
Indice d'émission de gaz à effet de serre (GES)
a
b
c
d
e
f
g
