Type
Bien immobilierTarif
654 000 €Chambres
3Salles de bain
0Vente Maison/villa 4 pièces
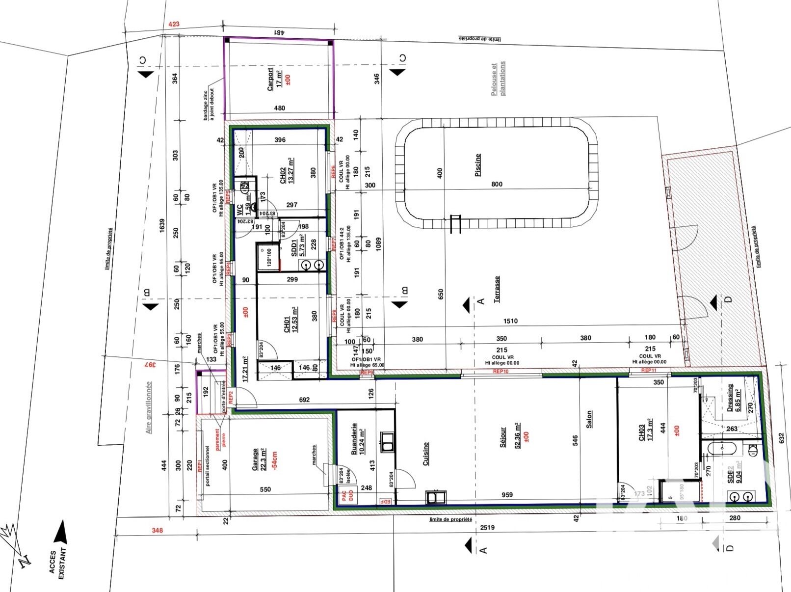
Iad France - Nathalie ANQUET vous propose : Maison contemporaine 2025 de plain-pied avec piscine –Pléneuf Val-André À seulement 800 mètres de la plage du Val André (Piègu) et à proximité des commerces, cette villa contemporaine de 146 m² de plain-pied offre un cadre de vie privilégié entre confort moderne et douceur du littoral. Implantée sur un terrain de 504 m², la maison s’organise selon un plan en L, créant une belle harmonie entre les espaces intérieurs et la terrasse avec piscine couverte. Une pièce de vie lumineuse et conviviale Entrée avec placard. Magnifique espace salon-séjour de 52 m², baigné de lumière grâce aux larges baies vitrées donnant directement sur la terrasse et la piscine. Cuisine équipée et aménagée, fonctionnelle et ouverte sur la pièce de vie, complétée par une buanderie attenante avec accès direct au garage. Un espace nuit confortable Suite parentale de 33 m² comprenant : •Dressing •Salle de bain avec baignoire et douche •WC privatifs Deux autres chambres, chacune avec accès direct à la terrasse. Salle d’eau indépendante. WC séparés. Toutes les chambres ainsi que les pièces de vie bénéficient d’un accès direct à l’extérieur, offrant une belle continuité intérieur / extérieur. Les extérieurs •Piscine avec abri bas •Terrasse agréable et protégée •Garage de 22 m² •Carport de 17 m² •Terrain de 504 m² Confort et performance •Construction 2025 •Plain-pied •Chauffage par pompe à chaleur •DPE A Une maison idéale pour une résidence principale proche mer ou un pied-à-terre pour profiter pleinement du Val-André. Une visite s’impose, appelez-moi ! Conseiller iad France implanté localement et spécialiste du secteur. Honoraires d'agence à la charge du vendeur. Information d'affichage énergétique sur ce bien : classe ENERGIE A indice 50 et classe CLIMAT A indice 1. Les informations sur les risques auxquels ce bien est exposé, y compris l'obligation légale de débroussaillement, sont disponibles sur le site Géorisques : http://www.georisques.gouv.fr. La présente annonce immobilière a été rédigée sous la responsabilité éditoriale de Mme Nathalie ANQUET mandataire indépendant en immobilier (sans détention de fonds), agent commercial de la SAS I@D France immatriculé au RSAC de SAINT BRIEUC sous le numéro 413164591, titulaire de la carte de démarchage immobilier pour le compte de la société I@D France SAS.
Ce mois
Cette annonce est récente
À proximité
Recherche des commodités à proximité...
Détails de l'annonce
Localisation
Ville
Pléneuf-Val-André
Pays
FR
Diagnostics / Énergie
Diagnostic DPE
50
Surfaces / Pièces / Composition
Nombre d’étages
Chauffage et diagnostics
Diagnostic de performance énergétique (DPE)
a
b
c
d
e
f
g
Indice d'émission de gaz à effet de serre (GES)
a
b
c
d
e
f
g
